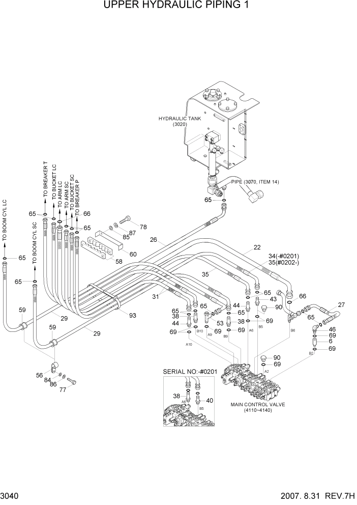
Запчасти Hyundai R55-7 PAGE 3040 UPPER HYDRAULIC PIPING 1 ГИДРАВЛИЧЕСКАЯ СИСТЕМА

Схема запчастей Hyundai R55-7 - PAGE 3040 UPPER HYDRAULIC PIPING 1 ГИДРАВЛИЧЕСКАЯ СИСТЕМА
FIT
1:1
100%

Артикул

Название

Примечание

Количество

6

31M8-10250

VALVE-CHECK

1шт.

22

P930-125056

HOSE ASSY-ORFS 0X90

1шт.

26

P930-082054

HOSE ASSY-ORFS 0X90

1шт.

27

P930-085010

HOSE ASSY-ORFS 0X90

1шт.

29

31M8-10840

HOSE ASSY-ORFS 0X90

#1554

2шт.

29

31M8-10841

HOSE ASSY-ORFS 0X90

#1555

2шт.

29

31M8-10850

HOSE ASSY-ORFS 0X90

BOOM SWING #1554

2шт.

29

31M8-10851

HOSE ASSY-ORFS 0X90

BOOM SWING #1555

2шт.

31

P930-085054

HOSE ASSY-ORFS 0X90

2шт.

34

P930-085072

HOSE ASSY-ORFS 0X90

#0201

1шт.

35

P930-085074

HOSE ASSY-ORFS 0X90

#0201

1шт.

35

P930-085074

HOSE ASSY-ORFS 0X90

#0202

2шт.

38

X511-108534

CONNECTOR-LONG,ORFS

#0201

3шт.

38

X511-108534

CONNECTOR-LONG,ORFS

#0202

2шт.

40

X500-110003

CONNECTOR-ORFS

#0201

1шт.

43

X511-108533

CONNECTOR-ORFS

#0202

1шт.

44

X511-108535

CONNECTOR-LONG,ORFS

#0201

1шт.

44

X511-108535

CONNECTOR-LONG,ORFS

#0202

2шт.

46

X520-110003

ELBOW-90,ORFS

1шт.

53

X820-085353

TEE-R/TYPE,ORFS

1шт.

56

31M7-65290

CLAMP-HOSE

2шт.

58

31M8-10380

CLAMP-RUBBER

#0663

1шт.

58

31M8-10381

CLAMP-RUBBER

#0664 - #1554

1шт.

58

31M8-10382

CLAMP-RUBBER

#1555

1шт.

59

31M5-65270

GROMMET

2шт.

60

31M7-50020

PLATE

1шт.

65

S621-014001

O-RING

9шт.

66

S621-018001

O-RING

#2218

1шт.

66

S621-018001

O-RING

#2219

2шт.

69

S631-018004

O-RING

9шт.

77

S015-080456

BOLT-HEX

4шт.

78

S017-100656

BOLT-HEX

2шт.

84

S403-08200B

WASHER-PLAIN

2шт.

85

S403-10200B

WASHER-PLAIN

2шт.

86

S411-080006

WASHER-SPRING

2шт.

87

S411-100006

WASHER-SPRING

2шт.

90

P220-110104

PLUG-HEX,HEAD

2шт.

93

S551-050203

CLAMP-BAND

5шт.

Выбрано товаров: 38