Запчасти Hyundai R80-7 PAGE 2060 CAB ELECTRIC 2 ЭЛЕКТРИЧЕСКАЯ СИСТЕМА

Схема запчастей Hyundai R80-7 - PAGE 2060 CAB ELECTRIC 2 ЭЛЕКТРИЧЕСКАЯ СИСТЕМА
FIT
1:1
100%

Артикул

Название

Примечание

Количество

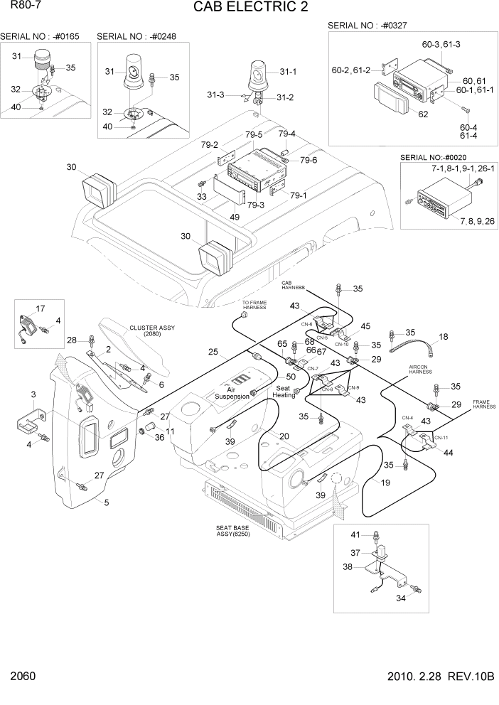
2

21N8-21011

BRACKET WA

STD

1шт.

2

21N6-01320

BRACKET WA

OPT-UPGRADE #0171

1шт.

3

21N8-21070

BRACKET WA

STD

1шт.

3

21N6-01330

BRACKET WA

OPT-UPGRADE #0171

1шт.

4

S035-061626

BOLT-W/WASHER

5шт.

5

21N8-21021

COVER-WIPER MOTOR

STD

1шт.

5

21N6-01310

COVER-WIPER MOTOR

OPT-UPGRADE #0171

1шт.

6

S035-081526

BOLT-W/WASHER

4шт.

7

21N8-22010

CASSETTE RADIO

U.S.A #0020

1шт.

7-1

375500043204

WIRE ASSY-20 H818

#0020

1шт.

8

21N8-22020

CASSETTE RADIO

EUROPE #0020

1шт.

8-1

375500043204

WIRE ASSY-20 H818

#0020

1шт.

9

21N8-22030

CASSETTE RADIO

GENERAL #0020

1шт.

9-1

375500043204

WIRE ASSY-20 H818

#0020

1шт.

11

21N8-20010

SOCKET-12V

OPTION

1шт.

17

21N8-20201

DC-DC CONVERTER ASSY

1шт.

18

21EH-30720

STRAP-EARTH

1шт.

19

21N8-11160

HARNESS-CONSOLE,LH

1шт.

20

21N8-11151

HARNESS-CONSOLE,RH

#0092

1шт.

20

21N4-02810

HARNESS-CONSOLE,RH

#0093

1шт.

25

21N8-11181

HARNESS-SIDE,RH

1шт.

26

21N8-21030

CASSETTE RADIO-KOREA

KOREA #0020

1шт.

26-1

375500043204

WIRE ASSY-20 H818

#0020

1шт.

27

S132-061676

SCREW-W/WASHER

2шт.

28

S132-061546

SCREW-W/WASHER

1шт.

29

S543-280002

CLAMP-TUBE

2шт.

30

21N6-20211

WORK LAMP ASSY

2шт.

30-1

S866-240650

BULB

NOT SHOWN

1шт.

31

F23842010

STROBE LAMP-RED

OPTION #0248

1шт.

31

21Q4-30380

BEACON LAMP ASSY

OPTION #0249

1шт.

31

20N8-41420BG

BEACON LAMP SUB INSTALL

OPT-UPGRADE #0171 - #0248

1шт.

31-1

21Q4-20700

BEACON LAMP

#0249

1шт.

31-2

21Q4-20600

BRACKET-TILT

#0249

1шт.

31-3

21N4-02830

HARNESS-BEACON LAMP

#0249

1шт.

32

21N8-00581

BRACKET-BEACON LAMP

OPTION #0179

1шт.

32

21N8-00581BG

BRACKET-BEACON LAMP

OPTION #0180 - #0248

1шт.

33

S131-051046

SCREW-W/WASHER

4шт.

35

S037-102022

BOLT-W/WASHER

9шт.

36

S661-260300

CAP-RUBBER

1шт.

37

21M5-50250

SWITCH ASSY

SAFETY SW

1шт.

38

21N8-21080

PLATE

1шт.

39

S591-000802

CLIP-HARNESS

2шт.

40

S205-101002

NUT-HEX

#0248

2шт.

41

S161-040106

SCREW-CROSS R/ROUND

3шт.

43

21N4-01130

PLATE-CLIP

6шт.

44

25D1-10660

CLIP ASSY

1шт.

45

25D1-10650

CLIP ASSY

1шт.

49

21N6-10450

PLATE-C/RADIO COVER

W/O C/RADIO

1шт.

50

21N8-40190

EXT.HARNESS-A/RIDE SEAT

1шт.

60

21N8-50010

CASSETTE RADIO ASSY

STD #0021 - #0228

1шт.

60

21N8-50050

CASSETTE RADIO ASSY

#0229 - #0327

1шт.

60-1

21N6-10480

BRACKET-LH

#0021 - #0327

1шт.

60-2

21N6-10490

BRACKET-RH

#0021 - #0327

1шт.

60-3

21N8-01600

HARNESS-EXT WIRE

#0021 - #0327

1шт.

60-4

S141-050102

SCREW-FLAT HD

#0021 - #0327

4шт.

61

21N8-40500

CD PLAYER ASSY

OPTION #0021 - #0327

1шт.

61-1

21N6-10480

BRACKET-LH

#0021 - #0327

1шт.

61-2

21N6-10490

BRACKET-RH

#0021 - #0327

1шт.

61-3

21N8-01600

HARNESS-EXT WIRE

#0021 - #0327

1шт.

61-4

S141-050102

SCREW-FLAT HD

#0021 - #0237

4шт.

62

21N8-40940

COVER-DUST

#0021

1шт.

65

21N4-43010

HARNESS-EXTENSION

#0093

1шт.

66

S593-000902

CLIP-HARNESS

#0093

1шт.

67

21N4-01190

PLATE-CLIP

#0093

1шт.

68

S037-102026

BOLT-W/WASHER

#0093

1шт.

69

S890-107508

TUBE-PVC

OPT-UPGRADE #0171

1шт.

79

21N8-50100

RADIO/USB PLAYER ASSY

#0328

1шт.

79-1

21LM-31010

BRACKET L

#0328

1шт.

79-2

21LM-31020

BRACKET R

#0238

1шт.

79-3

21LM-31030

CABLE-MP3

#0328

1шт.

79-4

21LM-31040

CAP

#0328

1шт.

79-5

21LM-31050

RADIO/USB BODY

#0328

1шт.

79-6

21N8-50110

HARNESS-EXT,WIRE

#0328

1шт.

Выбрано товаров: 73