Запчасти Hyundai R80-7A PAGE 2010 RH ELECTRIC ЭЛЕКТРИЧЕСКАЯ СИСТЕМА

Схема запчастей Hyundai R80-7A - PAGE 2010 RH ELECTRIC ЭЛЕКТРИЧЕСКАЯ СИСТЕМА
FIT
1:1
100%

Артикул

Название

Примечание

Количество

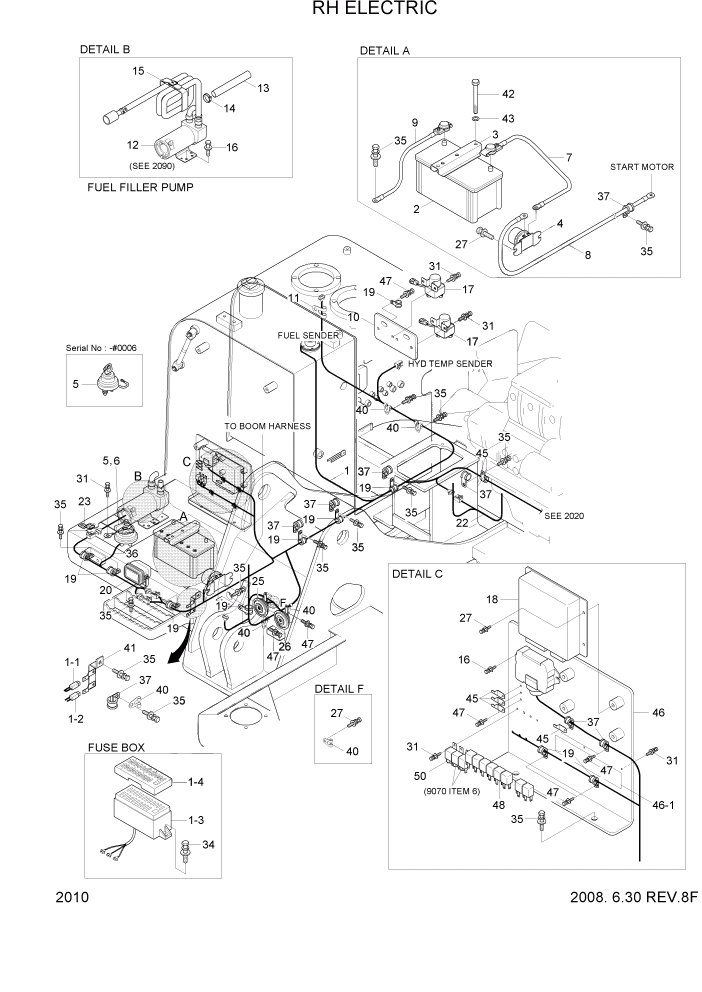
1

21N1-40011

HARNESS-FRAME

1шт.

1-1

21N4-01320

LINK-FUSIBLE

1шт.

1-2

21N4-01311

LINK-FUSIBLE(0.85)

1шт.

1-3

21L7-0025

FUSE BOX

1шт.

1-4

21N1-40211

DECAL-FUSE BOX

1шт.

2

21E6-20270

BATTERY

1шт.

3

21N1-40171

BRACKET-BATTERY

1шт.

4

21M6-54100

RELAY-BATTERY

1шт.

5

21N4-10441

SWITCH-MASTER

#0016

1шт.

5

21L7-10500

SWITCH-MASTER

#0017

1шт.

5-1

21N4-10441K

KEY-MASTER SWITCH

#0016

1шт.

6

21N4-10451

DECAL-MASTER SW

#0016

1шт.

6

21LD-34180

DECAL-MASTER SWITCH

#0017

1шт.

7

21E2-60140

CABLE(BATT-BATT RY)

1шт.

8

21EA-60611

CABLE(BATT RY-STARTER)

1шт.

9

21L8-10370

CABLE(BATT-SWITCH)

1шт.

10

21N1-40060

BRACKET(START&HEATER RY)

1шт.

11

S593-000652

CLIP-HARNESS

1шт.

12

@

FUEL FILLER PUMP KIT

NOT

1шт.

13

21N1-21020

HOSE-OUTLET

1шт.

14

S520-032000

CLAMP-HOSE

3шт.

15

E127-3158

BAND-FUEL PUMP

1шт.

16

S035-082046

BOLT-W/WASHER

7шт.

17

21S7-00101

RELAY-START

2шт.

18

21N1-32200

MCU(MACHINE CONTROL UNIT)

1шт.

19

31L7-10190

CLAMP-TUBE

16шт.

20

21N1-40070

WORK LAMP ASSY

1шт.

20-1

21EK-20230

HARNESS-LAMP

NOT SHOWN

1шт.

20-2

S866-120550

BULB

NOT SHOWN

1шт.

22

21N4-01502

HARNESS-EXT, TRAVEL

1шт.

23

25D1-10640

CLIP ASSY

2шт.

25

21M8-00080

HORN-LOW

1шт.

26

21M8-00070

HORN-HIGH

1шт.

27

S035-082546

BOLT-W/WASHER

8шт.

31

S035-061626

BOLT-W/WASHER

7шт.

33

21N4-01130

PLATE-CLIP

2шт.

34

S132-062546

SCREW-W/WASHER

2шт.

35

S037-102026

BOLT-W/WASHER

28шт.

36

21N8-40170

HARNESS-EXTENSION

1шт.

37

31L7-10210

CLAMP-TUBE,INS

7шт.

40

S593-000902

CLIP-HARNESS

3шт.

41

21E7-0612

PLATE-CONNECTOR

2шт.

42

S017-102606

BOLT-HEX

2шт.

43

S403-102006

WASHER-PLAIN

2шт.

45

21N5-40340

CLIP-METAL

4шт.

46

21N1-40051

PLATE(ECM&MCU-RELAY)

1шт.

N46-1

21N1-40301

DECAL-RELAY

NOT

1шт.

47

S037-101556

BOLT-W/WASHER

10шт.

48

340005070

RELAY-12V,5P

3шт.

50

21E3-0011

RELAY

1шт.

Выбрано товаров: 50