Запчасти Hyundai R110-7 PAGE 6300 UPPER FRAME & COUNTERWEIGHT СТРУКТУРА

Схема запчастей Hyundai R110-7 - PAGE 6300 UPPER FRAME & COUNTERWEIGHT СТРУКТУРА
FIT
1:1
100%

Артикул

Название

Примечание

Количество

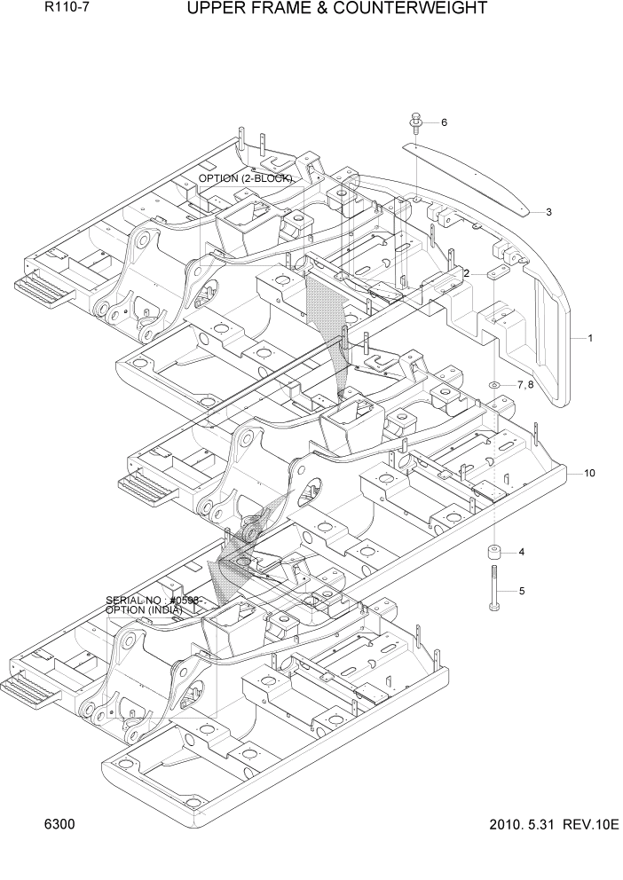
1

41N3-21001

COUNTERWEIGHT

STD

1шт.

1

41N3-22000

COUNTERWEIGHT

OPT(1700Kg) #0309 - #0335

1шт.

1

41N3-22001

COUNTERWEIGHT

#0336

1шт.

2

41N3-21111

BLOCK

2шт.

3

41N3-21201

COVER-CWT

STD

1шт.

3

41N3-21201

COVER-CWT

OPT(1700Kg) #0335

1шт.

3

41N3-21300

COVER-CWT

OPT(1700Kg) #0336

1шт.

4

41N3-22200

SPACER

#0229

4шт.

4

41N3-22201

SPACER

STD #0230

4шт.

4

41N3-22200

SPACER

OPT(1700Kg) #0309

4шт.

5

S017-242202

BOLT-HEX

4шт.

6

S037-103056

BOLT-W/WASHER

3шт.

7

S391-040065

SHIM-ROUND(1.0T)

5шт.

8

S392-040065

SHIM-ROUND(2.0T)

5шт.

10

41N3-00011

UPPER FRAME WA

MONO #0008

1шт.

10

41N3-00012

UPPER FRAME WA

MONO #0009 - #0464

1шт.

10

41N3-00012BG

UPPER FRAME WA

MONO #0465

1шт.

10

41N3-40010

UPPER FRAME WA

2-BLOCK #0464

1шт.

10

41N3-40010BG

UPPER FRAME WA

2-BLOCK #0465

1шт.

10

42N3-00010

UPPER FRAME WA

MONO, INDIA #0598

1шт.

10

42N3-40010

UPPER FRAME WA

2-BLOCK, INDIA #0598

1шт.

Выбрано товаров: 21