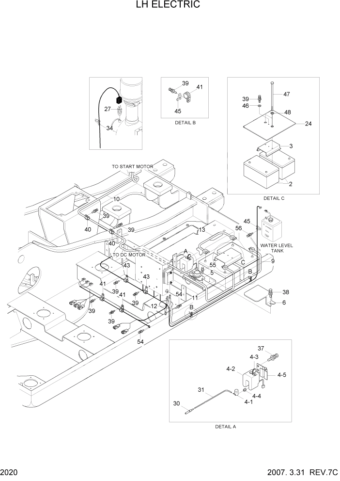
Запчасти Hyundai R110-7 PAGE 2020 LH ELECTRIC ЭЛЕКТРИЧЕСКАЯ СИСТЕМА

Схема запчастей Hyundai R110-7 - PAGE 2020 LH ELECTRIC ЭЛЕКТРИЧЕСКАЯ СИСТЕМА
FIT
1:1
100%

Артикул

Название

Примечание

Количество

2

25D1-00391

BATTERY ASSY

2шт.

3

21N3-10090

BRACKET-BATTERY

1шт.

4

21EG-30630

WASHER TANK ASSY

1шт.

4-1

21EG-10130

PUMP-MOTOR

1шт.

4-2

21EG-10140

TANK

1шт.

4-3

24L3-30660

CAP

1шт.

4-4

24L3-30670

RUBBER-BUSHING

1шт.

4-5

24L3-30710

PLATE

1шт.

5

21E5-0003

RELAY-BATTERY

1шт.

6

21N6-10181

COVER-BATT RELAY

1шт.

9

24L1-40400

CABLE(TERMINAL-BATT)

1шт.

10

21E2-60031

CABLE(BATT RY-STARTER)

1шт.

11

21L9-20430

CABLE(BATT-SW&EARTH)

1шт.

12

21EA-00230

CABLE(MASTER SW-EARTH)

1шт.

13

21N3-10300

CABLE(BATT-BATT)

1шт.

24

21N3-10200

COVER-BATTERY

1шт.

27

21L7-20100

SWITCH-AIR CLEANER

1шт.

30

21EM-30570

CONNECTOR-TUBE

1шт.

31

21EM-30581

HOSE-RUBBER

1шт.

34

25D1-10650

CLIP ASSY

1шт.

37

S033-061522

BOLT-W/WASHER

2шт.

38

S035-082042

BOLT-W/WASHER

2шт.

39

S037-102022

BOLT-W/WASHER

11шт.

40

S543-220002

CLAMP-TUBE

2шт.

41

S543-200002

CLAMP-TUBE

5шт.

42

S543-240002

CLAMP-TUBE

3шт.

45

S593-000902

CLIP-HARNESS

3шт.

46

21EN-30560

WASHER-PLAIN

2шт.

47

S017-102652

BOLT-HEX

2шт.

48

S403-102002

WASHER-PLAIN

3шт.

54

S017-100152

BOLT-HEX

4шт.

55

S035-082522

BOLT-W/WASHER

2шт.

56

S037-102056

BOLT-W/WASHER

1шт.

Выбрано товаров: 33