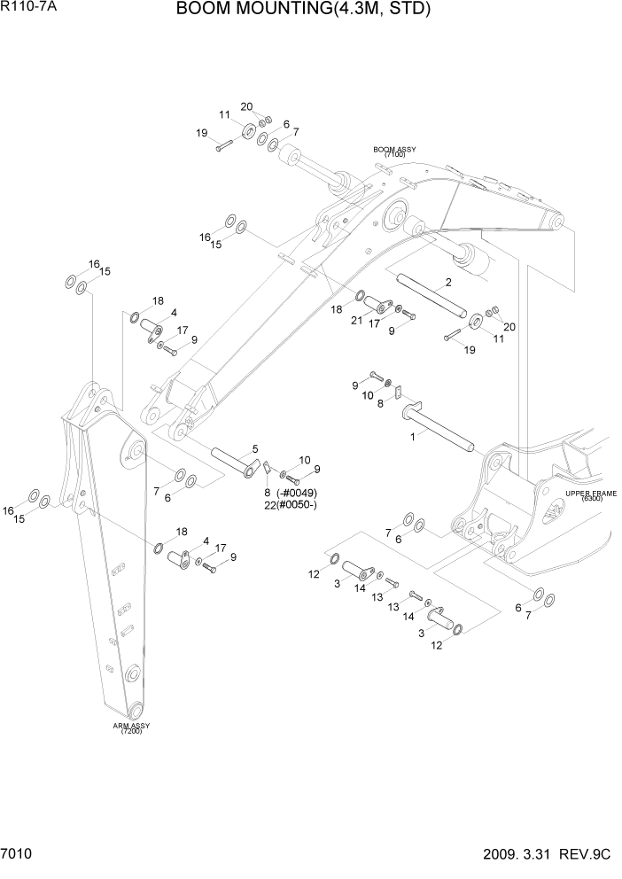
Запчасти Hyundai R110-7A PAGE 7010 BOOM MOUNTING(4.3M, STD) РАБОЧЕЕ ОБОРУДОВАНИЕ

Схема запчастей Hyundai R110-7A - PAGE 7010 BOOM MOUNTING(4.3M, STD) РАБОЧЕЕ ОБОРУДОВАНИЕ
FIT
1:1
100%

Артикул

Название

Примечание

Количество

1

62N4-11010

PIN ASSY

1шт.

2

61E6-11021

PIN ASSY

1шт.

3

66N4-01400

PIN ASSY

2шт.

4

61N8-01312

PIN ASSY

2шт.

5

61N4-11121

PIN ASSY

1шт.

6

S391-070120

SHIM-ROUND(1.0T)

3шт.

7

S392-070120

SHIM-ROUND(2.0T)

3шт.

8

66N4-10700

PLATE

#0049

2шт.

8

66N4-10700

PLATE

#0050

1шт.

9

S017-120256

BOLT-HEX

7шт.

10

S411-120006

WASHER-SPRING

4шт.

11

61N8-19010

PIN STOPPER

2шт.

12

61N8-00140

SPACER-PIN

2шт.

13

S017-16025D

BOLT-HEX

2шт.

14

61N8-00310-DA

WASHER-HARDENED

2шт.

15

S391-065120

SHIM-ROUND(1.0T)

3шт.

16

S392-065120

SHIM-ROUND(2.0T)

3шт.

17

61N8-00300-DA

WASHER-HARDENED

3шт.

18

61N8-00130

SPACER-PIN

3шт.

19

S017-161606

BOLT-HEX

2шт.

20

S205-16100B

NUT-HEX

4шт.

21

61N8-01321

PIN ASSY

1шт.

22

61N4-10700

PLATE

#0050

1шт.

Выбрано товаров: 23