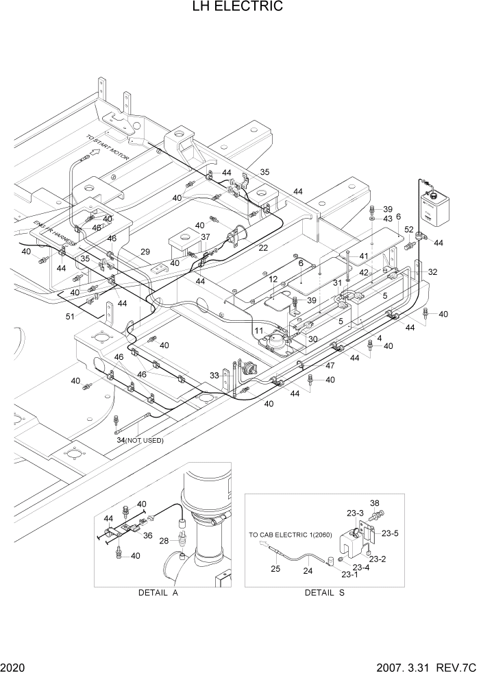
Запчасти Hyundai R160LC7 PAGE 2020 LH ELECTRIC ЭЛЕКТРИЧЕСКАЯ СИСТЕМА

Схема запчастей Hyundai R160LC7 - PAGE 2020 LH ELECTRIC ЭЛЕКТРИЧЕСКАЯ СИСТЕМА
FIT
1:1
100%

Артикул

Название

Примечание

Количество

4

21E6-20270

BATTERY

2шт.

5

21N5-10150

BRACKET-BATT

2шт.

6

21N6-60080

COVER-BATTERY

2шт.

11

21E5-0003

RELAY-BATTERY

1шт.

12

21N6-10181

COVER-BATT RELAY

1шт.

22

21N6-20321

BUZZER-TRAVEL ALARM

#0460

1шт.

22

21N6-20322

BUZZER-TRAVEL ALARM

#0461

1шт.

23

21EG-30630

WASHER TANK ASSY

1шт.

23-1

21EG-10130

PUMP-MOTOR

1шт.

23-2

21EG-10140

TANK

1шт.

23-3

24L3-30660

CAP

1шт.

23-4

24L3-30670

RUBBER-BUSHING

1шт.

23-5

24L3-30710

PLATE

1шт.

24

21EM-30581

HOSE-RUBBER

1шт.

25

21EM-30570

CONNECTOR-TUBE

1шт.

28

21L7-20100

SWITCH-AIR CLEANER

1шт.

29

21N5-10130

CABLE(BATT RY-STARTER)

1шт.

30

21N8-10300

CABLE(BATT-RELAY)

1шт.

31

21N5-10160

CABLE(BATT-BATT)

1шт.

32

21EA-00220

CABLE(EARTH & M/S SW)

1шт.

33

21NA-10600

STRAP-EARTH

1шт.

34

@

STRAP-EARTH

NOT #0001

1шт.

35

21N4-01130

PLATE-CLIP

3шт.

36

25D1-10640

CLIP ASSY

1шт.

37

25D1-10650

CLIP ASSY

1шт.

38

S035-062022

BOLT-W/WASHER

2шт.

39

S035-082522

BOLT-W/WASHER

4шт.

40

S037-102022

BOLT-W/WASHER

23шт.

41

S017-102652

BOLT-HEX

4шт.

42

S403-102002

WASHER-PLAIN

4шт.

43

21EN-30560

WASHER-PLAIN

2шт.

44

21E9-00170

CLIP-HARNESS

13шт.

46

S543-200002

CLAMP-TUBE

10шт.

47

S552-035146

CLAMP-BAND

6шт.

51

21N4-01502

HARNESS-EXT, TRAVEL

1шт.

52

S037-101552

BOLT-W/WASHER

1шт.

Выбрано товаров: 36