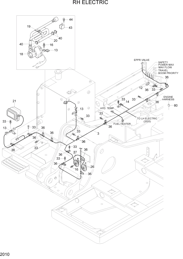
Запчасти Hyundai R160LC7A PAGE 2010 RH ELECTRIC ЭЛЕКТРИЧЕСКАЯ СИСТЕМА

Схема запчастей Hyundai R160LC7A - PAGE 2010 RH ELECTRIC ЭЛЕКТРИЧЕСКАЯ СИСТЕМА
FIT
1:1
100%

Артикул

Название

Примечание

Количество

3

21N5-30011

HARNESS-FRAME

1шт.

3-1

21N4-01320

LINK-FUSIBLE

NOT SHOWN

1шт.

3-2

21N4-01311

LINK-FUSIBLE(0.85)

NOT SHOWN

1шт.

3-3

21EA-50550

DIODE

NOT SHOWN

1шт.

12

21N4-01130

PLATE-CLIP

1шт.

13

25D1-10640

CLIP ASSY

3шт.

14

25D1-10650

CLIP ASSY

1шт.

16

S035-082526

BOLT-W/WASHER

3шт.

18

@

FUEL FILLER PUMP

NOT

1шт.

19

E127-3158

BAND-FUEL PUMP

1шт.

20

21N4-20550

HOSE-OUTLET

1шт.

21

21N6-20211

WORK LAMP ASSY

1шт.

21-1

S866-240650

BULB

NOT SHOWN

1шт.

26

21N5-10050

HORN-LOW

1шт.

27

21N5-10060

HORN-HIGH

1шт.

33

S037-102026

BOLT-W/WASHER

16шт.

36

21E9-00170

CLIP-HARNESS

13шт.

40

S520-032000

CLAMP-HOSE

3шт.

43

21N4-00770

CLIP

1шт.

44

S035-081516

BOLT-W/WASHER

1шт.

80

21N5-20190

PROTECTOR

#0199

1шт.

Выбрано товаров: 21