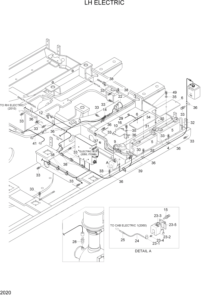
Запчасти Hyundai R160LC7A PAGE 2020 LH ELECTRIC ЭЛЕКТРИЧЕСКАЯ СИСТЕМА

Схема запчастей Hyundai R160LC7A - PAGE 2020 LH ELECTRIC ЭЛЕКТРИЧЕСКАЯ СИСТЕМА
FIT
1:1
100%

Артикул

Название

Примечание

Количество

4

21E6-20270

BATTERY

2шт.

5

21N5-10150

BRACKET-BATT

2шт.

6

21N6-60080

COVER-BATTERY

2шт.

9

21E5-0003

RELAY-BATTERY

1шт.

10

21N6-10181

COVER-BATT RELAY

1шт.

12

21N4-01130

PLATE-CLIP

1шт.

14

25D1-10650

CLIP ASSY

1шт.

15

S035-062026

BOLT-W/WASHER

2шт.

16

S035-082526

BOLT-W/WASHER

2шт.

22

21N6-20322

BUZZER-TRAVEL ALARM

1шт.

23

21EG-30630

WASHER TANK ASSY

1шт.

23-1

21EG-10130

PUMP-MOTOR

1шт.

23-2

21EG-10140

TANK

1шт.

23-3

24L3-30660

CAP

1шт.

23-4

24L3-30670

RUBBER-BUSHING

1шт.

23-5

24L3-30710

PLATE

1шт.

24

21EM-30581

HOSE-RUBBER

1шт.

25

21EM-30570

CONNECTOR-TUBE

1шт.

28

21L7-20100

SWITCH-AIR CLEANER

1шт.

29

21E2-60031

CABLE(BATT RY-STARTER)

1шт.

30

21N8-10300

CABLE(BATT-RELAY)

1шт.

31

21N5-10160

CABLE(BATT-BATT)

1шт.

32

24L3-01120

CABLE(BATT-EARTH)

1шт.

33

S037-102026

BOLT-W/WASHER

16шт.

34

S017-102506

BOLT-HEX

4шт.

35

21EN-30560

WASHER-PLAIN

2шт.

36

21E9-00170

CLIP-HARNESS

13шт.

37

S552-102370

CLAMP-BAND

1шт.

38

S543-220002

CLAMP-TUBE

4шт.

39

S552-035146

CLAMP-BAND

6шт.

41

21N4-01502

HARNESS-EXT, TRAVEL

1шт.

49

S037-102526

BOLT-W/WASHER

2шт.

Выбрано товаров: 32