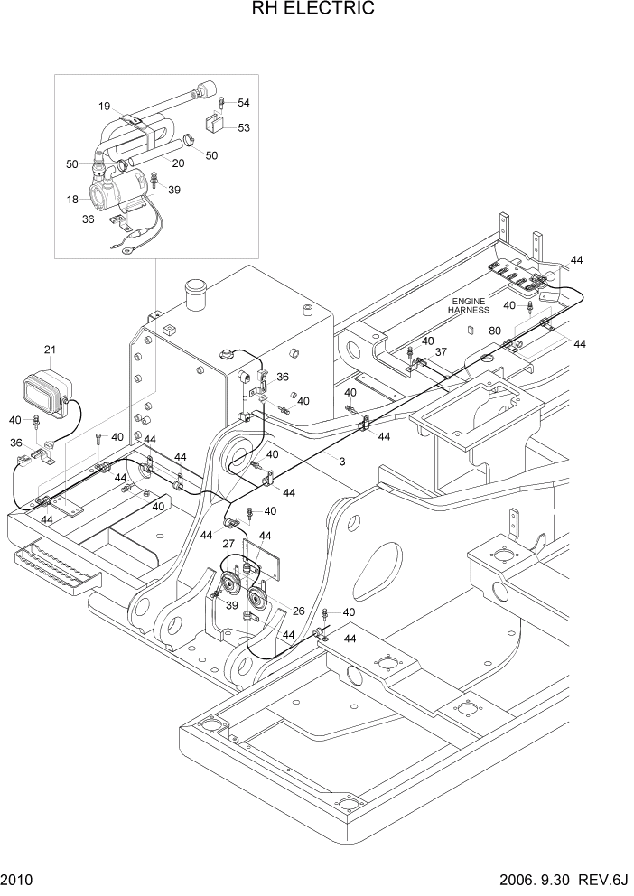
Запчасти Hyundai R180LC7 PAGE 2010 RH ELECTRIC ЭЛЕКТРИЧЕСКАЯ СИСТЕМА

Схема запчастей Hyundai R180LC7 - PAGE 2010 RH ELECTRIC ЭЛЕКТРИЧЕСКАЯ СИСТЕМА
FIT
1:1
100%

Артикул

Название

Примечание

Количество

3

21N5-10012

HARNESS-FRAME

#0043

1шт.

3

21N5-10013

HARNESS-FRAME

#0044 - #0080

1шт.

3

21N5-10014

HARNESS-FRAME

#0081 - #0232

1шт.

3

21N5-10015

HARNESS-FRAME

#0233 - #0337

1шт.

3

21N5-10016

HARNESS-FRAME

#0338

1шт.

3-1

@

BODY-FUSE BOX

NOT

1шт.

3-2

21EA-50550

DIODE

NOT SHOWN

1шт.

18

@

FUEL FILLER PUMP

NOT

1шт.

19

E127-3158

BAND-FUEL PUMP

1шт.

20

21N4-20550

HOSE-OUTLET

1шт.

21

21N6-20211

WORK LAMP ASSY

1шт.

21-1

S866-240650

BULB

NOT SHOWN

1шт.

26

21N5-10050

HORN-LOW

1шт.

27

21N5-10060

HORN-HIGH

1шт.

36

25D1-10640

CLIP ASSY

3шт.

37

25D1-10650

CLIP ASSY

1шт.

39

S035-082522

BOLT-W/WASHER

5шт.

40

S037-102022

BOLT-W/WASHER

15шт.

44

21E9-00170

CLIP-HARNESS

12шт.

50

S520-032000

CLAMP-HOSE

3шт.

53

21N4-00770

CLIP

1шт.

54

S035-081512

BOLT-W/WASHER

1шт.

80

21N5-20190

PROTECTOR

#0486

1шт.

Выбрано товаров: 23