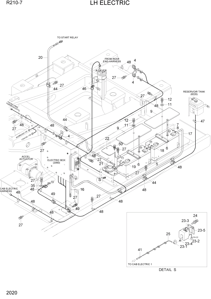
Запчасти Hyundai R210-7 PAGE 2020 LH ELECTRIC ЭЛЕКТРИЧЕСКАЯ СИСТЕМА

Схема запчастей Hyundai R210-7 - PAGE 2020 LH ELECTRIC ЭЛЕКТРИЧЕСКАЯ СИСТЕМА
FIT
1:1
100%

Артикул

Название

Примечание

Количество

4

21N4-01130

PLATE-CLIP

2шт.

5

21E6-20270

BATTERY

2шт.

6

21N6-21170

BRACKET-BATTERY

2шт.

7

S017-102656

BOLT-HEX

4шт.

8

S403-10200B

WASHER-PLAIN

4шт.

9

21N6-60080

COVER-BATTERY

2шт.

11

21EN-30560

WASHER-PLAIN

2шт.

12

S037-102526

BOLT-W/WASHER

2шт.

16

21NA-10500

CABLE(MASTER SW-EARTH)

1шт.

17

21EG-10090

CABLE(BATT EARTH-M/SW)

1шт.

18

21EN-10120

CABLE(BATT-BATT)

1шт.

19

21L8-10290

CABLE(BATT-BATT RY)

1шт.

20

21EG-10101

CABLE(BATT RY-STARTER)

1шт.

21

21E5-0003

RELAY-BATTERY

1шт.

22

21N6-10181

COVER-BATT RELAY

1шт.

23

21EG-30630

WASHER TANK ASSY

1шт.

23-1

21EG-10130

PUMP-MOTOR

1шт.

23-2

21EG-10140

TANK

1шт.

23-3

24L3-30660

CAP

1шт.

23-4

24L3-30670

RUBBER-BUSHING

1шт.

23-5

24L3-30710

PLATE

1шт.

24

S035-062026

BOLT-W/WASHER

2шт.

25

21EM-30581

HOSE-RUBBER

1шт.

27

S037-102026

BOLT-W/WASHER

25шт.

35

25D1-10640

CLIP ASSY

2шт.

41

21EM-30570

CONNECTOR-TUBE

1шт.

44

S543-200002

CLAMP-TUBE

6шт.

46

S593-000752

CLIP-HARNESS

1шт.

47

S593-000902

CLIP-HARNESS

1шт.

48

21E9-00170

CLIP-HARNESS

20шт.

49

S543-080002

CLAMP-TUBE

1шт.

50

S035-083026

BOLT-W/WASHER

2шт.

Выбрано товаров: 32