Запчасти Hyundai R210LC7 PAGE 2050 ELECTRIC BOX ЭЛЕКТРИЧЕСКАЯ СИСТЕМА

Схема запчастей Hyundai R210LC7 - PAGE 2050 ELECTRIC BOX ЭЛЕКТРИЧЕСКАЯ СИСТЕМА
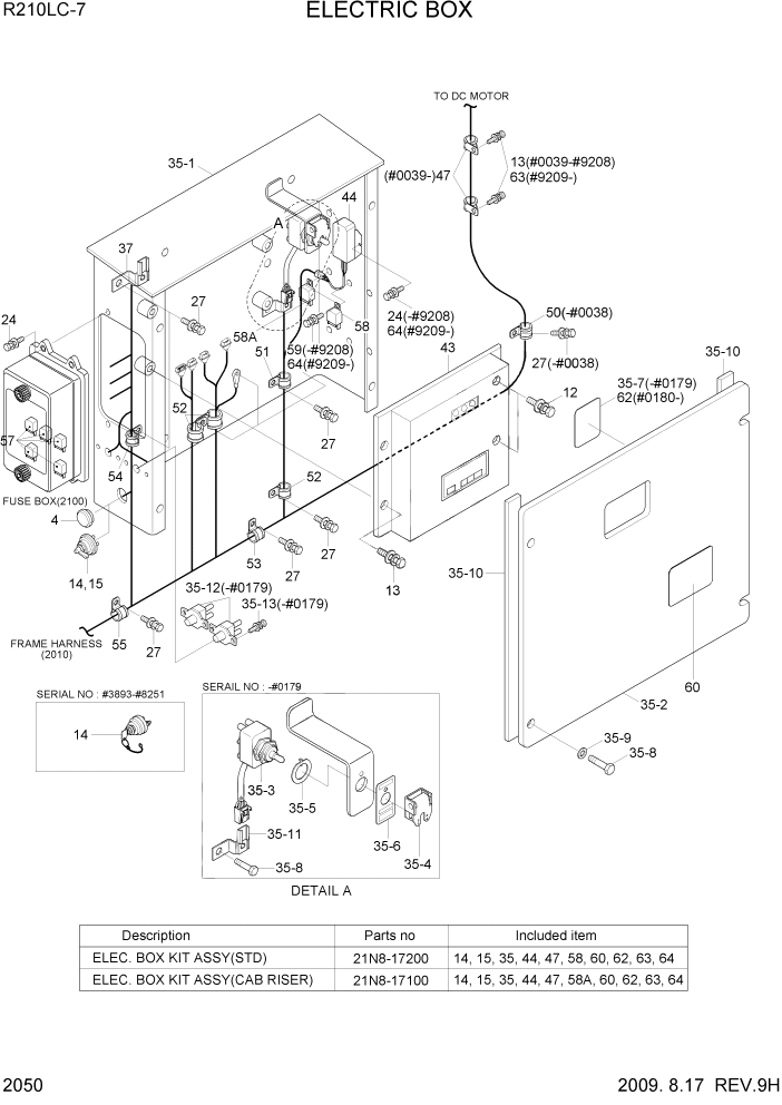
FIT
1:1
100%

Артикул

Название

Примечание

Количество

4

S661-210300

CAP-RUBBER

1шт.

12

S035-082522

BOLT-W/WASHER

2шт.

13

S035-081622

BOLT-W/WASHER

#0038

2шт.

13

S035-081622

BOLT-W/WASHER

#0039 - #9208

4шт.

13

S035-081622

BOLT-W/WASHER

#9209

2шт.

14

21L7-10500

SWITCH-MASTER

SEE 2020 #1001 - #3892

1шт.

14

21N4-10441

SWITCH-MASTER

#3893 - #8251

1шт.

K14

21L7-10500

SWITCH-MASTER

#8252 - #9668

1шт.

K14

21L7-10501

SWITCH-MASTER

#9669

1шт.

14-1

21N4-10441K

KEY-MASTER SWITCH

#3893 - #9668

1шт.

15

21EN-00420

DECAL-MASTER SW

SEE 2020 #1001 - #3892

1шт.

15

21N4-10451

DECAL-MASTER SW

#3893 - #4086

1шт.

K15

21LD-34180

DECAL-MASTER SWITCH

#4087

1шт.

24

S035-062022

BOLT-W/WASHER

#9208

6шт.

24

S035-062026

BOLT-W/WASHER

#9209

4шт.

27

S037-102026

BOLT-W/WASHER

7шт.

35

21N6-20102

ELECTRIC BOX ASSY

#0179

1шт.

K35

21N8-00701

ELECTRIC BOX ASSY

#0180

1шт.

35-1

21N6-20113

ELECTRIC BOX WA

#0038

1шт.

35-1

21N6-20114

ELECTRIC BOX WA

#0039 - #0179

1шт.

35-1

21N8-00710

ELECTRIC BOX WA

#0180

1шт.

35-2

21N6-20152

PLATE-FRONT COVER

1шт.

35-3

21N6-20410

SWITCH-TOGGLE

#0179

1шт.

35-4

21EN-00350

SECURITY CAP ASSY

#0179

1шт.

35-5

21EN-00320

LOCKING RING

#0179

1шт.

35-6

21N6-20161

DECAL-PROLIX SWITCH

#0179

1шт.

35-7

21N6-20170

DECAL-CAUTION

#0179

1шт.

35-8

S017-100162

BOLT-HEX

#0179

5шт.

35-8

S017-100162

BOLT-HEX

#0180

4шт.

35-9

S411-100002

WASHER-SPRING

4шт.

35-1

21N6-20180

PAD-RUBBER

2шт.

35-11

25D1-10650

CLIP ASSY

#0179

1шт.

35-12

21N6-20330

CIRCUIT BREAKER

#0179

2шт.

35-13

S031-051511

BOLT-W/WASHER

#0179

4шт.

37

25D1-10650

CLIP ASSY

1шт.

43

21N6-32102

CPU CONTROLLER

#1000

1шт.

43

21N6-42100

CPU CONTROLLER

#1001 - #1245

1шт.

43

21N6-42101

MCU CONTROLLER

#1246

1шт.

44

21E7-2000

RESISTER-PROLIX

OPT #8173

1шт.

44

21Q4-10900

RESISTOR ASSY

OPT #8174 - #9208

1шт.

K44

21Q4-20100

RESISTOR ASSY

OPT #9209

1шт.

47

S593-000752

CLIP-HARNESS

#0039 - #9208

2шт.

K47

21E9-00170

CLIP-HARNESS

#9209 - #9208

2шт.

K47

S593-000902

CLIP-HARNESS

#9209

2шт.

50

S543-080002

CLAMP-TUBE

#0038

1шт.

51

S543-120002

CLAMP-TUBE

1шт.

52

S543-160002

CLAMP-TUBE

2шт.

53

S543-200002

CLAMP-TUBE

1шт.

55

S543-260002

CLAMP-TUBE

1шт.

57

24L1-05100

RELAY

5шт.

K58

21E4-0011

RELAY-4P

FUEL WARMER,OPT #1370

1шт.

K58A

21E4-0011

RELAY-4P

HD LAMP,C/RISER #1370

1шт.

59

S035-061622

BOLT-W/WASHER

#1370 - #9208

1шт.

K60

21N3-10080

DECAL-RELAY

#1370

1шт.

62

21N8-00621

DECAL-EMER CONTROL

#0180 - #1021

1шт.

K62

21N8-12040

DECAL-EMER CONTROL

#1022

1шт.

K63

S037-102026

BOLT-W/WASHER

#9355

2шт.

K64

S035-061526

BOLT-W/WASHER

#9209

4шт.

K

21N8-17200

ELEC BOX KIT ASSY

SEE ILLUST #9355

1шт.

K

21N8-17100

ELEC. BOX KIT ASSY

SEE ILLUST #9355

1шт.

Выбрано товаров: 60