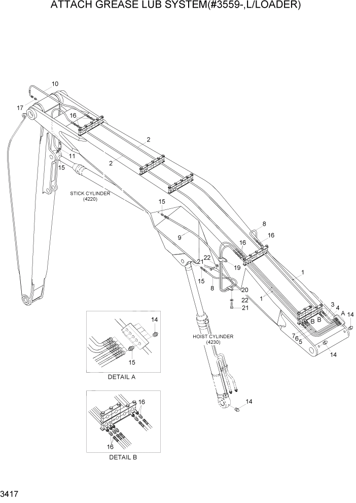
Запчасти Hyundai R210LC7 PAGE 3417 BOOM GREASE LUB SYSTEM(#3559-,L/LOADER) ГИДРАВЛИЧЕСКАЯ СИСТЕМА

Схема запчастей Hyundai R210LC7 - PAGE 3417 BOOM GREASE LUB SYSTEM(#3559-,L/LOADER) ГИДРАВЛИЧЕСКАЯ СИСТЕМА
FIT
1:1
100%

Артикул

Название

Примечание

Количество

*

@

BOOM GREASE LUB SYS

NOT #3559

1шт.

1

31W1-70010

PIPE WA

3шт.

2

31W1-70030

PIPE WA

2шт.

3

32W1-60110

HOSE ASSY-THD,0X0

1шт.

4

32W1-60120

HOSE ASSY-THD,0X0

1шт.

5

31FL-70031

HOSE ASSY

1шт.

6

32W1-60130

HOSE ASSY-THD,0X0

1шт.

7

32W1-60140

HOSE ASSY-THD,0X0

1шт.

8

31W1-70070

HOSE ASSY

2шт.

9

31W1-70080

HOSE ASSY

1шт.

10

31W1-70091

HOSE ASSY-THD,0X0

1шт.

11

31W1-70101

HOSE ASSY-THD,0X45

1шт.

14

S651-810002

NIPPLE-GREASE

9шт.

15

RL501-2013

CONNECTOR

9шт.

16

RL800-0036

COUPLING

10шт.

17

32W1-60030

CONNECTOR-LONG

1шт.

19

S543-200002

CLAMP-TUBE

2шт.

20

32W1-60070

CLAMP-TUBE

2шт.

21

S015-100202

BOLT-HEX

4шт.

22

S411-100002

WASHER-SPRING

4шт.

Выбрано товаров: 20