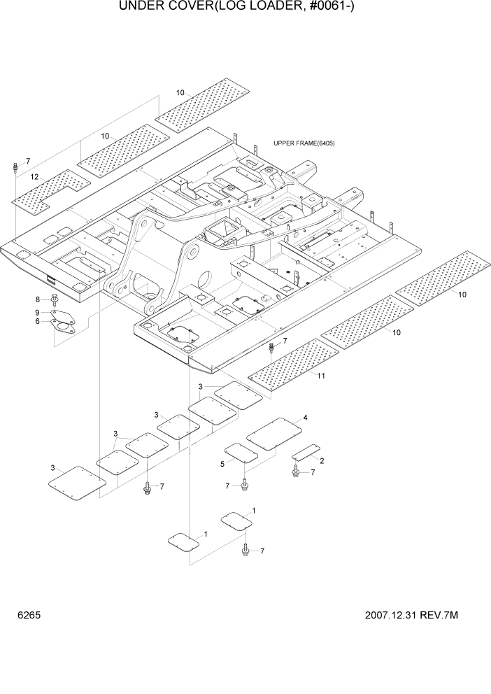
Запчасти Hyundai R290LC7A PAGE 6265 UNDER COVER(LOG LOADER, #0061-) СТРУКТУРА

Схема запчастей Hyundai R290LC7A - PAGE 6265 UNDER COVER(LOG LOADER, #0061-) СТРУКТУРА
FIT
1:1
100%

Артикул

Название

Примечание

Количество

*

@

UNDER COVER INSTAL

NOT #0061

1шт.

1

41W5-15010

UNDER COVER WA-CAB

2шт.

2

41W5-15150

UNDER COVER WA-RAD

1шт.

3

41W5-15130

UNDER COVER WA

6шт.

4

41W5-15070

UNDER COVER WA-ENG

1шт.

5

41W5-15050

UNDER COVER WA-MCV

1шт.

6

41E9-1306

SEAL

1шт.

7

S037-122552

BOLT-W/WASHER

82шт.

8

S037-102052

BOLT-W/WASHER

2шт.

9

41N6-10100

COVER

1шт.

10

41W7-15080

COVER

4шт.

11

41W7-15090

COVER

1шт.

12

41W7-15100

COVER

1шт.

Выбрано товаров: 13