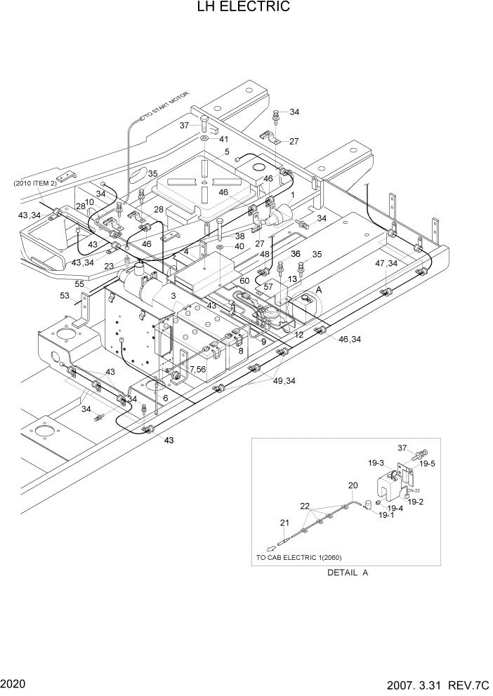
Запчасти Hyundai R290LC7H PAGE 2020 LH ELECTRIC ЭЛЕКТРИЧЕСКАЯ СИСТЕМА

Схема запчастей Hyundai R290LC7H - PAGE 2020 LH ELECTRIC ЭЛЕКТРИЧЕСКАЯ СИСТЕМА
FIT
1:1
100%

Артикул

Название

Примечание

Количество

1

21N6-20321

BUZZER-TRAVEL ALARM

#1559

1шт.

1

21N6-20322

BUZZER-TRAVEL ALARM

#1560

1шт.

3

E125-1501

BATTERY

2шт.

4

21EN-30540

BRACKET-BATTERY

1шт.

5

21EN-30551

COVER-BATTERY

1шт.

6

21NA-10500

CABLE(MASTER SW-EARTH)

1шт.

7

21N8-10110

CABLE(MASTER SW-BATT)

1шт.

8

21EN-10120

CABLE(BATT-BATT)

1шт.

9

21N8-10400

CABLE(BATT-BATT RY)

1шт.

10

21N8-00600

CABLE(RELAY-MOTOR)

1шт.

12

21E5-0003

RELAY-BATTERY

1шт.

12

21E5-0003-AS

RELAY-BATTERY

FOR A/S #0001

1шт.

13

21N6-10181

COVER-BATT RELAY

1шт.

19

21EG-30630

WASHER TANK ASSY

1шт.

19-1

21EG-10130

PUMP-MOTOR

1шт.

19-2

21EG-10140

TANK

1шт.

19-3

24L3-30660

CAP

1шт.

19-4

24L3-30670

RUBBER-BUSHING

1шт.

19-5

24L3-30710

PLATE

1шт.

20

21EM-30581

HOSE-RUBBER

1шт.

21

21EM-30570

CONNECTOR-TUBE

1шт.

22

21EM-30630

CLAMP-QUICK

5шт.

23

21L7-20100

SWITCH-AIR CLEANER

1шт.

28

25D1-10650

CLIP ASSY

2шт.

34

S037-102022

BOLT-W/WASHER

23шт.

36

S035-082522

BOLT-W/WASHER

2шт.

37

S035-061622

BOLT-W/WASHER

1шт.

38

S017-102502

BOLT-HEX

2шт.

40

S403-102002

WASHER-PLAIN

2шт.

41

21EN-30560

WASHER-PLAIN

1шт.

43

S543-240002

CLAMP-TUBE

11шт.

46

S543-120002

CLAMP-TUBE

4шт.

47

S543-080002

CLAMP-TUBE

4шт.

48

S543-060002

CLAMP-TUBE

1шт.

49

S543-280002

CLAMP-TUBE

3шт.

53

21N8-10140

EXT-QUICK COUPLER

OPTION

1шт.

55

21N8-10160

HARNESS-EXTENTION

S/ACTING

1шт.

56

24L3-01120

CABLE(BATT-EARTH)

1шт.

57

21E7-0612

PLATE-CONNECTOR

1шт.

60

21EA-40170

LINK-FUSIBLE

1шт.

Выбрано товаров: 0