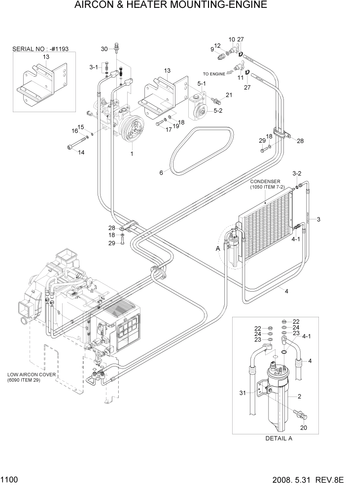
Запчасти Hyundai R300LC7 PAGE 1100 AIRCON & HEATER MOUNTING-ENGINE СИСТЕМА ДВИГАТЕЛЯ

Схема запчастей Hyundai R300LC7 - PAGE 1100 AIRCON & HEATER MOUNTING-ENGINE СИСТЕМА ДВИГАТЕЛЯ
FIT
1:1
100%

Артикул

Название

Примечание

Количество

1

11N8-92040

COMPRESSOR ASSY

1шт.

2

11N6-90060

DRIER-RECEIVER

1шт.

3

11N8-96110

HOSE-DISCHARGE

1шт.

3-1

A304000301-4

CHARGE VALVE ASSY

1шт.

3-2

A305000205-2

O-RING

1шт.

4

11NA-90220

HOSE(A)-LIQUID

1шт.

4

11N8-90040

HOSE(A)-LIQUID

CAB RISER

1шт.

4-1

A305000209-2

O-RING

2шт.

5

11N6-90110

PULLEY-IDLE

1шт.

5-1

A4760-508-00-2

BRACKET-PULLEY

1шт.

5-2

A4700-511-01-2

PULLEY-IDLE

1шт.

6

11E9-3503

V-BELT

1шт.

9

11E9-92150

ADAPTOR

1шт.

10

14L1-01350

VALVE-HEATER

1шт.

11

11EH-90100

VALVE ASSY

1шт.

12

P392-200000

WASHER-COPPER

1шт.

13

11N8-92120

BRACKET-COMP

#1193

1шт.

13

11N8-92121

BRACKET-COMP

#1194

1шт.

14

S109-080956

BOLT-SOCKET

4шт.

15

S403-08100B

WASHER-PLAIN

4шт.

16

S411-080006

WASHER-SPRING

4шт.

17

S017-100706

BOLT-HEXAGON HEAD

3шт.

18

S403-10200B

WASHER-PLAIN

5шт.

19

S411-100006

WASHER-SPRING

3шт.

20

S035-061526

BOLT-W/WASHER

2шт.

21

S037-102026

BOLT-W/WASHER

3шт.

22

S205-06100B

NUT-HEX

2шт.

23

S403-06100B

WASHER-PLAIN

2шт.

24

S411-060006

WASHER-SPRING

2шт.

27

S572-220006

CLAMP-HOSE,WIRE TYPE

2шт.

28

S543-400002

CLAMP-TUBE

2шт.

29

S017-100156

BOLT-HEX

2шт.

30

S035-083526

BOLT-W/WASHER

2шт.

31

11N6-90120

BRACKET-R/DRIER

1шт.

Выбрано товаров: 34