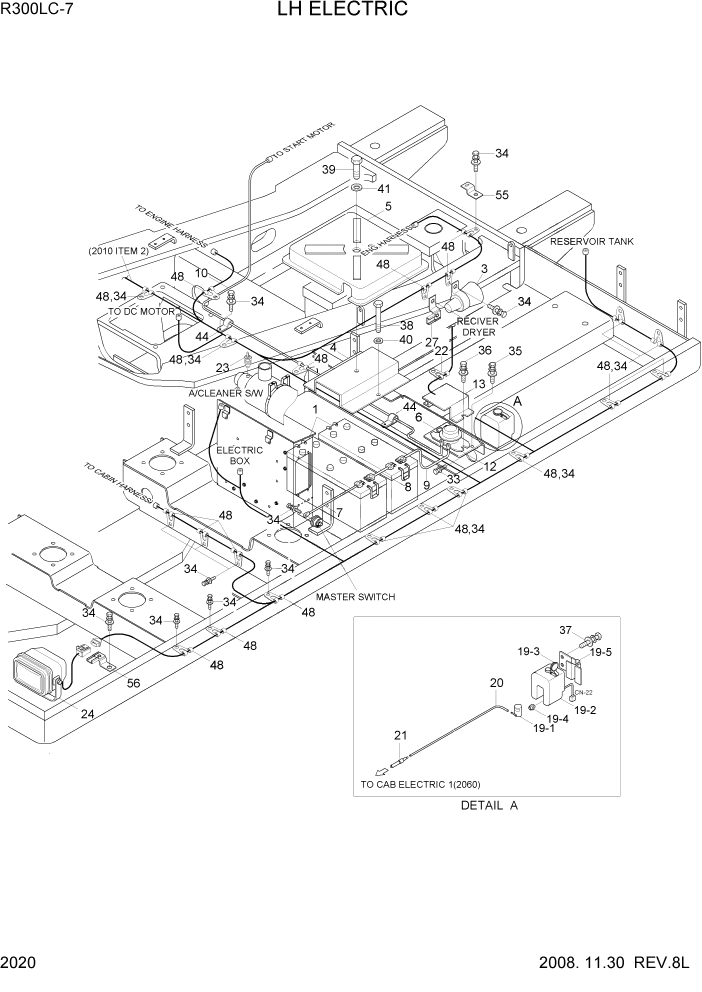
Запчасти Hyundai R300LC7 PAGE 2020 LH ELECTRIC ЭЛЕКТРИЧЕСКАЯ СИСТЕМА

Схема запчастей Hyundai R300LC7 - PAGE 2020 LH ELECTRIC ЭЛЕКТРИЧЕСКАЯ СИСТЕМА
FIT
1:1
100%

Артикул

Название

Примечание

Количество

1

E125-1501

BATTERY

2шт.

3

21N6-20322

BUZZER-TRAVEL ALARM

1шт.

4

21EN-30540

BRACKET-BATTERY

#1350

1шт.

4

21N8-42060

BRACKET-BATTERY

#1351

1шт.

5

21EN-30551

COVER-BATTERY

1шт.

6

21N8-21140

BRACKET-BATT.RELAY

1шт.

7

24L3-01120

CABLE(BATT-EARTH)

1шт.

8

21EN-10120

CABLE(BATT-BATT)

1шт.

9

21N8-10400

CABLE(BATT-BATT RY)

1шт.

10

21EA-60610

CABLE(BATT RY-STARTER)

1шт.

12

21E5-0003

RELAY-BATTERY

1шт.

13

21N8-40090

COVER

1шт.

19

21EG-30630

WASHER TANK ASSY

1шт.

19-1

21EG-10130

PUMP-MOTOR

1шт.

19-2

21EG-10140

TANK

1шт.

19-3

24L3-30660

CAP

1шт.

19-4

24L3-30670

RUBBER-BUSHING

1шт.

19-5

24L3-30710

PLATE

1шт.

20

21EM-30581

HOSE-RUBBER

1шт.

21

21EM-30570

CONNECTOR-TUBE

1шт.

22

S593-000902

CLIP-HARNESS

#1519

1шт.

22

S593-000802

CLIP-HARNESS

#1520

1шт.

23

21L7-20100

SWITCH-AIR CLEANER

1шт.

24

21EK-10360

HEAD LAMP ASSY

1шт.

24-1

21EK-10240

BULB-H3, 70W

NOT SHOWN

1шт.

27

25D1-10640

CLIP ASSY

1шт.

33

S037-101556

BOLT-W/WASHER

2шт.

34

S037-102026

BOLT-W/WASHER

20шт.

35

S035-082026

BOLT-W/WASHER

2шт.

36

S035-082526

BOLT-W/WASHER

2шт.

37

S035-061526

BOLT-W/WASHER

1шт.

38

S017-102406

BOLT-HEX

2шт.

39

S017-100206

BOLT-HEX

1шт.

40

S403-10200B

WASHER-PLAIN

2шт.

41

21EN-30560

WASHER-PLAIN

1шт.

43

S543-240002

CLAMP-TUBE

1шт.

44

S543-200002

CLAMP-TUBE

5шт.

48

21E9-00170

CLIP-HARNESS

18шт.

55

21N4-01130

PLATE-CLIP

3шт.

56

21E9-06010

PLATE

1шт.

Выбрано товаров: 40