Запчасти Hyundai R305LC7 PAGE 2020 LH ELECTRIC ЭЛЕКТРИЧЕСКАЯ СИСТЕМА

Схема запчастей Hyundai R305LC7 - PAGE 2020 LH ELECTRIC ЭЛЕКТРИЧЕСКАЯ СИСТЕМА
FIT
1:1
100%

Артикул

Название

Примечание

Количество

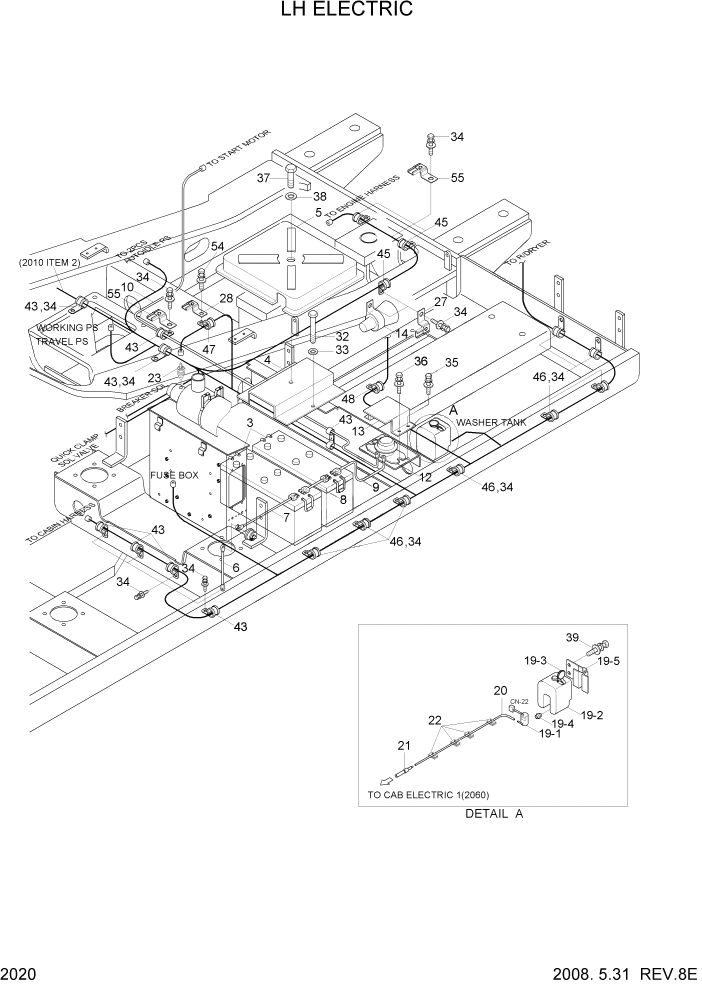
3

E125-1501

BATTERY

2шт.

4

21EN-30540

BRACKET-BATTERY

#0522

1шт.

4

21N8-42060

BRACKET-BATTERY

#0523

1шт.

5

21EN-30551

COVER-BATTERY

1шт.

6

21NA-10600

STRAP-EARTH

1шт.

7

21N8-10110

CABLE(MASTER SW-BATT)

1шт.

8

21EN-10120

CABLE(BATT-BATT)

1шт.

9

21N8-10400

CABLE(BATT-BATT RY)

1шт.

10

21N8-00600

CABLE(RELAY-MOTOR)

1шт.

12

21E5-0003

RELAY-BATTERY

1шт.

13

21N6-10181

COVER-BATT RELAY

1шт.

14

21N6-20321

BUZZER-TRAVEL ALARM

#0129

1шт.

14

21N6-20322

BUZZER-TRAVEL ALARM

#0130

1шт.

19

21EG-30630

WASHER TANK ASSY

1шт.

19-1

21EG-10130

PUMP-MOTOR

1шт.

19-2

21EG-10140

TANK

1шт.

19-3

24L3-30660

CAP

1шт.

19-4

24L3-30670

RUBBER-BUSHING

1шт.

19-5

24L3-30710

PLATE

1шт.

20

21EM-30581

HOSE-RUBBER

1шт.

22

21EM-30630

CLAMP-QUICK

5шт.

23

21L7-20100

SWITCH-AIR CLEANER

1шт.

27

25D1-10640

CLIP ASSY

2шт.

32

S017-102402

BOLT-HEX

2шт.

33

S403-102002

WASHER-PLAIN

2шт.

34

S037-102022

BOLT-W/WASHER

29шт.

35

S035-082022

BOLT-W/WASHER

3шт.

36

S035-082522

BOLT-W/WASHER

2шт.

37

S017-100202

BOLT-HEX

1шт.

38

21EN-30560

WASHER-PLAIN

1шт.

39

S035-061522

BOLT-W/WASHER

2шт.

43

S543-240002

CLAMP-TUBE

10шт.

45

S543-160002

CLAMP-TUBE

6шт.

46

21E9-00170

CLIP-HARNESS

9шт.

47

S543-080002

CLAMP-TUBE

2шт.

48

S543-060002

CLAMP-TUBE

9шт.

54

S037-101552

BOLT-W/WASHER

1шт.

55

21N4-01130

PLATE-CLIP

3шт.

Выбрано товаров: 38