Запчасти Hyundai R320LC7 PAGE 2020 LH ELECTRIC ЭЛЕКТРИЧЕСКАЯ СИСТЕМА

Схема запчастей Hyundai R320LC7 - PAGE 2020 LH ELECTRIC ЭЛЕКТРИЧЕСКАЯ СИСТЕМА
FIT
1:1
100%

Артикул

Название

Примечание

Количество

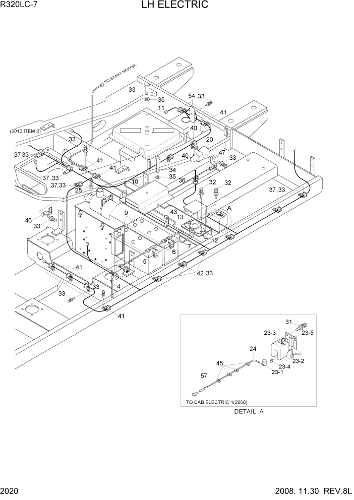
4

21NA-10600

STRAP-EARTH

1шт.

5

21N8-10110

CABLE(MASTER SW-BATT)

1шт.

6

21N8-10120

CABLE(BATT(+)-RELAY)

1шт.

7

21N8-10121

CABLE(BATT-RELAY)

#0009

1шт.

7

21N8-10300

CABLE(BATT-RELAY)

#0010 - #0019

1шт.

7

21N8-10400

CABLE(BATT-BATT RY)

#0020

1шт.

8

21N9-10100

CABLE(RELAY-STARTER)

1шт.

9

E125-1501

BATTERY

2шт.

10

21EN-30540

BRACKET-BATTERY

#1343

1шт.

10

21N8-42060

BRACKET-BATTERY

#1344

1шт.

11

21EN-30551

COVER-BATTERY

1шт.

12

21E5-0003

RELAY-BATTERY

1шт.

13

21N6-10181

COVER-BATT RELAY

1шт.

20

21N6-20321

BUZZER-TRAVEL ALARM

#0552

1шт.

20

21N6-20322

BUZZER-TRAVEL ALARM

#0553

1шт.

23

21EG-30630

WASHER TANK ASSY

1шт.

23-1

21EG-10130

PUMP-MOTOR

1шт.

23-2

21EG-10140

TANK

1шт.

23-3

24L3-30660

CAP

1шт.

23-4

24L3-30670

RUBBER-BUSHING

1шт.

23-6

24L3-30710

PLATE

1шт.

24

21EM-30581

HOSE-RUBBER

1шт.

25

21L7-20100

SWITCH-AIR CLEANER

1шт.

31

S035-061622

BOLT-W/WASHER

4шт.

32

S035-082022

BOLT-W/WASHER

4шт.

33

S037-101652

BOLT-W/WASHER

28шт.

34

S017-102502

BOLT-HEX

#0052

2шт.

34

S017-102402

BOLT-HEX

#0053

2шт.

35

S403-102002

WASHER-PLAIN

2шт.

36

S593-000902

CLIP-HARNESS

#1594

1шт.

36

S593-000802

CLIP-HARNESS

#1595

1шт.

37

21E9-00170

CLIP-HARNESS

9шт.

40

S543-200002

CLAMP-TUBE

2шт.

41

S543-240002

CLAMP-TUBE

8шт.

42

S543-280002

CLAMP-TUBE

2шт.

45

21EM-30630

CLAMP-QUICK

5шт.

46

25D1-10640

CLIP ASSY

3шт.

47

25D1-10650

CLIP ASSY

2шт.

54

21N8-21090

PLATE-CONNECTOR

1шт.

57

21EM-30570

CONNECTOR-TUBE

1шт.

Выбрано товаров: 0