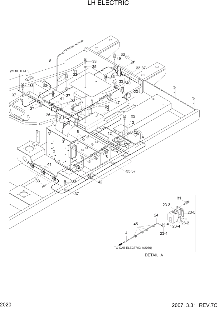
Запчасти Hyundai R320LC7A PAGE 2020 LH ELECTRIC ЭЛЕКТРИЧЕСКАЯ СИСТЕМА

Схема запчастей Hyundai R320LC7A - PAGE 2020 LH ELECTRIC ЭЛЕКТРИЧЕСКАЯ СИСТЕМА
FIT
1:1
100%

Артикул

Название

Примечание

Количество

4

21EM-30570

CONNECTOR-TUBE

1шт.

5

21L8-10320

CABLE(BATT-MASTER SW)

1шт.

6

21EN-10120

CABLE(BATT-BATT)

1шт.

7

21N8-10400

CABLE(BATT-BATT RY)

1шт.

8

21N9-40030

CABLE(BATTRY-STARTER)

1шт.

9

E125-1501

BATTERY

2шт.

10

21N8-42060

BRACKET-BATTERY

1шт.

11

21N8-42040

COVER-BATTERY

1шт.

12

21E5-0003

RELAY-BATTERY

1шт.

13

21N8-40090

COVER

1шт.

20

21N6-20322

BUZZER-TRAVEL ALARM

1шт.

23

21EG-30630

WASHER TANK ASSY

1шт.

23-1

21EG-10130

PUMP-MOTOR

1шт.

23-2

21EG-10140

TANK

1шт.

23-3

24L3-30660

CAP

1шт.

23-4

24L3-30670

RUBBER-BUSHING

1шт.

23-5

24L3-30710

PLATE

1шт.

24

21EM-30581

HOSE-RUBBER

1шт.

25

21L7-20100

SWITCH-AIR CLEANER

1шт.

31

S035-061526

BOLT-W/WASHER

2шт.

33

S037-102016

BOLT-W/WASHER

37шт.

34

S017-102306

BOLT-HEX

2шт.

35

S403-102002

WASHER-PLAIN

2шт.

37

21E9-00170

CLIP-HARNESS

16шт.

40

S543-200002

CLAMP-TUBE

4шт.

41

S543-240002

CLAMP-TUBE

10шт.

42

S543-280002

CLAMP-TUBE

1шт.

45

21EM-30630

CLAMP-QUICK

5шт.

47

25D1-10650

CLIP ASSY

1шт.

49

21N8-21090

PLATE-CONNECTOR

1шт.

Выбрано товаров: 30