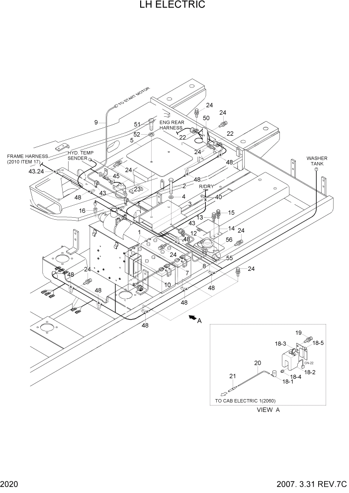
Запчасти Hyundai R360LC7A PAGE 2020 LH ELECTRIC ЭЛЕКТРИЧЕСКАЯ СИСТЕМА

Схема запчастей Hyundai R360LC7A - PAGE 2020 LH ELECTRIC ЭЛЕКТРИЧЕСКАЯ СИСТЕМА
FIT
1:1
100%

Артикул

Название

Примечание

Количество

1

E125-1501

BATTERY

2шт.

2

S017-102306

BOLT-HEX

2шт.

3

21N8-42060

BRACKET-BATTERY

1шт.

4

S403-102002

WASHER-PLAIN

2шт.

5

21N8-42040

COVER-BATTERY

1шт.

7

21EN-10120

CABLE(BATT-BATT)

1шт.

8

21N8-10400

CABLE(BATT-BATT RY)

1шт.

9

21NA-40020

CABLE(BATT RY-STARTER)

1шт.

10

21E6-10800

CABLE(BATT-MASTER SW)

1шт.

12

21E5-0003

RELAY-BATTERY

1шт.

13

S035-082526

BOLT-W/WASHER

2шт.

14

21N8-40090

COVER

1шт.

15

S035-082026

BOLT-W/WASHER

4шт.

16

21L7-20100

SWITCH-AIR CLEANER

1шт.

18

21EG-30630

WASHER TANK ASSY

1шт.

18-1

21EG-10130

PUMP-MOTOR

1шт.

18-2

21EG-10140

TANK

1шт.

18-3

24L3-30660

CAP

1шт.

18-4

24L3-30670

RUBBER-BUSHING

1шт.

18-5

24L3-30710

PLATE

1шт.

19

S035-061526

BOLT-W/WASHER

2шт.

20

21EM-10890

HOSE-WASHER TANK

1шт.

21

21EM-30570

CONNECTOR-TUBE

1шт.

22

S543-160002

CLAMP-TUBE

2шт.

23

21N6-20322

BUZZER-TRAVEL ALARM

1шт.

24

S037-102016

BOLT-W/WASHER

17шт.

43

S543-200002

CLAMP-TUBE

6шт.

45

25D1-10640

CLIP ASSY

1шт.

48

21E9-00170

CLIP-HARNESS

10шт.

50

21N8-21090

PLATE-CONNECTOR

1шт.

51

S017-100202

BOLT-HEX

1шт.

52

21EN-30560

WASHER-PLAIN

1шт.

55

S593-000752

CLIP-HARNESS

1шт.

56

21NA-01190

BRACKET-BATTERY RY

1шт.

Выбрано товаров: 34