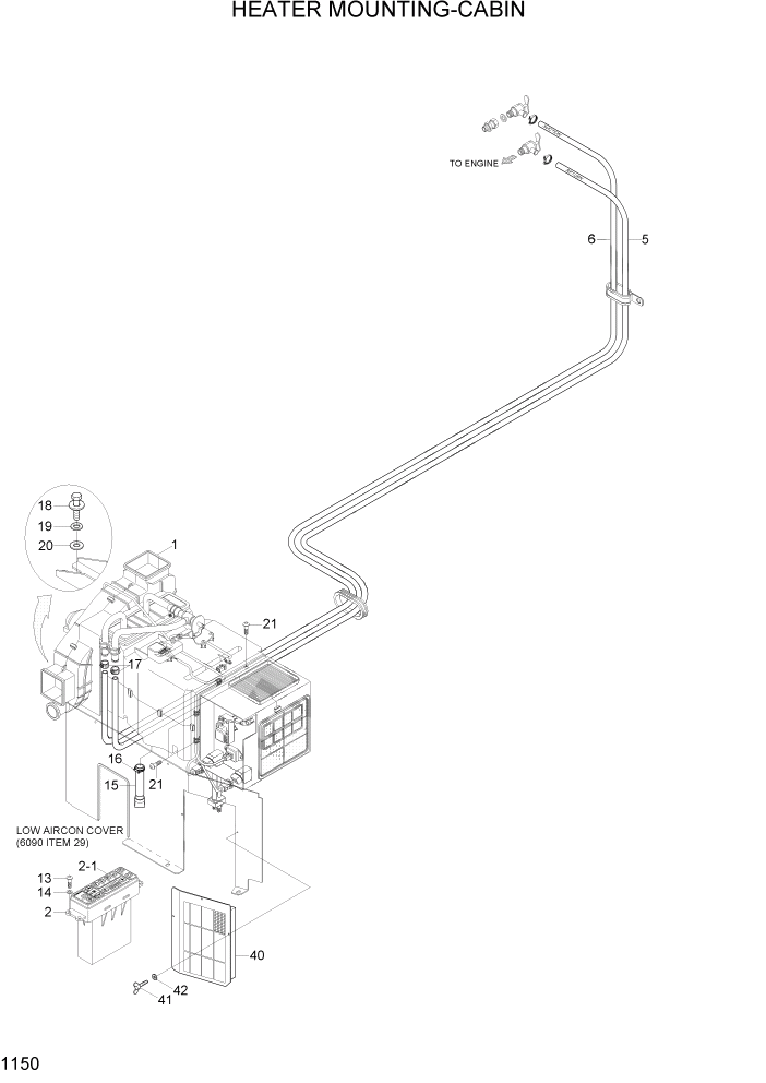
Запчасти Hyundai R370LC7 PAGE 1150 HEATER MOUNTING-CABIN СИСТЕМА ДВИГАТЕЛЯ

Схема запчастей Hyundai R370LC7 - PAGE 1150 HEATER MOUNTING-CABIN СИСТЕМА ДВИГАТЕЛЯ
FIT
1:1
100%

Артикул

Название

Примечание

Количество

1

@

HEATER UNIT

NOT

1шт.

2

11N6-90031

CONTROL ASSY

1шт.

2-1

11N6-90850

DECAL-A/C & HEATER

1шт.

5

11EK-92080

HOSE-HEATER

1шт.

6

11N8-92310

HOSE-HEATER

1шт.

13

S179-050206

SCREW-SOCKET RD HD

4шт.

14

S403-05200B

WASHER-PLAIN

4шт.

15

11EK-92090

HOSE-DRAIN

1шт.

16

S520-020000

CLAMP-HOSE

1шт.

17

S572-220006

CLAMP-HOSE,WIRE TYPE

2шт.

18

S017-120256

BOLT-HEX

4шт.

19

S441-12000B

WASHER-HARDENED

4шт.

20

73NB-56400

SHIM

4шт.

21

S151-040126

SCREW-TAPPING

4шт.

40

11N6-90340

FILTER-REC

1шт.

41

S091-060152

BOLT-WING

3шт.

42

S403-062006

WASHER-PLAIN

3шт.

Выбрано товаров: 17