Запчасти Hyundai R450LC7 PAGE 1200 PRE HEATING GROUP(#0029-) СИСТЕМА ДВИГАТЕЛЯ

Схема запчастей Hyundai R450LC7 - PAGE 1200 PRE HEATING GROUP(#0029-) СИСТЕМА ДВИГАТЕЛЯ
FIT
1:1
100%

Артикул

Название

Примечание

Количество

*

@

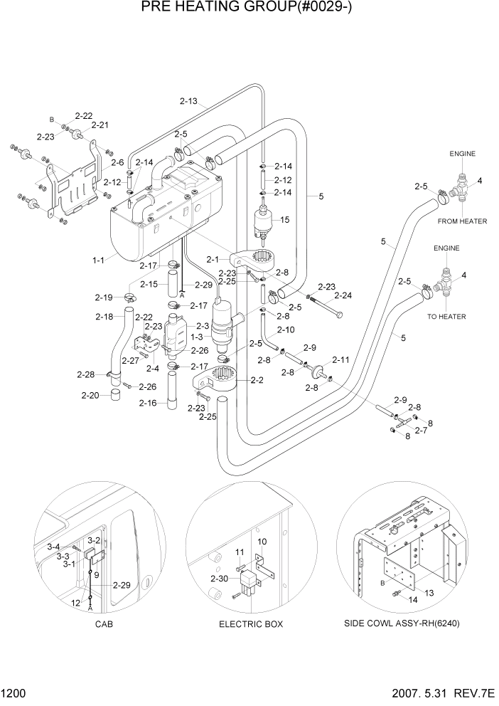
PRE HEATING GROUP

NOT #0029

1шт.

1

11N8-90500

HYDRONIC D5WS-24V

1шт.

N1-1

11N8-94100

PRE HEATER

NOT #0029

1шт.

1-3

11N8-94120

PUMP-COOLANT

1шт.

2

11N8-90510

UNIVERSAL KIT D5WS-24V

1шт.

2-1

11N8-94130

CLAMP-RUBBER

1шт.

2-2

11N8-94140

CLAMP-RUBBER

1шт.

2-3

11N8-94160

MUFFLER

1шт.

2-4

11N8-94170

BRKT-MUFFLER

1шт.

2-5

@

HOSE-CLAMP

NOT

10шт.

2-6

11N8-94150

BRKT-HEATER

1шт.

2-7

11N8-94180

TEE-FUEL

1шт.

2-8

@

CLAMP-HOSE

NOT

6шт.

2-9

@

HOSE

NOT

3шт.

2-1

@

HOSE-PLASTIC

NOT

1шт.

2-11

11N8-94190

FILTER FUEL

1шт.

2-12

@

HOSE

NOT

2шт.

2-13

@

HOSE-PLASTIC

NOT

1шт.

2-14

@

CLAMP-HOSE

NOT

4шт.

2-15

@

HOSE-EXHAUST

NOT

1шт.

2-16

@

HOSE-EXHAUST

NOT

1шт.

2-17

@

CLAMP-EXHAST

NOT

3шт.

2-18

@

HOSE-INTAKE

NOT

1шт.

2-19

@

CLAMP-INTAKE

NOT

1шт.

2-2

@

END CAP

NOT

1шт.

2-21

@

STUD BOLT

NOT

4шт.

2-22

@

NUT

NOT

5шт.

2-23

@

WASHER

NOT

9шт.

2-24

@

BOLT-HEX

NOT

1шт.

2-25

@

BOLT-HEX

NOT

2шт.

2-26

@

BOLT-HEX

NOT

3шт.

2-27

@

BOLT SCREW

NOT

2шт.

2-28

@

CLAMP

NOT

1шт.

2-29

11N8-94250

HARNESS-P/HEATER

1шт.

2-3

11N8-94260

FUSE BOX-P/HEATER

1шт.

3

11N8-90520

MINI TIMER 12/24V

1шт.

3-1

@

TIMER

NOT

1шт.

3-2

@

CUSHION

NOT

1шт.

3-3

@

BOLT SCREW

NOT

1шт.

3-4

@

CAP

NOT

1шт.

4

11N8-94200

TEE

2шт.

5

11N8-94211

HOSE

3шт.

8

S520-020000

CLAMP-HOSE

2шт.

9

11N8-94240

PLATE

1шт.

10

11N8-94270

BRACKET-F/BOX

1шт.

11

S131-043046

SCREW-W/WASHER

1шт.

12

21E9-06230

CLAMP-QUICK

2шт.

13

11N8-94290

BRACKET

1шт.

14

S037-101552

BOLT-W/WASHER

4шт.

15

11N8-94110

PUMP-FUEL

#0029

1шт.

Выбрано товаров: 50