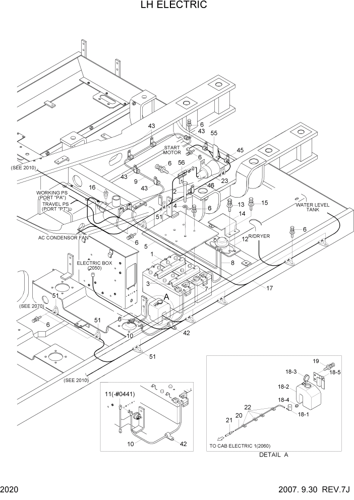
Запчасти Hyundai R450LC7 PAGE 2020 LH ELECTRIC ЭЛЕКТРИЧЕСКАЯ СИСТЕМА

Схема запчастей Hyundai R450LC7 - PAGE 2020 LH ELECTRIC ЭЛЕКТРИЧЕСКАЯ СИСТЕМА
FIT
1:1
100%

Артикул

Название

Примечание

Количество

1

21L1-1012

BATTERY

2шт.

2

S017-102652

BOLT-HEX

2шт.

3

21NB-10150

BRACKET-BATTERY

2шт.

4

S403-102002

WASHER-PLAIN

2шт.

5

21NB-21021

COVER-BATTERY

1шт.

6

S037-101652

BOLT-W/WASHER

19шт.

7

21E2-60400

CABLE(BATT-BATT)

1шт.

8

21E2-60130

CABLE(BATT-BATT RY)

1шт.

9

21E2-60030

CABLE(BATT RY-STARTER)

1шт.

10

21EK-15041

CABLE(BATT-EARTH)

1шт.

11

21NA-10600

STRAP-EARTH

#0441

1шт.

12

21E5-0003

RELAY-BATTERY

1шт.

13

S035-082522

BOLT-W/WASHER

2шт.

14

21N6-10181

COVER-BATT RELAY

1шт.

15

S035-082022

BOLT-W/WASHER

2шт.

16

21L7-20100

SWITCH-AIR CLEANER

1шт.

17

21NB-10012

HARNESS-FRAME

#0019

1шт.

17

21NB-10013

HARNESS-FRAME

#0020 - #0120

1шт.

17

21NB-10014

HARNESS-FRAME

#0121 - #0193

1шт.

17

21NB-10015

HARNESS-FRAME

#0194 - #0247

1шт.

17

21NB-10016

HARNESS-FRAME

#0248 - #0441

1шт.

17

21NB-10040

HARNESS-FRAME

#0442 - #0533

1шт.

17

21NB-10041

HARNESS-FRAME

#0534 - #0627

1шт.

17

21NB-10042

HARNESS-FRAME

#0628 - #0737

1шт.

17

21NB-10043

HARNESS-FRAME

#0738

1шт.

17-1

21N4-01311

LINK-FUSIBLE(0.85)

#0001

1шт.

17-2

21N4-01320

LINK-FUSIBLE

#0001

1шт.

18

21EG-30630

WASHER TANK ASSY

1шт.

18-1

21EG-10130

PUMP-MOTOR

1шт.

18-2

21EG-10140

TANK

1шт.

18-3

24L3-30660

CAP

1шт.

18-4

24L3-30670

RUBBER-BUSHING

1шт.

18-5

24L3-30710

PLATE

1шт.

19

S035-061622

BOLT-W/WASHER

3шт.

20

21EM-10890

HOSE-WASHER TANK

1шт.

21

21EM-30570

CONNECTOR-TUBE

1шт.

22

21EM-30630

CLAMP-QUICK

3шт.

23

21N6-20321

BUZZER-TRAVEL ALARM

#0508

1шт.

23

21N6-20322

BUZZER-TRAVEL ALARM

#0509

1шт.

42

S543-240002

CLAMP-TUBE

1шт.

43

S543-200002

CLAMP-TUBE

6шт.

45

S543-160002

CLAMP-TUBE

2шт.

46

S543-120002

CLAMP-TUBE

1шт.

51

21E9-00170

CLIP-HARNESS

5шт.

55

21N8-21090

PLATE-CONNECTOR

1шт.

56

25D1-10640

CLIP ASSY

1шт.

Выбрано товаров: 46