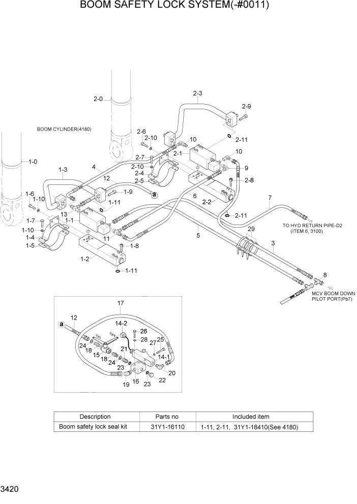
Запчасти Hyundai R450LC7 PAGE 3420 BOOM SAFETY LOCK SYSTEM(-#0011) ГИДРАВЛИЧЕСКАЯ СИСТЕМА

Схема запчастей Hyundai R450LC7 - PAGE 3420 BOOM SAFETY LOCK SYSTEM(-#0011) ГИДРАВЛИЧЕСКАЯ СИСТЕМА
FIT
1:1
100%

Артикул

Название

Примечание

Количество

*

@

BOOM SAFETY LOCK SYS

NOT #0011

1шт.

1

31NB-52220

BOOM CYL ASSY-LH(OLD,1" PIPE)

1шт.

1

@

BOOM CYL SUB ASSY

NOT

1шт.

1-1

34E7-04640

VALVE-SAFETY LOCK

1шт.

1-2

34E7-04730

BLOCK ASS'Y

1шт.

1-3

34E7-04740

PIPE ASS'Y-V

1шт.

1-4

34E7-04760

BAND SUB ASS'Y-V

1шт.

1-5

34E7-04770

BAND SUB ASS'Y-V

1шт.

1-6

S017-120352

BOLT-HEX

2шт.

1-7

S017-120402

BOLT-HEX

4шт.

1-8

S017-120602

BOLT-HEX

4шт.

1-9

S017-120652

BOLT-HEX

4шт.

1-1

S441-120002

WASHER-HARDENED

6шт.

K1-11

P590-033002

O-RING

2шт.

1-12

31Y1-09630

BAND ASSY-LH

SEE 4180,#25

1шт.

2

31NB-52230

BOOM CYL ASSY-RH(OLD.1" PIPE)

1шт.

2

@

BOOM CYL SUB ASSY

NOT

1шт.

2-1

34E7-04640

VALVE-SAFETY LOCK

1шт.

2-2

34E7-04730

BLOCK ASS'Y

1шт.

2-3

34E7-04750

PIPE ASS'Y-V

1шт.

2-4

34E7-04760

BAND SUB ASS'Y-V

1шт.

2-5

34E7-04770

BAND SUB ASS'Y-V

1шт.

2-6

S017-120352

BOLT-HEX

2шт.

2-7

S017-120402

BOLT-HEX

4шт.

2-8

S017-120602

BOLT-HEX

4шт.

2-9

S017-120652

BOLT-HEX

4шт.

2-1

S441-120002

WASHER-HARDENED

6шт.

K2-11

P590-033002

O-RING

2шт.

2-12

31Y1-09640

BAND ASSY-RH

SEE 4180,#25

1шт.

3

P410-062061

HOSE ASSY-COMP 0X45

1шт.

4

P620-067017

HOSE ASSY-THD 0X90

1шт.

5

P410-062059

HOSE ASSY-COMP 0X45

1шт.

6

P620-082017

HOSE ASSY-THD 0X90

1шт.

7

P620-082068

HOSE ASSY-THD 0X90

1шт.

8

34E7-04790

TEE-SWIVEL NUT

1шт.

9

34E7-04800

ELBOW-SWIVEL NUT

1шт.

10

34E7-03760

ELBOW-SWIVEL NUT

2шт.

11

34E7-05010

TEE-SWIVEL NUT

1шт.

12

P600-047026

HOSE ASSY-THD 0X0

1шт.

13

31ER-20040

TEE-SWIVEL

1шт.

14

31E5-50325

SWITCH-PRESSURE

OVERLOAD

1шт.

14-1

31E5-50320

SWITCH-PRESSURE

1шт.

14-2

21E5-50230

HARNESS-EXT

1шт.

15

31E5-50330

VALVE-SHUT OFF

1шт.

16

31E6-90550

BLOCK

1шт.

17

P610-047012

HOSE ASSY-THD 0X45

1шт.

18

P010-120002

CONNECTOR

2шт.

19

P030-110001

ELBOW-45

1шт.

20

31E5-50350

ELBOW-90

1шт.

21

31E6-90560

ADAPTOR-SWIVEL NUT

1шт.

22

P220-110102

PLUG

1шт.

23

S631-014004

O-RING

3шт.

24

P391-040000

WASHER-COPPER

2шт.

25

S015-050452

BOLT-HEX

2шт.

26

S017-120552

BOLT-HEX

2шт.

27

S411-050002

WASHER-SPRING

2шт.

28

S411-120002

WASHER-SPRING

2шт.

29

S552-035146

CLAMP-BAND

10шт.

30

31EG-90540

TEE-R/TYPE,S/NUT

2шт.

K

31Y1-16110

SEAL KIT

SEE ILLUST

1шт.

Выбрано товаров: 0