Запчасти Hyundai R450LC7A PAGE 1140 AIRCON & HEATER MOUNTING(AUTO, -#0297) СИСТЕМА ДВИГАТЕЛЯ

Схема запчастей Hyundai R450LC7A - PAGE 1140 AIRCON & HEATER MOUNTING(AUTO, -#0297) СИСТЕМА ДВИГАТЕЛЯ
FIT
1:1
100%

Артикул

Название

Примечание

Количество

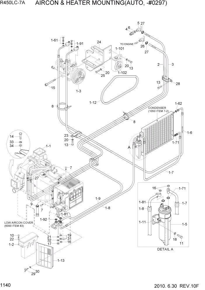
1

10N8-86400

AIRCON & HEATER(FATC)

#0001

1шт.

1-1

@

AUTO AIRCON & HEATER

NOT

1шт.

1-2

11N6-90430

CONTROL ASSY-FATC

#0203

1шт.

1-2

11N6-90431

CONTROL ASSY-FATC

#0204

1шт.

1-3

11N8-92040

COMPRESSOR ASSY

1шт.

1-5

11N6-90060

DRIER-RECEIVER

1шт.

1-6

11N8-96110

HOSE-DISCHARGE

1шт.

1-61

A304000301-4

CHARGE VALVE ASSY

1шт.

1-62

A305000205-2

O-RING

1шт.

1-7

11NA-90220

HOSE(A)-LIQUID

1шт.

1-71

A305000209-2

O-RING

2шт.

1-8

11N8-90050

HOSE(B)-LIQUID

1шт.

1-81

A305000209-2

O-RING

2шт.

1-9

11N8-96140

HOSE-SUCTION

1шт.

1-91

A304000401-4

CHARGE VALVE ASSY

1шт.

1-92

A305000203-2

O-RING

1шт.

1-1

11N6-90110

PULLEY-IDLE

1шт.

1-101

A4760-508-00-2

BRACKET-PULLEY

1шт.

1-102

A4700-511-01-2

PULLEY-IDLE

1шт.

1-11

11N6-90120

BRACKET-R/DRIER

1шт.

1-12

11E9-3503

V-BELT

1шт.

1-13

11N6-90340

FILTER-REC

SEE 6090 #0188

1шт.

2

11N8-92310

HOSE-HEATER

1шт.

3

11EK-92080

HOSE-HEATER

1шт.

4

11E9-92150

ADAPTOR

1шт.

5

14L1-01350

VALVE-HEATER

1шт.

6

P392-200000

WASHER-COPPER

1шт.

7

S152-040122

SCREW-TAPPING

4шт.

8

S551-035146

TIE-WIRE

2шт.

9

S520-015000

CLAMP-HOSE

1шт.

10

S175-050206

SCREW-SOCKET RD HD

4шт.

11

S015-060162

BOLT-HEX

2шт.

13

S017-100152

BOLT-HEX

4шт.

14

S017-120256

BOLT-HEX

4шт.

15

S109-080956

BOLT-SOCKET

4шт.

16

S201-061002

NUT-HEX

3шт.

17

S201-081002

NUT-HEX

1шт.

18

S403-062002

WASHER-PLAIN

2шт.

19

S403-061002

WASHER-PLAIN

1шт.

20

S403-102002

WASHER-PLAIN

7шт.

21

S403-081002

WASHER-PLAIN

1шт.

22

S403-052006

WASHER-PLAIN

4шт.

23

S543-420002

CLAMP-TUBE

1шт.

24

11N8-92120

BRACKET-COMP

1шт.

25

S017-100702

BOLT-HEX

3шт.

26

11EH-90100

VALVE ASSY

1шт.

27

S572-220006

CLAMP-HOSE,WIRE TYPE

4шт.

28

S542-200002

CLAMP-TUBE

1шт.

29

S091-060152

BOLT-WING

#0188

3шт.

30

S403-062006

WASHER-PLAIN

#0188

3шт.

31

S411-060002

WASHER-SPRING

1шт.

32

S411-080002

WASHER-SPRING

1шт.

33

S441-120006

WASHER-HARDENED

4шт.

34

73NB-56400

SHIM

4шт.

Выбрано товаров: 0