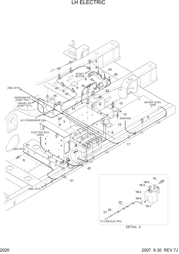
Запчасти Hyundai R500LC7 PAGE 2020 LH ELECTRIC ЭЛЕКТРИЧЕСКАЯ СИСТЕМА

Схема запчастей Hyundai R500LC7 - PAGE 2020 LH ELECTRIC ЭЛЕКТРИЧЕСКАЯ СИСТЕМА
FIT
1:1
100%

Артикул

Название

Примечание

Количество

1

21L1-1012

BATTERY

2шт.

2

S017-102652

BOLT-HEX

2шт.

3

21NB-10150

BRACKET-BATTERY

2шт.

4

S403-102002

WASHER-PLAIN

2шт.

5

21NB-21021

COVER-BATTERY

1шт.

6

S037-101652

BOLT-W/WASHER

22шт.

7

21E2-60400

CABLE(BATT-BATT)

1шт.

8

21E2-60130

CABLE(BATT-BATT RY)

1шт.

9

21E2-60030

CABLE(BATT RY-STARTER)

1шт.

10

21EK-15041

CABLE(BATT-EARTH)

1шт.

12

21E5-0003

RELAY-BATTERY

1шт.

13

S035-082522

BOLT-W/WASHER

2шт.

14

21N6-10181

COVER-BATT RELAY

1шт.

15

S035-082022

BOLT-W/WASHER

4шт.

16

21L7-20100

SWITCH-AIR CLEANER

1шт.

17

21NB-10040

HARNESS-FRAME

#0023

1шт.

17

21NB-10041

HARNESS-FRAME

#0024 - #0062

1шт.

17

21NB-10042

HARNESS-FRAME

#0063 - #0154

1шт.

17

21NB-10043

HARNESS-FRAME

#0155

1шт.

17-1

21N4-01311

LINK-FUSIBLE(0.85)

NOT SHOWN #0001

1шт.

17-2

21N4-01320

LINK-FUSIBLE

NOT SHOWN #0001

1шт.

18

21EG-30630

WASHER TANK ASSY

1шт.

18-1

21EG-10130

PUMP-MOTOR

1шт.

18-2

21EG-10140

TANK

1шт.

18-3

24L3-30660

CAP

1шт.

18-4

24L3-30670

RUBBER-BUSHING

1шт.

18-5

24L3-30710

PLATE

1шт.

19

S035-061622

BOLT-W/WASHER

2шт.

20

21EM-10890

HOSE-WASHER TANK

1шт.

21

21EM-30570

CONNECTOR-TUBE

1шт.

22

21EM-30630

CLAMP-QUICK

3шт.

23

21N6-20321

BUZZER-TRAVEL ALARM

#0013

1шт.

23

21N6-20322

BUZZER-TRAVEL ALARM

#0014

1шт.

24

21N8-21090

PLATE-CONNECTOR

1шт.

38

25D1-10640

CLIP ASSY

1шт.

42

S543-240002

CLAMP-TUBE

1шт.

43

S543-200002

CLAMP-TUBE

6шт.

45

S543-160002

CLAMP-TUBE

2шт.

46

S543-120002

CLAMP-TUBE

1шт.

51

21E9-00170

CLIP-HARNESS

7шт.

Выбрано товаров: 40