Запчасти Hyundai R800LC7A PAGE 2070 CAB ELECTRIC 2 ЭЛЕКТРИЧЕСКАЯ СИСТЕМА

Схема запчастей Hyundai R800LC7A - PAGE 2070 CAB ELECTRIC 2 ЭЛЕКТРИЧЕСКАЯ СИСТЕМА
FIT
1:1
100%

Артикул

Название

Примечание

Количество

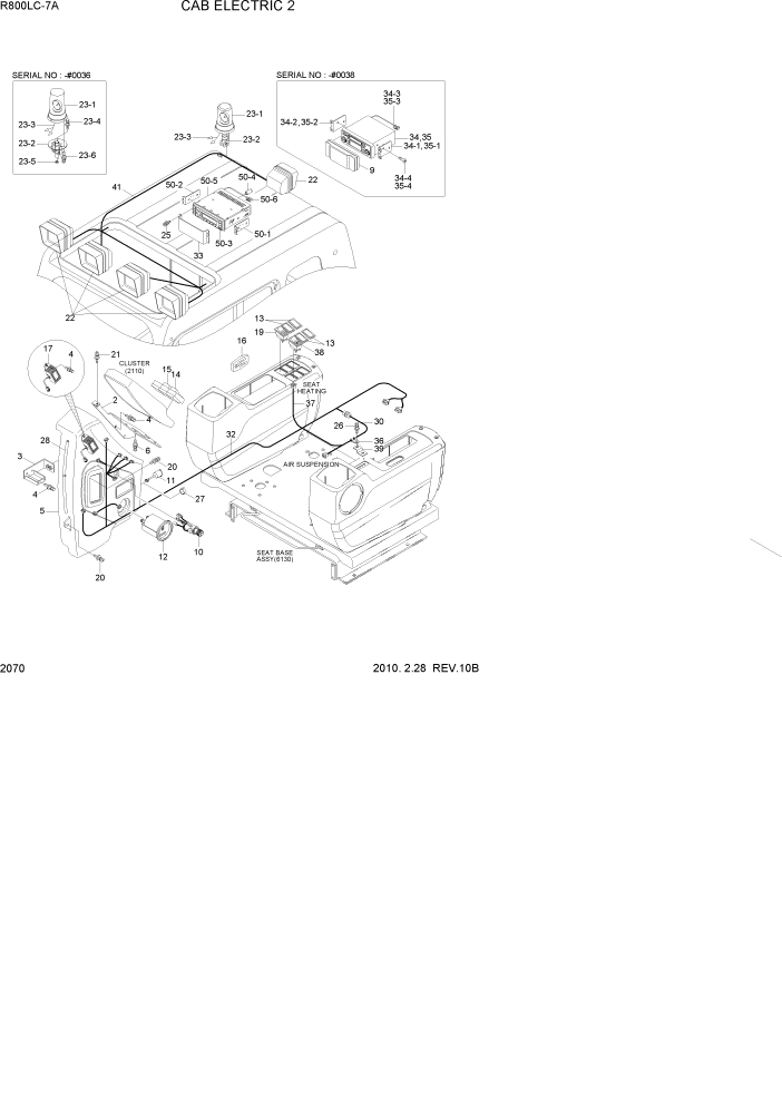
2

21N6-01320

BRACKET WA

1шт.

3

21N6-01330

BRACKET WA

1шт.

4

S035-061626

BOLT-W/WASHER

5шт.

5

21N6-01310

COVER-WIPER MOTOR

#0019

1шт.

5

21N6-01311

COVER-WIPER MOTOR

#0020

1шт.

6

S035-081526

BOLT-W/WASHER

4шт.

9

21N8-40940

COVER-DUST

1шт.

10

21E4-0008

LIGHTER-CIGAR

#0012

1шт.

10

21LM-07110

LIGHTER-CIGAR

#0013

1шт.

11

21N8-20010

SOCKET-12V

OPTION

1шт.

12

21N4-11070

HOUR METER ASSY

1шт.

13

21E6-10460

COVER

3шт.

14

21E6-40130

SWITCH-OVER LOAD

1шт.

15

21E9-20110

SW-QUICK CLAMP

1шт.

16

21N8-40910

SW-REMOTE CONTROL

1шт.

17

21N8-20201

DC-DC CONVERTER ASSY

OPTION

1шт.

19

21E6-30440

SWITCH-BEACON

OPTION

1шт.

20

S132-061676

SCREW-W/WASHER

2шт.

21

S132-061546

SCREW-W/WASHER

1шт.

22

21N6-20211

WORK LAMP ASSY

5шт.

22-1

S866-240650

BULB

NOT SHOWN

1шт.

23

@

BEACON LAMP SUB

NOT

1шт.

23-1

21EK-10140

LAMP-BEACON

OPTION #0036

1шт.

23-1

21Q4-20700

BEACON LAMP

OPTION #0037

1шт.

23-11

21EK-10330

BULB-H1, 70W

OPT, NOT SHOWN #0036

1шт.

23-11

21EK-10330

BULB-H1, 70W

OPT, NOT SHOWN #0037

1шт.

23-2

21N8-00581BG

BRACKET-BEACON LAMP

OPTION #0036

1шт.

23-2

21Q4-20600

BRACKET-TILT

OPTION #0037

1шт.

23-3

21EK-20240

HARNESS-BEACON LAMP

OPTION #0036

1шт.

23-3

21N4-02830

HARNESS-BEACON LAMP

OPTION #0037

1шт.

23-4

S037-102026

BOLT-W/WASHER

OPTION #0036

2шт.

23-5

S205-10100B

NUT-HEX

OPTION #0036

2шт.

23-6

S131-051546

SCREW-W/WASHER

OPTION #0036

3шт.

25

S131-051046

SCREW-W/WASHER

4шт.

26

S037-102026

BOLT-W/WASHER

1шт.

27

S661-260300

CAP-RUBBER

1шт.

28

S890-107508

TUBE-PVC

1шт.

30

21N8-40190

EXT.HARNESS-A/RIDE SEAT

1шт.

32

21N8-40140

HARNESS-SIDE,RH

1шт.

33

21N6-10450

PLATE-C/RADIO COVER

1шт.

34

21N8-50010

CASSETTE RADIO ASSY

STD #0011

1шт.

34

21N8-50050

CASSETTE RADIO ASSY

STD #0012 - #0038

1шт.

34-1

21N6-10480

BRACKET-LH

#0038

1шт.

34-2

21N6-10490

BRACKET-RH

#0038

1шт.

34-3

21N8-01600

HARNESS-EXT WIRE

#0038

1шт.

34-4

S141-050106

SCREW-FLAT HD

#0038

4шт.

35

21N8-40500

CD PLAYER ASSY

OPTION #0038

1шт.

35-1

21N6-10480

BRACKET-LH

#0038

1шт.

35-2

21N6-10490

BRACKET-RH

#0038

1шт.

35-3

21N8-01600

HARNESS-EXT WIRE

#0038

1шт.

35-4

S141-050106

SCREW-FLAT HD

#0038

4шт.

36

S593-000902

CLIP-HARNESS

OPTION

1шт.

37

21N4-43010

HARNESS-EXTENSION

OPTION

1шт.

38

21N4-43020

SWITCH-SEAT HEAT

OPTION

1шт.

39

21N4-01190

PLATE-CLIP

OPTION

1шт.

40

21ND-30100

HARNESS EXT(CABIN LAMP)

1шт.

50

21N8-50100

RADIO/USB PLAYER ASSY

#0039

1шт.

50-1

21LM-31010

BRACKET L

#0039

1шт.

50-2

21LM-31020

BRACKET R

#0039

1шт.

50-3

21LM-31030

CABLE-MP3

#0039

1шт.

50-4

21LM-31040

CAP

#0039

1шт.

50-5

21LM-31050

RADIO/USB BODY

#0039

1шт.

50-6

21N8-50110

HARNESS-EXT,WIRE

#0039

1шт.

Выбрано товаров: 0