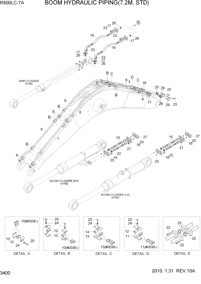
Запчасти Hyundai R800LC7A PAGE 3400 BOOM HYDRAULIC PIPING(7.2M, STD) ГИДРАВЛИЧЕСКАЯ СИСТЕМА

Схема запчастей Hyundai R800LC7A - PAGE 3400 BOOM HYDRAULIC PIPING(7.2M, STD) ГИДРАВЛИЧЕСКАЯ СИСТЕМА
FIT
1:1
100%

Артикул

Название

Примечание

Количество

4

31ND-53040

PIPE WA-ARM CYL

2шт.

5

31ND-53060

PIPE WA-BUCKET CYL,LC

1шт.

6

31ND-53050

PIPE WA-BUCKET CYL

2шт.

7

31ND-53080

PIPE WA-BUCKET CYL,LC

1шт.

8

31ND-53090

PIPE WA-BUCKET CYL,SC

1шт.

9

31ND-53100

PIPE WA-BUCKET CYL,SC

1шт.

10

31ND-51000

CLAMP ASSY

#0037

20шт.

10

31ND-51001

CLAMP ASSY

#0038

20шт.

11

31ND-51010

CLAMP-PIPE

#0037

2шт.

11

31ND-51011

CLAMP ASSY

#0038

2шт.

12

31ND-51020

GROMMET

#0037

12шт.

13

31ND-51030

CLAMP-PIPE

#0037

4шт.

13

31ND-51031

CLAMP ASSY

#0038

4шт.

14

31ND-51040

GROMMET

#0037

4шт.

15

31ND-10520

HOSE ASSY-FLG 0X0

4шт.

16

P174-200106

FLANGE-HYD,SPLIT

22шт.

17

P174-240107

FLANGE-HYD,SPLIT

12шт.

18

31ND-53110

HOSE ASSY-FLG(0X90)

1шт.

19

31ND-53120

HOSE ASSY-FLG(0X90)

1шт.

20

S017-16045D

BOLT-HEX

26шт.

21

S109-120456

BOLT-SOCKET

16шт.

22

S109-120506

BOLT-SOCKET

44шт.

23

S109-16060D

BOLT-SOCKET

#0037

24шт.

23

S109-160606

BOLT-SOCKET

#0038

24шт.

24

S411-160006

WASHER-SPRING

24шт.

25

Y171-027004

O-RING

14шт.

26

Y172-003004

O-RING

6шт.

27

P184-202212

FLANGE-HYD,PLUGING

4шт.

28

P280-204000

COVER-FLANGE

2шт.

29

P280-244000

COVER-FLANGE

2шт.

Выбрано товаров: 30