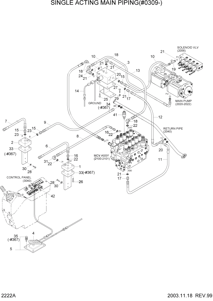
Запчасти Hyundai R160LC3 PAGE 2222A SINGLE ACTING MAIN PIPING(#0309-) ГИДРАВЛИЧЕСКАЯ СИСТЕМА

Схема запчастей Hyundai R160LC3 - PAGE 2222A SINGLE ACTING MAIN PIPING(#0309-) ГИДРАВЛИЧЕСКАЯ СИСТЕМА
FIT
1:1
100%

Артикул

Название

Примечание

Количество

*

@

S/ACT HYD KIT

NOT #0309

1шт.

*-1

@

S/ACT PIPING KIT

NOT

1шт.

*-11

@

S/ACT MAIN PIPING KIT

NOT

1шт.

1

32E6-93010

JOINT-HOSE

INCL BKT,BOLT

1шт.

2

31EM-91610

JOINT-HOSE

INCL BKT,BOLT

1шт.

3

31EM-91630

CONTROL VALVE

INCL BKT,BOLT

1шт.

4

34EA-91200

FOOT SWITCH ASSY

1шт.

5

31EM-91680

BRACKET-FOOT SWITCH

INCL BOLT

1шт.

6

P601-127028

HOSE ASSY-THD

#0367

1шт.

6

P633-126335

HOSE ASSY-THD FLG

#0368

1шт.

7

P601-167028

HOSE ASSY-THD

#0367

1шт.

7

P633-166335

HOSE ASSY-THD FLG

#0368

1шт.

8

P623-127012

HOSE ASSY-THD 0X90

#0367

1шт.

8

P623-126020

HOSE ASSY-THD 0X90

#0368

1шт.

9

P603-164018

HOSE ASSY-THD

#0367

1шт.

9

P613-163015

HOSE ASSY-THD 0X45

#0368

1шт.

10

P620-042016

HOSE ASSY-THD 0X90

2шт.

11

P620-042020

HOSE ASSY-THD 0X90

1шт.

12

P620-042050

HOSE ASSY-THD 0X90

#0367

1шт.

12

P620-042036

HOSE ASSY-THD 0X90

#0368

1шт.

13

P620-042036

HOSE ASSY-THD 0X90

#0367

1шт.

13

P620-042050

HOSE ASSY-THD 0X90

#0368

1шт.

14

21E9-20200

HARNESS-EXT

#0367

1шт.

15

P010-110006

CONNECTOR

2шт.

16

P010-110005

CONNECTOR

2шт.

17

P010-110002

CONNECTOR

#0367

2шт.

17

P010-110002

CONNECTOR

#0368

4шт.

18

P020-110001

ELBOW-90

3шт.

19

32E6-10460

TEE-SWEVEL NUT

#0367

2шт.

19

P320-040404

TEE-RUN TYPE

#0368

1шт.

20

P330-040404

TEE

#0368

1шт.

21

S631-011004

O-RING

#0367

8шт.

21

S631-011004

O-RING

#0368

9шт.

22

S631-024004

O-RING

3шт.

23

S631-029004

O-RING

2шт.

24

31EK-11130

COUPLING-SCREW

1шт.

25

S107-080252

BOLT-SOCKET

#0367

4шт.

25

S109-080126

BOLT-SOCKET

#0368

3шт.

26

S107-100252

BOLT-SOCKET

#0367

4шт.

26

S109-100256

BOLT-SOCKET

#0368

8шт.

27

S017-100302

BOLT-HEX

#0368

2шт.

28

S037-123022

BOLT-W/WASHER

#0367

4шт.

28

S017-120302

BOLT-HEX

#0368

4шт.

29

S411-100002

WASHER-SPRING

#0368

2шт.

30

S411-120002

WASHER-SPRING

#0368

4шт.

31

P030-110004

ELBOW-45

1шт.

33

31EM-91660

BRACKET-HOSE JOINT

#0367

2шт.

34

32E6-93050

BRACKET-CONTROL VV

#0367

1шт.

35

S037-103022

BOLT-W/WASHER HEX

#0367

4шт.

*-12

@

ATTACH PIPING KIT

NOT

1шт.

41

32E6-2009

PORT RELIEF VALVE

#0491

1шт.

41

31EL-91000

PORT RELIEF VALVE

#0492

1шт.

42

21E6-30540

SWITCH-BREAKER

1шт.

Выбрано товаров: 53