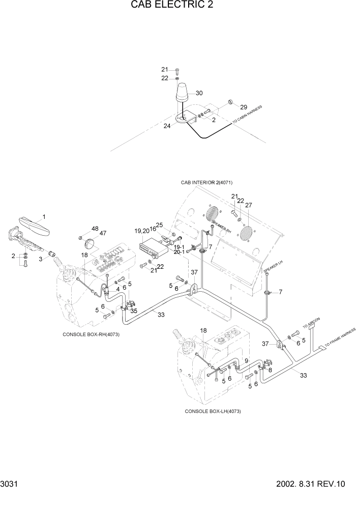
Запчасти Hyundai R160LC3 PAGE 3031 CAB ELECTRIC 2 ЭЛЕКТРИЧЕСКАЯ СИСТЕМА

Схема запчастей Hyundai R160LC3 - PAGE 3031 CAB ELECTRIC 2 ЭЛЕКТРИЧЕСКАЯ СИСТЕМА
FIT
1:1
100%

Артикул

Название

Примечание

Количество

1

21EN-00200

CLUSTER ASSY

1шт.

1-1

21E1-49530

BULB

NOT SHOWN #0001

1шт.

2

S175-060166

SCREW-SOCKET RD HD

#0001

6шт.

3

21E6-20290

GROMMET-RUBBER

1шт.

4

21E9-00170

CLIP-HARNESS

1шт.

5

S017-100206

BOLT-HEX

#0001

6шт.

6

S411-100006

WASHER-SPRING

#0001

6шт.

7

S552-050203

CLAMP-BAND

4шт.

8

21EM-40150

CLAMP

2шт.

9

31E7-0316

CLAMP-HOSE

1шт.

18

21E1-49750

HARNESS-EXT

#0101

2шт.

19

21E9-4001

CASSETTE RADIO

STD #0223

1шт.

19

21E9-20330

CASSETTE RADIO-GENERAL

STD #0224

1шт.

19-1

21E1-60340

HARNESS-EXT

#0223

1шт.

19-1

E2004050700C

CONN-A,H818HHD/HHU

#0224

1шт.

20

21E8-40010

CASSETTE RADIO

USA ONLY #0223

1шт.

20

21E9-20310

CASSETTE RADIO-U.S.A

USA ONLY #0224

1шт.

20

21E9-20320

CASSETTE RADIO-EUROPE

EU ONLY #0224

1шт.

20-1

21E1-60340

HARNESS-EXT

USA ONLY #0223

1шт.

20-1

E2004050700C

CONN-A,H818HHD/HHU

USA & EU #0224

1шт.

21

S161-050166

SCREW-RD HD

15шт.

22

S411-050006

WASHER-SPRING

15шт.

24

21EK-00580

BRACKET-BEACON LAMP

1шт.

25

S201-051006

NUT-HEX

#0001

1шт.

26

21E1-49810

PLATE-CASSETTE RADIO

1шт.

27

21EM-40220

SPEAKER ASSY

2шт.

29

S681-100400

GROMMET

1шт.

30

21EK-10420

BEACON LAMP ASSY

1шт.

30-1

21EK-10330

BULB

NOT SHOWN

1шт.

33

21EG-10030

HARNESS-MAIN

#0056

1шт.

33

21EG-10031

HARNESS-MAIN

#0057 - #0286

1шт.

33

21EG-10032

HARNESS-MAIN

#0287 - #0560

1шт.

33

21EG-10033

HARNESS-MAIN

#0561

1шт.

35

21EM-40190

CLAMP

#0001

2шт.

37

S543-200002

CLAMP-TUBE

2шт.

47

21E1-60110

BUZZER

#0287

1шт.

48

S203-081002

NUT-HEX

#0287

1шт.

Выбрано товаров: 0