Запчасти Hyundai R170W9 PAGE 2030 BOOM ELECTRIC(STD) ЭЛЕКТРИЧЕСКАЯ СИСТЕМА

Схема запчастей Hyundai R170W9 - PAGE 2030 BOOM ELECTRIC(STD) ЭЛЕКТРИЧЕСКАЯ СИСТЕМА
FIT
1:1
100%

Артикул

Название

Примечание

Количество

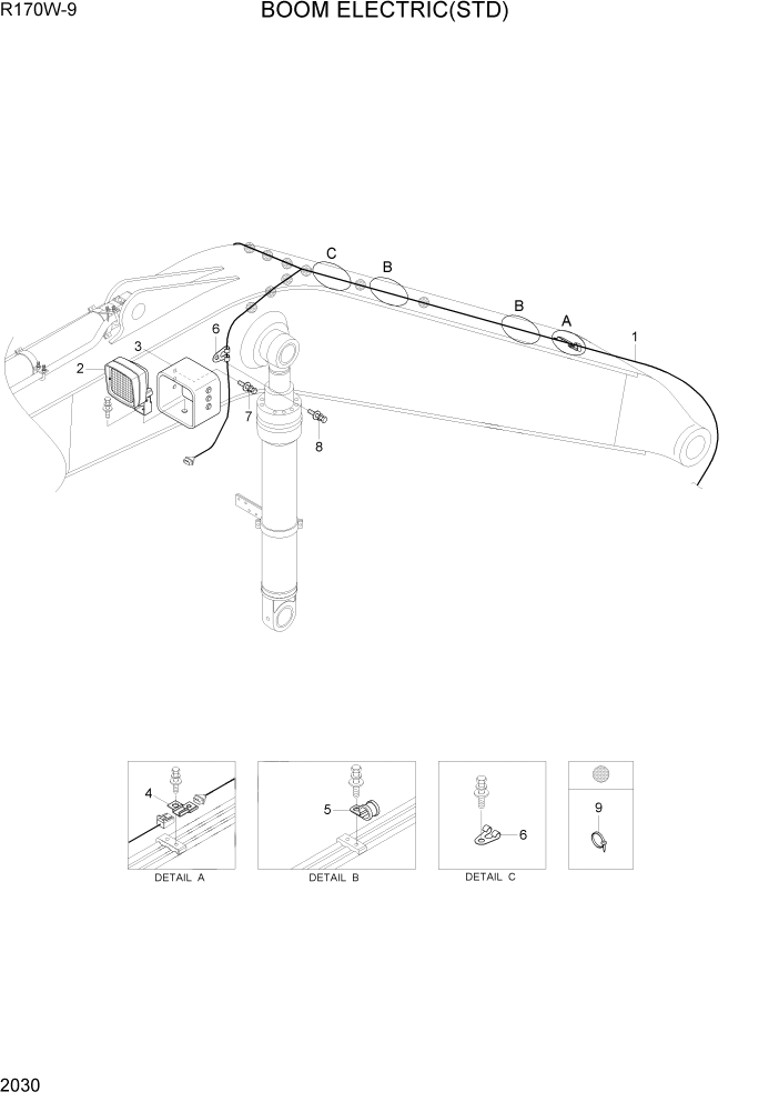
1

21Q5-20700

HARNESS-BOOM

1шт.

2

21Q4-60700

WORK LAMP ASSY

2шт.

2-1

21Q4-60800

BULB-H3

NOT SHOWN

1шт.

3

21Q5-20900

GUARD-LAMP

2шт.

4

25D1-10640

CLIP ASSY

1шт.

5

31L7-10190

CLAMP-TUBE

2шт.

6

S541-120002

CLAMP-TUBE

4шт.

7

S037-102026

BOLT-W/WASHER

4шт.

8

S037-122526

BOLT-W/WASHER

2шт.

9

S552-050203

CLAMP-BAND

11шт.

Выбрано товаров: 10