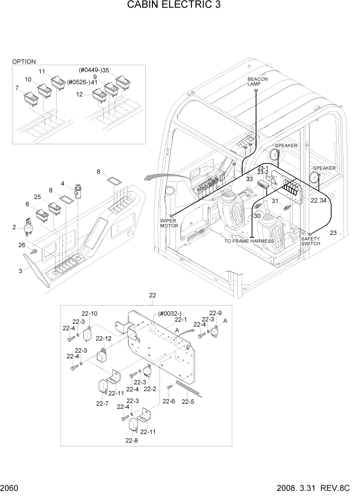
Запчасти Hyundai R55W7 PAGE 2060 CABIN ELECTRIC 3 ЭЛЕКТРИЧЕСКАЯ СИСТЕМА

Схема запчастей Hyundai R55W7 - PAGE 2060 CABIN ELECTRIC 3 ЭЛЕКТРИЧЕСКАЯ СИСТЕМА
FIT
1:1
100%

Артикул

Название

Примечание

Количество

2

21N4-10400

SWITCH ASSY-INCL KEY

SAME

1шт.

2

21N4-10430

SWITCH ASSY-INCL KEY

VARIET #1048

1шт.

2

21N3-00020

SWITCH ASSY-INCL KEY

VARIET #1049

1шт.

2-1

21N4-10400K

KEY-START

SAME

1шт.

2-1

21N4-10430K100

KEY-START

VARIET #1048

1шт.

2-1

21N3-00030

KEY-START

VARIET #1049

1шт.

3

21M8-50011

CLUSTER ASSY

#0448

1шт.

3

21M8-51010

CLUSTER ASSY

#0449 - #0812

1шт.

3

21M8-51011

CLUSTER ASSY

#0813

1шт.

4

21S4-01110

LIGHTER-CIGAR

1шт.

6

21M8-01101

SWITCH-MAIN LIGHT

1шт.

7

21M8-01111

SWITCH-AIRCON

OPTION

1шт.

8

21E6-10460

COVER

8шт.

9

21S1-31600

SWITCH-BEACON

OPTION

1шт.

10

21M5-25030

SWITCH-BREAKER

OPTION

1шт.

11

21M6-53850

SWITCH-QUICK CLAMP

OPTION

1шт.

12

21M5-25010

SWITCH-BOOM OFFSET

BOOM SWING

1шт.

22

21M8-03702

RELAY BOARD ASSY

#0031

1шт.

22

21M8-03703

RELAY BOARD ASSY

#0032

1шт.

22-1

21M8-01811

PLATE

#0031

1шт.

22-1

21M8-01812

PLATE

#0032

1шт.

22-2

21E3-0011

RELAY

#0031

8шт.

22-2

21E3-0011

RELAY

#0032

9шт.

22-3

S411-060006

WASHER-SPRING

13шт.

22-4

S015-060126

BOLT-HEX

13шт.

22-5

21E9-00170

CLIP-HARNESS

5шт.

22-6

S017-100102

BOLT-HEX

5шт.

22-7

21M6-40080

CONTROLLER-SHIFT

1шт.

22-8

21M6-40060

RELAY-INT WIPER

1шт.

22-9

21E3-0025

RELAY

1шт.

22-1

21M6-40051

FLASHER UNIT ASSY

#0017

1шт.

22-1

21M6-40052

FLASHER UNIT ASSY

#0018

1шт.

22-11

21E1-11070

PLATE

2шт.

22-12

21M8-03720

TIMER-STOP LAMP

1шт.

23

21M8-03202

HARNESS-CABIN ROOM

#0031

1шт.

23

21M8-03204

HARNESS-CABIN ROOM

#0032 - #0330

1шт.

23

21M8-03205

HARNESS-CABIN ROOM

#0331 - #1008

1шт.

23

21M8-03206

HARNESS-CABIN ROOM

#1009

1шт.

23-1

21L7-00250

FUSE BOX

1шт.

23-2

21M8-03212

DECAL-FUSE BOX

1шт.

25

21M8-01120

SWITCH-W/LAMP(12V)

1шт.

26

S161-050456

SCREW-CROSS R/ROUND

4шт.

31

S035-081526

BOLT-W/WASHER

4шт.

33

21M8-03220

DECAL FUSE BOX

LOCAL

1шт.

34

21M8-02141

DECAL-RELAY

1шт.

35

21M8-43020

SWITCHT-SEAT HEATING

#0449

1шт.

41

21M8-10830

SWITCH-REAR LAMP

#0526

1шт.

Выбрано товаров: 0