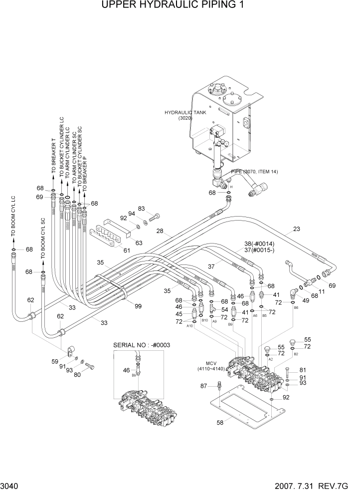
Запчасти Hyundai R55W7 PAGE 3040 UPPER HYDRAULIC PIPING 1 ГИДРАВЛИЧЕСКАЯ СИСТЕМА

Схема запчастей Hyundai R55W7 - PAGE 3040 UPPER HYDRAULIC PIPING 1 ГИДРАВЛИЧЕСКАЯ СИСТЕМА
FIT
1:1
100%

Артикул

Название

Примечание

Количество

11

31M8-10273

PIPE ASSY

1шт.

23

P930-125056

HOSE ASSY-ORFS 0X90

1шт.

28

P930-082054

HOSE ASSY-ORFS 0X90

1шт.

33

31M8-10840

HOSE ASSY-ORFS 0X90

#0225

2шт.

33

31M8-10841

HOSE ASSY-ORFS 0X90

#0226

2шт.

33

31M8-10850

HOSE ASSY-ORFS 0X90

BOOM SWING #0225

2шт.

33

31M8-10851

HOSE ASSY-ORFS 0X90

BOOM SWING #0226

2шт.

35

P930-085054

HOSE ASSY-ORFS 0X90

2шт.

37

P930-085074

HOSE ASSY-ORFS 0X90

#0014

1шт.

37

P930-085074

HOSE ASSY-ORFS 0X90

#0015

2шт.

38

P930-085072

HOSE ASSY-ORFS 0X90

#0014

1шт.

41

X500-110003

CONNECTOR-ORFS

#0003

1шт.

41

X500-110003

CONNECTOR-ORFS

#0004

2шт.

45

X511-108535

CONNECTOR-LONG,ORFS

1шт.

46

X511-108534

CONNECTOR-LONG,ORFS

#0003

3шт.

46

X511-108534

CONNECTOR-LONG,ORFS

#0004

2шт.

49

X520-110003

ELBOW-90,ORFS

1шт.

54

X820-085353

TEE-R/TYPE,ORFS

1шт.

55

P220-110104

PLUG-HEX,HEAD

2шт.

58

31M8-10520

BRACKET-MCV

#0012

1шт.

58

31M8-10521

BRACKET-MCV

#0013 - #0354

1шт.

58

31M8-10522

BRACKET-MCV

#0355

1шт.

58

31M8-15560

BRACKET-MCV

DOUBLE ACTING #0009 - #0354

1шт.

58

31M8-15561

BRACKET-MCV

#0355

1шт.

59

31M7-65290

CLAMP-HOSE

2шт.

61

31M8-10380

CLAMP-RUBBER

#0068

1шт.

61

31M8-10381

CLAMP-RUBBER

#0069 - #0225

1шт.

61

31M8-10382

CLAMP-RUBBER

#0226

1шт.

62

31M5-65270

GROMMET

2шт.

63

31M7-50020

PLATE

1шт.

68

S621-014001

O-RING

15шт.

69

S621-018001

O-RING

2шт.

72

S631-018004

O-RING

8шт.

80

S015-080456

BOLT-HEX

4шт.

81

S015-080856

BOLT-HEX

4шт.

83

S017-100656

BOLT-HEX

2шт.

87

S037-123526

BOLT-W/WASHER

4шт.

91

S403-08200B

WASHER-PLAIN

8шт.

92

S403-10200B

WASHER-PLAIN

6шт.

93

S411-080006

WASHER-SPRING

8шт.

94

S411-100006

WASHER-SPRING

2шт.

99

S551-050203

CLAMP-BAND

5шт.

Выбрано товаров: 42