Запчасти Hyundai R140W7 PAGE 2070 CAB ELECTRIC 2 ЭЛЕКТРИЧЕСКАЯ СИСТЕМА

Схема запчастей Hyundai R140W7 - PAGE 2070 CAB ELECTRIC 2 ЭЛЕКТРИЧЕСКАЯ СИСТЕМА
FIT
1:1
100%

Артикул

Название

Примечание

Количество

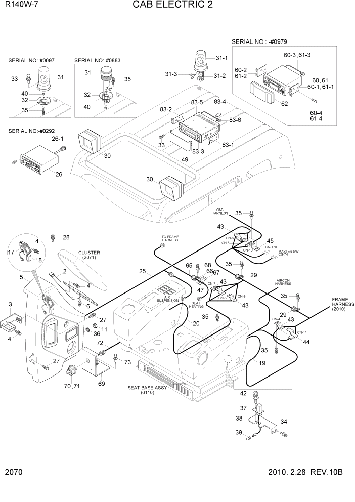
2

21N8-21011

BRACKET WA

1шт.

3

21N8-21070

BRACKET WA

1шт.

4

S035-061522

BOLT-W/WASHER

5шт.

5

21N8-21021

COVER-WIPER MOTOR

1шт.

6

S035-081522

BOLT-W/WASHER

4шт.

11

21N8-20010

SOCKET-12V

1шт.

17

21N8-20201

DC-DC CONVERTER ASSY

1шт.

18

21ER-60701

FLASHER UNIT ASSY

#0140

1шт.

18

21ER-60702

FLASHER UNIT ASSY

#0141

1шт.

19

21N8-11160

HARNESS-CONSOLE,LH

1шт.

20

21N8-11151

HARNESS-CONSOLE,RH

#0436

1шт.

20

21N4-02810

HARNESS-CONSOLE,RH

#0437

1шт.

25

21N4-11052

HARNESS-SIDE,RH

STD #0181

1шт.

25

21N4-11053

HARNESS-SIDE,RH

STD #0182 - #0350

1шт.

25

21N4-10050

HARNESS-SIDE,RH

LOW NOISE #0285 - #0350

1шт.

25

21N4-10050

HARNESS-SIDE,RH

STD, LOW NOISE #0351 - #0932

1шт.

25

21N4-21110

HARNESS-SIDE,RH

STD, LOW NOISE #0933

1шт.

26

21N8-22010

CASSETTE RADIO

USA #0292

1шт.

26

21N8-22020

CASSETTE RADIO

EU #0292

1шт.

26

21N8-22030

CASSETTE RADIO

OTHER #0292

1шт.

26-1

375500043204

WIRE ASSY-20 H818

#0292

1шт.

27

S132-061676

SCREW-W/WASHER

2шт.

28

S132-061546

SCREW-W/WASHER

1шт.

29

S543-280003

CLAMP-TUBE

2шт.

30

21N6-20211

WORK LAMP ASSY

2шт.

30-1

S866-240650

BULB

NOT SHOWN

1шт.

31

21EK-10420

BEACON LAMP ASSY

#0097

1шт.

31

F23842010

STROBE LAMP-RED

#0098

1шт.

32

21N8-00580

BRACKET-BEACON LAMP

#0097

1шт.

32

21N8-00581

BRACKET-BEACON LAMP

#0098 - #0618

1шт.

32

21N8-00581BG

BRACKET-BEACON LAMP

#0619

1шт.

33

S131-051046

SCREW-W/WASHER

#0097

7шт.

33

S131-051046

SCREW-W/WASHER

#0098

4шт.

34

S131-051646

SCREW-W/WASHER

2шт.

35

S037-102022

BOLT-W/WASHER

9шт.

36

S661-260300

CAP-RUBBER

1шт.

37

21M5-50250

SWITCH ASSY

1шт.

38

21N8-21080

PLATE

1шт.

39

S890-107508

TUBE-PVC

1шт.

40

S205-101002

NUT-HEX

2шт.

42

S131-041026

SCREW-W/WASHER

1шт.

43

21N4-01130

PLATE-CLIP

4шт.

44

25D1-10660

CLIP ASSY

1шт.

45

25D1-10650

CLIP ASSY

1шт.

47

21N8-40190

EXT.HARNESS-A/RIDE SEAT

#0182

1шт.

49

21N6-10450

PLATE-C/RADIO COVER

1шт.

60

21N8-50010

CASSETTE RADIO ASSY

STD #0293 - #0749

1шт.

60

21N8-50050

CASSETTE RADIO ASSY

STD #0750 - #0979

1шт.

60-1

21N6-10480

BRACKET-LH

#0293 - #0979

1шт.

60-2

21N6-10490

BRACKET-RH

#0293 - #0979

1шт.

60-3

21N8-01600

HARNESS-EXT WIRE

#0293 - #0979

1шт.

60-4

S141-050102

SCREW-FLAT HD

#0293 - #0979

4шт.

61

21N8-40500

CD PLAYER ASSY

OPTION #0293 - #0979

1шт.

61-1

21N6-10480

BRACKET-LH

#0293 - #0979

1шт.

61-2

21N6-10490

BRACKET-RH

#0293 - #0979

1шт.

61-3

21N8-01600

HARNESS-EXT WIRE

#0293 - #0979

1шт.

61-4

S141-050102

SCREW-FLAT HD

#0293 - #0979

4шт.

62

21N8-40940

COVER-DUST

#0293

1шт.

65

21N4-02820

HARNESS-SEAT HEATING

#0437

1шт.

66

S593-000902

CLIP-HARNESS

#0437

1шт.

67

21N4-01190

PLATE-CLIP

#0437

1шт.

68

S037-102026

BOLT-W/WASHER

#0437

1шт.

69

21N4-47300

BRACKET-MASTER SW

#0933

1шт.

70

21L7-10501

SWITCH-MASTER

#0933

1шт.

71

21LD-34180

DECAL-MASTER SWITCH

#0933

1шт.

72

21N8-40170

HARNESS-EXTENSION

#0933

1шт.

73

S037-102026

BOLT-W/WASHER

#0933

2шт.

83

21N8-50100

RADIO/USB PLAYER ASSY

#0980

1шт.

83-1

21LM-31010

BRACKET L

#0980

1шт.

83-2

21LM-31020

BRACKET R

#0980

1шт.

83-3

21LM-31030

CABLE-MP3

#0980

1шт.

83-4

21LM-31040

CAP

#0980

1шт.

83-5

21LM-31050

RADIO/USB BODY

#0980

1шт.

83-6

21N8-50110

HARNESS-EXT,WIRE

#0980

1шт.

Выбрано товаров: 74