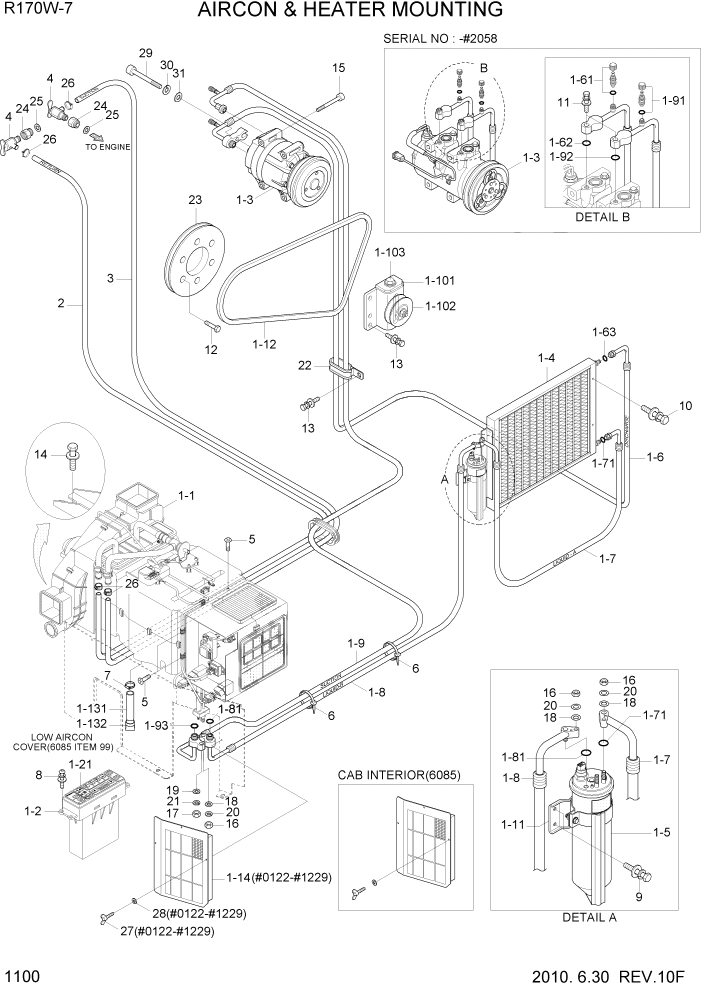
Запчасти Hyundai R170W7 PAGE 1100 AIRCON & HEATER MOUNTING СИСТЕМА ДВИГАТЕЛЯ

Схема запчастей Hyundai R170W7 - PAGE 1100 AIRCON & HEATER MOUNTING СИСТЕМА ДВИГАТЕЛЯ
FIT
1:1
100%

Артикул

Название

Примечание

Количество

1

11N5-90010

AIR CON & HEATER ASSY

1шт.

1-1

11N6-90020

AIRCON & HEATER UNIT

#0498

1шт.

1-1

11N6-90021

AIRCON & HEATER UNIT

#0499

1шт.

1-2

11N6-90030

CONTROL ASSY

#0022

1шт.

1-2

11N6-90031

CONTROL ASSY-SEMI

#0023

1шт.

1-21

11N6-90850

DECAL-A/C & HEATER

#0001

1шт.

1-3

11N6-90040

COMPRESSOR ASSY

#2058

1шт.

1-3

11Q6-90040

COMPRESSOR ASSY

#2059

1шт.

1-31

11LF-90230

THERMAL SW-COMP

#0001 - #2058

1шт.

1-32

A5W00153

CLUTCH

#0001 - #2058

1шт.

1-4

11EM-90050

CONDENSER ASSY

1шт.

1-5

11N6-90060

DRIER-RECEIVER

1шт.

1-6

11N6-90190

HOSE-DISCHARGE

#2058

1шт.

1-6

11N6-90191

HOSE-DISCHARGE

#2059

1шт.

1-61

A304000301-4

CHARGE VALVE ASSY

#2058

1шт.

1-62

A305000206-2

O-RING

#2058

1шт.

1-63

A305000205-2

O-RING

#2058

1шт.

1-7

11N4-90080

HOSE(A)-LIQUID

1шт.

1-71

A305000209-2

O-RING

2шт.

1-8

11N5-90090

HOSE(B)-LIQUID

1шт.

1-81

A305000209-2

O-RING

2шт.

1-9

11N4-90100

HOSE-SUCTION

#2058

1шт.

1-9

11N4-90101

HOSE-SUCTION

#2059

1шт.

1-91

A304000401-4

CHARGE VALVE ASSY

#2058

1шт.

1-92

A310069299-2

O-RING

#2058

1шт.

1-93

A305000203-2

O-RING

#2058

1шт.

1-1

11N6-90110

PULLEY-IDLE

1шт.

1-101

A4760-508-00-2

BRACKET-PULLEY

1шт.

1-102

A4700-511-01-2

PULLEY-IDLE

1шт.

1-103

A8900-518-03-3

BOLT-TENSION

#0001

1шт.

1-11

11N6-90120

BRACKET-R/DRIER

1шт.

1-12

12E2-3505

V-BELT

1шт.

1-13

11EK-92090

HOSE-DRAIN

1шт.

1-131

AM800-001-04-3

HOSE-DRAIN

1шт.

1-132

4CC-3354Z

VALVE-VACUUM

1шт.

1-14

11N6-90340

FILTER-REC

SEE 6085 #0122 - #1229

1шт.

2

11E6-92080

HOSE

1шт.

3

11EK-92080

HOSE-HEATER

1шт.

4

14L1-01350

VALVE-HEATER

2шт.

5

S152-040122

SCREW-TAPPING

4шт.

6

S551-035146

TIE-WIRE

2шт.

7

S520-020000

CLAMP-HOSE

1шт.

8

S131-051546

SCREW-W/WASHER

4шт.

9

S035-062022

BOLT-W/WASHER

2шт.

10

S035-082022

BOLT-W/WASHER

4шт.

11

S035-083022

BOLT-W/WASHER

#2058

2шт.

12

S109-100406

BOLT-SOCKET

6шт.

13

S037-102022

BOLT-W/WASHER

4шт.

14

S037-123522

BOLT-W/WASHER

4шт.

15

S109-080956

BOLT-SOCKET

#2058

4шт.

15

S109-080856

BOLT-SOCKET

#2059

4шт.

16

S205-061002

NUT-HEX

3шт.

17

S205-081002

NUT-HEX

1шт.

18

S403-062002

WASHER-PLAIN

3шт.

19

S403-082002

WASHER-PLAIN

1шт.

20

S411-060002

WASHER-SPRING

3шт.

21

S411-080002

WASHER-SPRING

1шт.

22

S543-400002

CLAMP-TUBE

1шт.

23

11N5-92010

PULLY-AIR CON

1шт.

24

11N5-93010

CONNECTOR-HEAT VLV

2шт.

25

P392-160000

WASHER-COPPER

2шт.

26

S572-220006

CLAMP-HOSE,WIRE TYPE

4шт.

27

S091-060166

BOLT-WING

#0122 - #1229

3шт.

28

S403-062006

WASHER-PLAIN

#0122 - #1229

3шт.

29

S018-100356

BOLT-HEX

#2059

1шт.

30

S411-100006

WASHER-SPRING

#2059

1шт.

31

S403-10200B

WASHER-PLAIN

#2059

1шт.

N

@

NOT SUPPLIED PARTS

NOT

ARшт.

Выбрано товаров: 68