Запчасти Hyundai R170W7A PAGE 2010 RH ELECTRIC ЭЛЕКТРИЧЕСКАЯ СИСТЕМА

Схема запчастей Hyundai R170W7A - PAGE 2010 RH ELECTRIC ЭЛЕКТРИЧЕСКАЯ СИСТЕМА
FIT
1:1
100%

Артикул

Название

Примечание

Количество

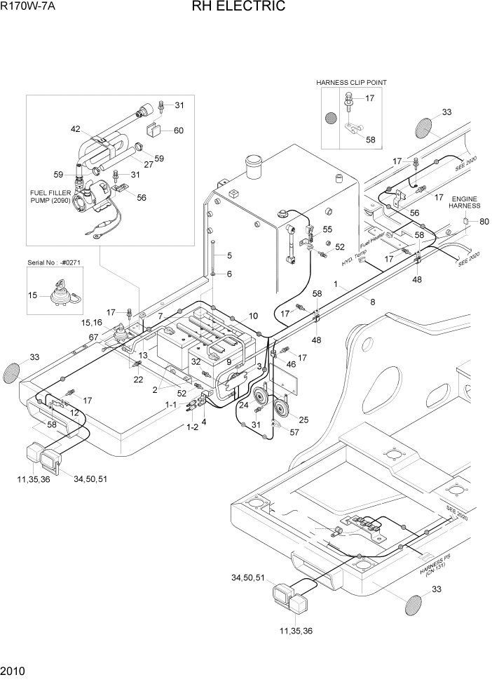
1

21N5-40201

HARNESS-FRAME

#0318

1шт.

1

21N5-40202

HARNESS-FRAME

#0319

1шт.

1-1

21N4-01311

LINK-FUSIBLE(0.85)

NOT SHOWN #0318

1шт.

1-2

21N4-01320

LINK-FUSIBLE

NOT SHOWN #0318

1шт.

1-3

21EA-50550

DIODE

NOT SHOWN

1шт.

2

21E6-20270

BATTERY

2шт.

3

21E5-0003

RELAY-BATTERY

1шт.

4

21N4-01140

PLATE

1шт.

5

S017-102506

BOLT-HEX

2шт.

6

S403-10200B

WASHER-PLAIN

2шт.

7

25D1-10150

BAR-BATTERY

2шт.

8

21N4-40600

CABLE(BATTRY-STARTER)

1шт.

9

21EA-60490

CABLE(BATT-BATT RY)

1шт.

10

21N4-01400

CABLE(BATT-BATT)

1шт.

11

S161-040356

SCREW-CROSS R/ROUND

4шт.

12

21E7-0606

PLATE-CONNECTOR

1шт.

13

21EM-11000

CABLE(BATT-MASTER SW)

1шт.

15

21N4-10441

SWITCH-MASTER

#0271

1шт.

15

21L7-10500

SWITCH-MASTER

#0272 - #0318

1шт.

15-1

21N4-10441K

KEY-MASTER SWITCH

#0318

1шт.

16

21N4-10451

DECAL-MASTER SW

#0276

1шт.

16

21LD-34180

DECAL-MASTER SWITCH

#0277 - #0318

1шт.

17

S037-102026

BOLT-W/WASHER

21шт.

22

S035-061526

BOLT-W/WASHER

1шт.

24

21N5-10050

HORN-LOW

1шт.

25

21N5-10060

HORN-HIGH

1шт.

27

21N4-20530

HOSE-OUTLET

1шт.

31

S035-082026

BOLT-W/WASHER

5шт.

32

S035-083026

BOLT-W/WASHER

2шт.

33

21EK-10150

REFLECTOR-SIDE

3шт.

34

21EK-10350

LAMP-FLASHER POSITION

2шт.

35

21EK-10120

LAMP-HEAD

2шт.

36

21EK-10131

BULB

2шт.

42

E127-3158

BAND-FUEL PUMP

1шт.

46

S543-120002

CLAMP-TUBE

1шт.

48

S543-160002

CLAMP-TUBE

2шт.

50

S151-040156

SCREW-TAPPING

4шт.

51

S411-040006

WASHER-SPRING

4шт.

52

S037-101556

BOLT-W/WASHER

2шт.

55

25D1-10640

CLIP ASSY

1шт.

56

25D1-10650

CLIP ASSY

2шт.

57

21E9-00170

CLIP-HARNESS

1шт.

58

S593-001302

CLIP-HARNESS

16шт.

59

S520-032000

CLAMP-HOSE

3шт.

60

21N4-00770

CLIP

1шт.

67

21N8-40170

HARNESS-EXTENSION

#0318

1шт.

80

21N5-20190

PROTECTOR

#0319

1шт.

Выбрано товаров: 47