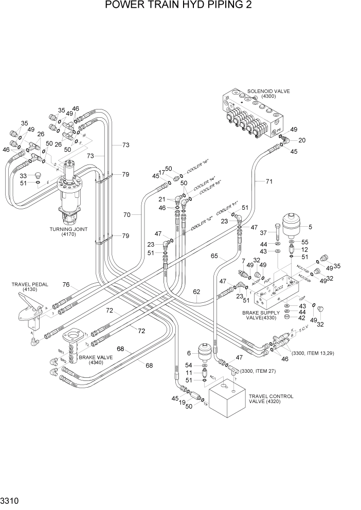
Запчасти Hyundai R200W7A PAGE 3310 POWER TRAIN HYD PIPING 2 ГИДРАВЛИЧЕСКАЯ СИСТЕМА

Схема запчастей Hyundai R200W7A - PAGE 3310 POWER TRAIN HYD PIPING 2 ГИДРАВЛИЧЕСКАЯ СИСТЕМА
FIT
1:1
100%

Артикул

Название

Примечание

Количество

5

81L1-0003

ACCUMULATOR

2шт.

6

31EC-02190

ACCUMULATOR

1шт.

7

31LF-00500

SWITCH-PRESSURE

BRAKE FAILURE

1шт.

11

31N6-30120

CONNECTOR

1шт.

12

31N6-30110

CONNECTOR

2шт.

17

X500-110013

CONNECTOR-ORFS

1шт.

19

X511-106513

CONNECTOR-LONG,ORFS

1шт.

20

X520-110001

ELBOW-90,ORFS

1шт.

21

X520-110002

ELBOW-90,ORFS

2шт.

23

X520-110003

ELBOW-90,ORFS

3шт.

26

31N5-30040

TEE

4шт.

32

P220-110102

PLUG

3шт.

33

P220-110104

PLUG-HEX

1шт.

35

31EK-11130

COUPLING-SCREW

5шт.

37

S017-100906

BOLT-HEX

3шт.

42

S205-101006

NUT-HEX

2шт.

43

S403-10100B

WASHER-PLAIN

2шт.

44

S411-100006

WASHER-SPRING

2шт.

45

S621-011001

O-RING

3шт.

46

S621-012001

O-RING

8шт.

47

S621-014001

O-RING

4шт.

49

S631-011004

O-RING

10шт.

50

S631-014004

O-RING

8шт.

51

S631-018004

O-RING

6шт.

54

X321-018001

RING-ED

1шт.

55

X321-022001

RING-ED

2шт.

62

P910-082024

HOSE ASSY-ORFS 0X0

1шт.

65

P930-082018

HOSE ASSY-ORFS 0X90

1шт.

68

P930-063046

HOSE ASSY-ORFS 0X90

2шт.

70

X400-042049

HOSE ASSY-SYNFLEX,ORFS

1шт.

71

X400-042079

HOSE ASSY-SYNFLEX,ORFS

1шт.

72

X400-062044

HOSE ASSY-SYNFLEX,ORFS

2шт.

73

X400-062051

HOSE ASSY-SYNFLEX,ORFS

2шт.

76

X420-042052

HOSE ASSY-SYNFLEX,ORFS

1шт.

79

S551-050203

CLAMP-BAND

10шт.

Выбрано товаров: 35