Запчасти Hyundai HL740-3ATM PAGE 3030 T/M MOUNTING & COOLING SYSTEM ТРАНСМИССИЯ

Схема запчастей Hyundai HL740-3ATM - PAGE 3030 T/M MOUNTING & COOLING SYSTEM ТРАНСМИССИЯ
FIT
1:1
100%

Артикул

Название

Примечание

Количество

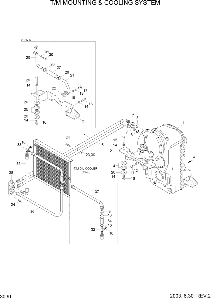
1

81L7-60070

TRANSMISSION ASSY

#0848

1шт.

2

81L7-60080

BRACKET WA

1шт.

3

81L7-60090

BRACKET WA

1шт.

4

11N6-10445

RUBBER-MOUNT

4шт.

5

81L7-60100

HOSE ASSY

1шт.

5

P620-161040

HOSE ASSY-THD 0X90

2шт.

7

P105-117163

CONNECTOR-LONG

2шт.

8

S631-030001

O-RING

#0874

2шт.

8

S631-030001

O-RING

#0875

2шт.

9

P010-110006

CONNECTOR

1шт.

10

S631-029004

O-RING

4шт.

11

S017-160352

BOLT-HEX

4шт.

12

S441-160002

WASHER-HARDENED

4шт.

13

S017-200352

BOLT-HEX

4шт.

14

S441-200002

WASHER-HARDENED

8шт.

15

S017-201302

BOLT-HEX

2шт.

16

S205-201002

NUT-HEX

4шт.

17

S015-080302

BOLT-HEX

2шт.

18

S403-081002

WASHER-PLAIN

2шт.

19

S411-080002

WASHER-SPRING

2шт.

20

11L7-00170

WASHER-REBOUND

6шт.

21

81L7-60130

FLANGE WA

1шт.

22

12L2-0013

GASKET

1шт.

23

81L7-60310

CLAMP-HOSE

1шт.

24

S037-102052

BOLT-W/WASHER

3шт.

25

11N6-10460

RUBBER-MOUNT

4шт.

26

S017-201402

BOLT-HEX

2шт.

27

81L7-60140

HOSE

1шт.

28

S520-055000

CLAMP-HOSE

2шт.

29

81L7-60350

PIPE WA

#0848

1шт.

30

S017-100602

BOLT-HEX

1шт.

31

S441-100002

WASHER-HARDENED

1шт.

32

81L7-60260

TEE

1шт.

33

81L7-60270

TEE

1шт.

34

81L6-01260

CHECK VALVE

1шт.

35

81L7-60290

HOSE ASSY

1шт.

36

P600-161021

HOSE ASSY-THD

1шт.

37

81L7-60340

HOSE ASSY

1шт.

38

81L7-60300

ELBOW WA

1шт.

39

S791-040011

GROMMET-PLATE

2шт.

Выбрано товаров: 0