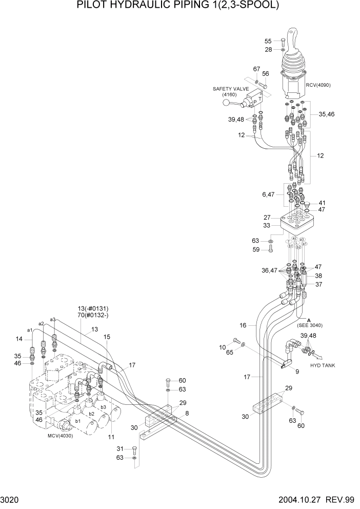
Запчасти Hyundai HL7803A PAGE 3020 PILOT HYDRAULIC PIPING 1(2,3-SPOOL) ГИДРАВЛИЧЕСКАЯ СИСТЕМА

Схема запчастей Hyundai HL7803A - PAGE 3020 PILOT HYDRAULIC PIPING 1(2,3-SPOOL) ГИДРАВЛИЧЕСКАЯ СИСТЕМА
FIT
1:1
100%

Артикул

Название

Примечание

Количество

6

31EK-20110

FILTER-LAST GUARD

#0003

7шт.

6

P010-110012

CONNECTOR

#0004

7шт.

8

31L6-01730

PLATE

1шт.

9

31L6-02460

CLAMP-TUBE

1шт.

10

S015-080152

BOLT-HEX

1шт.

11

P620-062053

HOSE ASSY-THD 0X90

1шт.

12

P600-062008

HOSE ASSY-THD

8шт.

13

P600-062065

HOSE ASSY-THD

#0131

2шт.

13

P600-062065

HOSE ASSY-THD

#0132

1шт.

14

P600-062062

HOSE ASSY-THD

1шт.

15

P620-062052

HOSE ASSY-THD 0X90

1шт.

16

P620-062037

HOSE ASSY-THD 0X90

1шт.

17

P620-062077

HOSE ASSY-THD 0X90

1шт.

27

74L3-00570

PAD-RUBBER

#0070

1шт.

27

31L6-40130

PAD-RUBBER

#0071

1шт.

28

S403-062002

WASHER-PLAIN

4шт.

29

31L6-01411

CLAMP

4шт.

30

31L6-01421

CLAMP

2шт.

31

S017-120302

BOLT-HEX

2шт.

33

34L1-01490

BLOCK

#0070

1шт.

33

31L6-40120

BLOCK

#0071

1шт.

35

P010-120012

CONNECTOR

13шт.

36

P010-110012

CONNECTOR

5шт.

37

P101-104066

CONNECTOR-LONG

1шт.

38

P101-104069

CONNECTOR-LONG

1шт.

39

P010-110003

CONNECTOR

3шт.

41

P220-110102

PLUG-HEX

4шт.

46

P391-040000

WASHER-COPPER

13шт.

47

S631-011004

O-RING

18шт.

48

S631-014004

O-RING

3шт.

55

S015-060252

BOLT-HEX

4шт.

56

S015-080502

BOLT-HEX

2шт.

59

S017-120502

BOLT-HEX

#0070

3шт.

59

S017-120502

BOLT-HEX

#0071

4шт.

60

S017-120802

BOLT-W/WASHER

4шт.

63

S441-120002

WASHER-HARDENED

#0070

9шт.

63

S441-120002

WASHER-HARDENED

#0071

10шт.

65

S441-080002

WASHER-HARDENED

1шт.

67

S403-082002

WASHER-PLAIN

2шт.

70

P600-062065

HOSE ASSY-THD

#0132

1шт.

Выбрано товаров: 40