Запчасти Hyundai HL7803A PAGE 3040 PILOT HYDRAULIC PIPING 3 ГИДРАВЛИЧЕСКАЯ СИСТЕМА

Схема запчастей Hyundai HL7803A - PAGE 3040 PILOT HYDRAULIC PIPING 3 ГИДРАВЛИЧЕСКАЯ СИСТЕМА
FIT
1:1
100%

Артикул

Название

Примечание

Количество

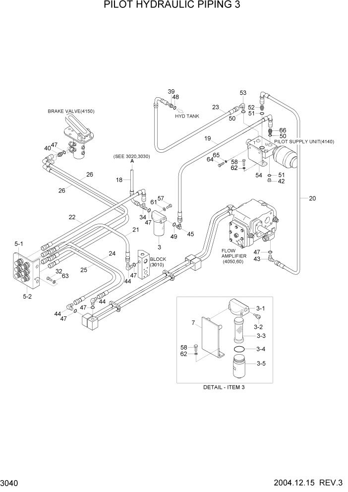
3

31E3-0017

FILTER-LINE

1шт.

3-1

31E3-00670

HEAD-FILTER

#0001

1шт.

3-2

31E3-00680

VALVE ASSY

#0001

1шт.

3-3

31E3-0018

ELEMENT-LINE FILTER

#0001

1шт.

3-4

31E3-00700

O-RING

#0001

1шт.

3-5

31E3-00710

CASE-FILTER

#0001

1шт.

5

31L6-01720

SCREW COUPLING ASSY

1шт.

5-1

31EM-30210

COUPLING-SCREW

6шт.

5-2

31L6-01740

PLATE

1шт.

7

34L1-01881

PLATE WA

1шт.

18

P620-062025

HOSE ASSY-THD 0X90

1шт.

19

P620-062038

HOSE ASSY-THD 0X90

1шт.

20

P620-066010

HOSE ASSY-THD 0X90

1шт.

21

P600-047023

HOSE ASSY-THD

1шт.

22

P600-042033

HOSE ASSY-THD

1шт.

23

P620-062040

HOSE ASSY-THD 0X90

1шт.

24

P600-047019

HOSE ASSY-THD

1шт.

25

P600-047016

HOSE ASSY-THD

1шт.

26

P620-043030

HOSE ASSY-THD 0X90

2шт.

32

S017-120252

BOLT-HEX

2шт.

34

P320-080406

TEE-RUN TYPE

1шт.

39

P010-110003

CONNECTOR

1шт.

40

P010-110002

CONNECTOR

2шт.

42

P220-310103

PLUG-HEX

1шт.

43

P020-110011

ELBOW-90

1шт.

44

P020-110001

ELBOW-90

3шт.

45

P020-110014

ELBOW-90

1шт.

47

S631-011004

O-RING

6шт.

48

S631-014004

O-RING

1шт.

49

S631-018004

O-RING

2шт.

50

S611-012001

O-RING

2шт.

51

S611-016001

O-RING

2шт.

52

P010-310005

CONNECTOR

1шт.

53

P020-310003

ELBOW-90

1шт.

54

31L6-00711

PLATE

1шт.

57

S015-060602

BOLT-HEX

2шт.

58

S017-100252

BOLT-HEX

4шт.

61

S411-060002

WASHER-SPRING

2шт.

62

S441-100002

WASHER-HARDENED

4шт.

63

S441-120002

WASHER-HARDENED

3шт.

64

S015-080202

BOLT-HEX

2шт.

65

S441-080002

WASHER-HARDENED

2шт.

66

P010-310004

CONNECTOR

1шт.

Выбрано товаров: 43