Запчасти Hyundai HL730-7 PAGE 2010 CAB ELECTRIC 1 ЭЛЕКТРИЧЕСКАЯ СИСТЕМА

Схема запчастей Hyundai HL730-7 - PAGE 2010 CAB ELECTRIC 1 ЭЛЕКТРИЧЕСКАЯ СИСТЕМА
FIT
1:1
100%

Артикул

Название

Примечание

Количество

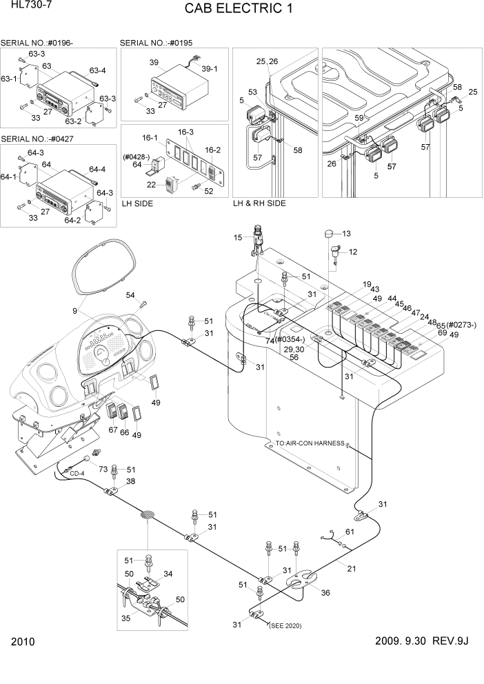
5

21N6-20211

WORK LAMP ASSY

4шт.

5-1

S866-240650

BULB

NOT SHOWN

1шт.

9

21LB-50011

CLUSTER ASSY

#0273

1шт.

9

21LB-50012

CLUSTER ASSY

#0274

1шт.

12

21N8-20010

SOCKET-12V

OPT

1шт.

13

S661-260300

CAP-RUBBER

STD

1шт.

15

21E4-0008

LIGHTER-CIGAR

#0372

1шт.

15

21LM-07110

LIGHTER-CIGAR

#0373

1шт.

16

21LB-40120

SWITCH ASSY

1шт.

16-1

21LB-40090

COVER-PLATE

1шт.

16-2

21LB-40290

SWITCH-BUZZER STOP

1шт.

16-3

21E6-10460

COVER

4шт.

19

21LB-40140

SWITCH-HAZARD

1шт.

21

21LG-10013

HARNESS-MAIN

#0022

1шт.

21

21LG-10014

HARNESS-MAIN

#0023 - #0154

1шт.

21

21LG-10015

HARNESS-MAIN

#0155 - #0173

1шт.

21

21LG-10016

HARNESS-MAIN

#0174 - #0272

1шт.

21

21LG-10018

HARNESS-MAIN

#0273 - #0273

1шт.

21

21LG-10019

HARNESS-MAIN

#0274 - #0309

1шт.

21

21LG-10100

HARNESS-MAIN

#0310

1шт.

22

21LB-40300

SWITCH-BEACON

OPT

1шт.

R24

21LB-40210

SWITCH-RIDE CONTROL

RIDE CONTROL

1шт.

25

25D1-10650

CLIP ASSY

2шт.

26

25D1-10640

CLIP ASSY

2шт.

27

S401-052006

WASHER-PLAIN

4шт.

29

21N4-10430

SWITCH ASSY-INCL KEY

KOREA,CHINA #0401

1шт.

29

21N3-00020

SWITCH ASSY-INCL KEY

KOREA,CHINA #0402

1шт.

29-1

21N4-10430K100

KEY-START

NOT SHOWN

1шт.

30

21LB-40151

DECAL-START KEY

1шт.

31

S593-000902

CLIP-HARNESS

6шт.

33

S131-051546

SCREW-W/WASHER

4шт.

34

21LB-10110

PLATE-CONNECTOR

1шт.

35

21L7-20350

PLATE

1шт.

36

21LB-20331

PLATE

1шт.

38

S593-000652

CLIP-HARNESS

1шт.

39

21E9-20310

CASSETTE RADIO

U.S.A #0195

1шт.

39

21E9-20320

CASSETTE RADIO

EUROPE #0195

1шт.

39

21E9-20330

CASSETTE RADIO

GENERAL #0195

1шт.

39

21E9-20340

CASSETTE RADIO

KOREA #0195

1шт.

39-1

E2004050700C

CONN-A,H818HHD/HHU

#0195

1шт.

43

21LB-40230

SWITCH-PARKING

1шт.

44

21LB-40240

SWITCH-MAIN LIGHT

1шт.

45

21LB-40250

SWITCH-WORK LAMP

1шт.

46

21LB-40260

SWITCH-AUTO SELECT

1шт.

47

21LB-40270

SWITCH-CLUTCH CUT-OFF

STD

1шт.

47

21E6-10460

COVER

DUAL PEDAL #0310 - #0401

1шт.

48

21LB-40280

SW-RR WIPER/WASHER

1шт.

49

21E6-10460

COVER

STD

8шт.

50

S552-050203

CLAMP-BAND

8шт.

51

S035-081522

BOLT-W/WASHER

10шт.

52

S161-060256

SCREW-CROSS R/ROUND

4шт.

53

S593-001302

CLIP-HARNESS

2шт.

54

S161-050206

SCREW-CROSS R/ROUND

4шт.

56

21N4-10400

SWITCH ASSY-INCL KEY

EXPORT

1шт.

56-1

21N4-10400K

KEY-START

NOT SHOWN

1шт.

57

21N6-20211

WORK LAMP ASSY

OPT

4шт.

57-1

S866-240650

BULB

NOT SHOWN

1шт.

58

25D1-10650

CLIP ASSY

OPT

2шт.

59

25D1-10640

CLIP ASSY

OPT

2шт.

61

21LC-60120

EXT HARNESS(SEAT)

OPT #0001 - #0214

1шт.

61

21LB-34310

EXT HARNESS(SEAT)

OPT #0215

1шт.

63

21N8-50020

CASSETTE RADIO ASSY

STD #0196 - #0391

1шт.

63

21N8-50060

CASSETTE RADIO ASSY

STD #0392 - #0427

1шт.

63

21N8-51000

RADIO/USB PLAYER ASSY

STD #0428

1шт.

63-1

21N6-10470

BRACKET-LH

#0196

1шт.

63-2

21N6-10460

BRACKET-RH

#0196

1шт.

63-3

S141-050102

SCREW-FLAT HD

#0196

4шт.

N63-4

21N8-01620

HARNESS-WIRE,EXT

NOT #0196

1шт.

64

21N8-40600

CD PLAYER ASSY

OPT #0196 - #0427

1шт.

64

21LM-31200

USB & SOCKET ASSY

#0428

1шт.

64-1

21N6-10470

BRACKET-LH

#0196 - #0427

1шт.

64-2

21N6-10460

BRACKET-RH

#0196 - #0427

1шт.

64-3

S141-050102

SCREW-FLAT HD

#0196 - #0427

4шт.

N64-4

21N8-01620

HARNESS-WIRE,EXT

NOT #0196 - #0427

1шт.

65

21LB-34330

SWITCH-FUEL WARMER

FUEL WARMER #0273

1шт.

66

21L7-03160

SWITCH-ATTACH LOCK

QUICK COUPLER #0256

1шт.

67

21L7-03170

SWITCH-ATTACH UNLOCK

QUICK COUPLER #0256

1шт.

69

21LG-40410

SWITCH-ETHER

COLD START KIT #0273

1шт.

73

21LD-30070

HARNESS-EXT

#0364

1шт.

73

21LB-51600

HARNESS-EXT

#0356 - #0401

1шт.

74

21LH-30170

HARNESS-EXT

#0354

1шт.

Выбрано товаров: 81