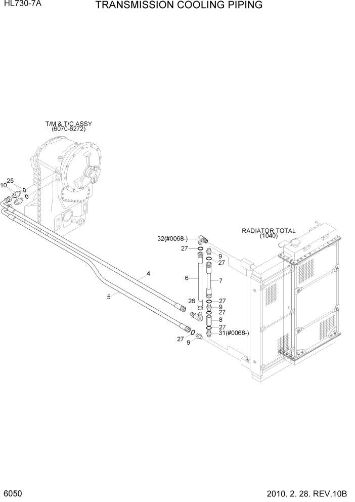
Запчасти Hyundai HL730-7A PAGE 6050 TRANSMISSION COOLING PIPING СИЛОВАЯ СИСТЕМА

Схема запчастей Hyundai HL730-7A - PAGE 6050 TRANSMISSION COOLING PIPING СИЛОВАЯ СИСТЕМА
FIT
1:1
100%

Артикул

Название

Примечание

Количество

4

P623-161028

HOSE ASSY-THD 0X90

1шт.

5

P623-161031

HOSE ASSY-THD 0X90

1шт.

6

P600-161010

HOSE ASSY-THD 0X0

1шт.

7

81LG-60040

HOSE ASSY

#0067

1шт.

7

P600-162014

HOSE ASSY-THD 0X0

#0068

1шт.

8

81L6-01260

CHECK VALVE

1шт.

9

P010-110006

CONNECTOR

1шт.

9

P010-110006

CONNECTOR

#0067

1шт.

9

P010-110006

CONNECTOR

#0068

3шт.

10

P010-310013

CONNECTOR

2шт.

25

S611-030001

O-RING

2шт.

26

81LG-60050

ELBOW ASSY

1шт.

27

S631-030001

O-RING

2шт.

27

S631-030001

O-RING

#0067

2шт.

27

S631-029004

O-RING

#0068

6шт.

31

P000-110016

CONNECTOR

#0068

1шт.

32

P020-110005

ELBOW-90

#0068

1шт.

Выбрано товаров: 17