Запчасти Hyundai HL730-7A PAGE 5081 CAB(1/7, INTERIOR, #0031-) СТРУКТУРА

Схема запчастей Hyundai HL730-7A - PAGE 5081 CAB(1/7, INTERIOR, #0031-) СТРУКТУРА
FIT
1:1
100%

Артикул

Название

Примечание

Количество

*

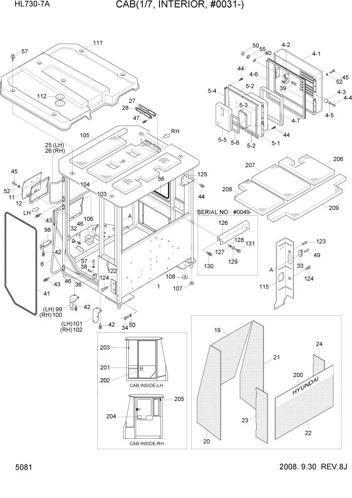
71LG-23010

CAB ASSY-FIXED WINDOW

FIXED WINDOW #0048

1шт.

*

71LG-23011

CAB ASSY-FIXED WINDOW

FIXED WINDOW #0049

1шт.

*

71LG-23020

CAB ASSY-SLIDING WIN

SLIDING WINDOW #0048

1шт.

*

71LG-23021

CAB ASSY-SLIDING WIN

SLIDING WINDOW #0049

1шт.

*

71LG-23030

CAB ASSY-F/WIN,L/NOISE

FIXED,LOW NOSE #0048

1шт.

*

71LG-23031

CAB ASSY-F/WIN,L/NOISE

FIXED,LOW NOSE #0049

1шт.

*

71LG-23040

CAB ASSY-S/WIN,L/NOISE

SLIDE,LOW NOSE #0048

1шт.

*

71LG-23041

CAB ASSY-S/WIN,L/NOISE

SLIDE,LOW NOSE #0049

1шт.

*-1

71LG-23050

CAB SUB ASSY

#0048

1шт.

*-1

71LG-23051

CAB SUB ASSY

#0049

1шт.

1

71LG-23060

CAB WA

#0048

1шт.

1

71LG-23061

CAB WA

#0049

1шт.

4

71LF-01041

MAIN DOOR ASSY

1шт.

4-1

71LF-06010

MAIN DOOR WA

1шт.

4-2

71L7-01293

LATCH ASSY

1шт.

4-3

74L3-04460

CUSHION-RUBBER

1шт.

4-4

S151-060256

SCREW-TAPPING

1шт.

4-5

S403-06200B

WASHER-PLAIN

1шт.

4-6

S771-021500

WEATHER STRIP

1шт.

4-7

71LF-06070

PAD-RUBBER

1шт.

5

71LF-01051

COVER ASSY-FILTER

1шт.

5-1

71LF-06270

COVER WA-FILTER

1шт.

5-2

71LF-06280

PAD-RUBBER

2шт.

5-3

71LF-06290

PAD-RUBBER

1шт.

5-4

71LF-06300

PAD-RUBBER

1шт.

5-5

71LF-06310

SPONGE

1шт.

5-6

71LF-06320

SPONGE

2шт.

5-7

71LF-06400

SPONGE

1шт.

6

71LF-01061

HANDRAIL WA

1шт.

11

71LF-01111

COVER WA-WIPER

1шт.

12

71LF-01121

PAD-RUBBER

1шт.

19

71LF-01191

GLASS-FRONT

1шт.

20

71LF-01201

GLASS-FRONT/LH

1шт.

21

71LF-01211

GLASS-FRONT/RH

1шт.

22

71LF-01531

GLASS-REAR

1шт.

23

71LF-01542

Deleted

#0031

1шт.

24

71LF-01552

Deleted

#0031

1шт.

25

71LB-01692

HANDRAIL WA-LH

1шт.

26

71LB-01702

HANDRAIL WA-RH

1шт.

27

71LB-01151

PLATE WA-CASSETTE

1шт.

28

71LB-01162

COVER-CASSETTE

1шт.

32

71N6-02770

STRIKER

1шт.

33

71N6-02920

HOOK-COAT

1шт.

34

71EH-13150

RUBBER-BUMPER

4шт.

36

71LB-01600

HINGE

5шт.

37

74L3-05330

PIN-HINGE

5шт.

38

74L3-04450

WASHER-COPPER

5шт.

39

74L3-04380

STRIKER-DOOR

1шт.

40

74L3-00710

WASHER-STRIKER

1шт.

41

S771-039500

WEATHER STRIP

1шт.

42

S037-122556

BOLT-W/WASHER

9шт.

43

S037-102026

BOLT-W/WASHER

12шт.

44

S035-082026

BOLT-W/WASHER

18шт.

45

S179-080206

SCREW-SOCKET RD HD

12шт.

46

S141-080166

SCREW-FLAT HD

2шт.

47

S132-061656

SCREW-W/WASHER

5шт.

49

S141-040206

SCREW-FLAT HD

2шт.

50

S205-101006

NUT-HEX

1шт.

52

S403-08200B

WASHER-PLAIN

7шт.

55

S441-100006

WASHER-HARDENED

1шт.

56

S771-025000

WEATHER STRIP

1шт.

57

S037-122556

BOLT-W/WASHER

5шт.

98

71LF-01870

PLATE WA-FRONT

1шт.

99

71LF-01880

PLATE WA-LH/FR

1шт.

100

71LF-01890

PLATE WA-RH/FR

1шт.

101

71LF-01900

PLATE WA-LH/RR

1шт.

102

71LF-01910

PLATE WA-RH/RR

1шт.

103

71LF-01920

FOAM-ROOF(1)

1шт.

104

71LF-01930

FOAM-ROOF(2)

1шт.

105

71LF-01940

FOAM-ROOF(3)

1шт.

106

71LF-01950

FOAM-BOTTOM/FRONT

1шт.

107

71LG-01020

WASHER-MOUNT

4шт.

108

71LG-01030

SPACER-MOUNT

4шт.

111

71LF-22010

COVER-ROOF

#0048

1шт.

111

71LF-22011

COVER-ROOF

#0049

1шт.

112

71LB-23090

PLATE-BEACON LAMP

1шт.

115

71LF-22040

PILLAR COVER-LH/C

1шт.

122

71LF-22110

BRACKET-LH/B-LWR

1шт.

123

71LB-22100

CAP-BOLT

8шт.

124

S002-060166

SCREW-TRUSHEAD

8шт.

125

71LF-23100

BRACKET-WORK LAMP

2шт.

126

71LF-09210

BRACKET

#0049

1шт.

127

71LB-09220

GROMMET

#0049

8шт.

128

71LB-09230

WASHER-WIDE

#0049

8шт.

129

71LB-09240

WASHER-WIDE

#0049

8шт.

130

S037-082026

BOLT-W/WASHER

#0049

2шт.

131

S017-120256

BOLT-HEX

#0049

8шт.

200

91LF-21010

ADHESIVE SUN SCREEN

1шт.

201

91LB-01230

DECAL-MAX H/REACH

1шт.

202

91LB-01240

DECAL-ROLL OVER

1шт.

203

91LB-01340

DECAL-HAMMER

1шт.

204

91N6-07261

ALTERNATE EXIT

1шт.

205

91N6-07290

FIRE

1шт.

206

71LF-11210

SPONGE-BOTTOM/LOW(1)

LOW NOISE

1шт.

207

71LF-11221

SPONGE-BOTTOM/LOW(2)

LOW NOISE

1шт.

208

71LF-11230

SPONGE-BOTTOM/LOW(3)

LOW NOISE

1шт.

209

71LF-11240

SPONGE-BOTTOM/LOW(4)

LOW NOISE

1шт.

210

71LF-11250

SPONGE-BOTTOM/LOW(5)

LOW NOISE

1шт.

*-2

@

ELECTRIC CAB ASSY

NOT

1шт.

Выбрано товаров: 99