Запчасти Hyundai HL757TM7A PAGE 1070 AIRCON & HEATER MOUNTING СИСТЕМА ДВИГАТЕЛЯ

Схема запчастей Hyundai HL757TM7A - PAGE 1070 AIRCON & HEATER MOUNTING СИСТЕМА ДВИГАТЕЛЯ
FIT
1:1
100%

Артикул

Название

Примечание

Количество

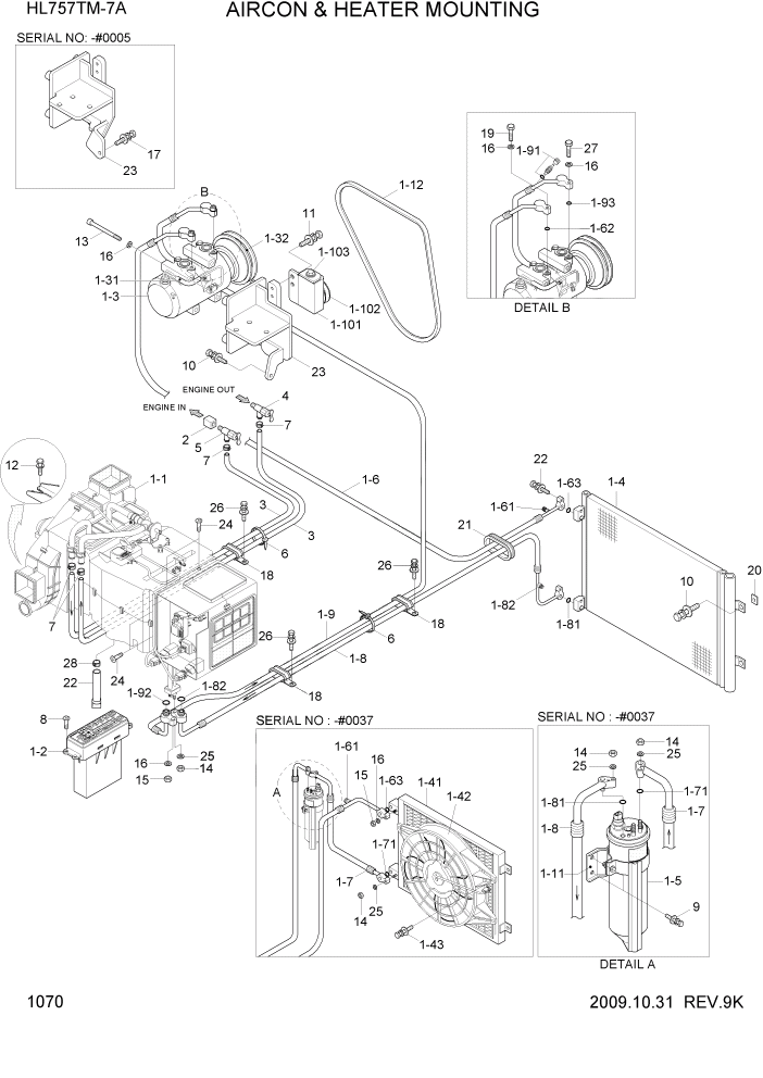
1

11LD-91021

AIRCON & HEATER ASSY

#0037

1шт.

1

11LD-91022

AIRCON & HEATER ASSY

#0038 - #0049

1шт.

1

11LD-91024

AIRCON & HEATER ASSY

#0050

1шт.

1-1

@

AIRCON & HEATER UNIT

NOT

1шт.

1-21

11LB-90220

DECAL

NOT SHOWN

1шт.

1-2

11LB-90112

CONTROL ASSY

1шт.

1-31

11LF-90230

THERMAL SW-COMP

1шт.

N1-32

A5W00153

CLUTCH

NOT

1шт.

1-21

11LB-90220

DECAL

NOT SHOWN

1шт.

1-41

A2W01133

CONDENSER

1шт.

1-42

AC100287

FAN & MOTOR ASSY

1шт.

1-42-1

AC100180

FAN ASSY

NOT SHOWN

1шт.

1-42-2

AC110288

MOTOR ASSY

NOT SHOWN

1шт.

1-42-3

A285051700A0

SHROUD

NOT SHOWN

1шт.

1-43

RA000004

BOLT-W/WASHER

4шт.

1-3

11N6-90040

COMPRESSOR ASSY

#0049

1шт.

1-3

11Q6-90040

COMPRESSOR ASSY

#0050

1шт.

1-31

11LF-90230

THERMAL SW-COMP

#0049

1шт.

1-61

A304000301-4

CHARGE VALVE ASSY

1шт.

1-62

A305000217-2

O-RING

1шт.

1-63

A305000205-2

O-RING

1шт.

1-32

A5W00153

CLUTCH

#0049

1шт.

1-71

A305000209-2

O-RING

1шт.

1-72

A305000207-2

O-RING

1шт.

1-4

11LH-90090

COND & FAN ASSY

#0037

1шт.

1-81

A305000209-2

O-RING

2шт.

1-4

11Q6-90071

CONDENSER-R/DRYER

#0038

1шт.

1-91

A304000601-4

CHARGE VALVE ASSY-L

1шт.

1-92

A305000203-2

O-RING

1шт.

1-93

A305000216-2

O-RING

1шт.

1-41

A2W01133

CONDENSER

#0037

1шт.

1-101

A4760-508-00-2

BRACKET-PULLEY

1шт.

1-102

A4700-511-01-2

PULLEY-IDLE

INCL 1-103

1шт.

1-103

A8900-518-03-3

BOLT-TENSION

1шт.

1-42

A2W01178

FAN & MOTOR ASSY

#0037

1шт.

142-1

AC100287

BLOWER ASSY

NOT SHOWN #0037

1шт.

142-11

AC100180

FAN ASSY

NOT SHOWN #0037

1шт.

142-12

AC110288

MOTOR ASSY

NOT SHOWN #0037

1шт.

142-13

AC100189

SHROUD

NOT SHOWN #0037

1шт.

1-43

AA000004

BOLT-W/WASHER

#0037

4шт.

1-5

11N6-90060

DRIER-RECEIVER

#0037

1шт.

1-6

11LD-90121

HOSE-DISCHARGE

#0037

1шт.

1-6

11LD-90122

HOSE-DISCHARGE

#0038 - #0049

1шт.

1-6

11LD-90123

HOSE-DISCHARGE

#0050

1шт.

1-61

A304000301-4

CHARGE VALVE ASSY

1шт.

1-62

A305000217-2

O-RING

1шт.

1-63

A305000205-2

O-RING

1шт.

10

S035-082526

BOLT-W/WASHER

#0006

5шт.

1-7

11LC-90053

HOSE(A)-LIQUID

#0037

1шт.

1-71

A305000209-2

O-RING

#0037

1шт.

1-72

A305000207-2

O-RING

#0037

1шт.

1-8

11LD-90063

HOSE(B)-LIQUID

#0037

1шт.

14

S203-061006

NUT-HEX

4шт.

1-8

11LD-90064

HOSE(B)-LIQUID

#0038

1шт.

15

S203-081006

NUT-HEX

2шт.

1-81

A305000209-2

O-RING

#0001

2шт.

16

S403-08200B

WASHER-PLAIN

#0005

4шт.

16

S403-08200B

WASHER-PLAIN

#0006

8шт.

N1-82

A8220-010-00-2

SWITCH-PRESSURE

NOT #0038

1шт.

1-9

11LC-90171

HOSE-SUCTION

#0049

1шт.

1-9

11LC-90172

HOSE-SUCTION

#0050

1шт.

1-91

A304000601-4

CHARGE VALVE ASSY-L

1шт.

1-92

A305000203-2

O-RING

1шт.

1-93

A305000216-2

O-RING

1шт.

1-1

11N6-90110

PULLEY-IDLE

1шт.

1-101

A4760-508-00-2

BRACKET-PULLEY

1шт.

1-102

A4700-511-01-2

PULLEY-IDLE

INCL 1-103

1шт.

23

11LF-90314

BRACKET WA

#0006

1шт.

1-103

A8900-518-03-3

BOLT-TENSION

1шт.

1-11

11N6-90120

BRACKET-R/DRIER

#0037

1шт.

25

S403-06200B

WASHER-PLAIN

4шт.

1-12

11N4-92130

V-BELT

1шт.

1-13

11EK-92130

HOSE-DRAIN

#0050

1шт.

2

11LC-90150

BLOCK

1шт.

3

11LC-90100

HOSE-HEATER

2шт.

4

11L7-90150

VALVE-HEATER

1шт.

5

14L1-01350

VALVE-HEATER

1шт.

6

S551-035146

TIE-WIRE

2шт.

7

S520-027000

CLAMP-HOSE,SCREW TYPE

4шт.

8

S131-052046

SCREW-W/WASHER

4шт.

9

S035-061526

BOLT-W/WASHER

#0037

2шт.

10

S035-082526

BOLT-W/WASHER

#0005

4шт.

10

S035-082526

BOLT-W/WASHER

#0006

5шт.

11

S037-102526

BOLT-W/WASHER

3шт.

12

S037-122056

BOLT-W/WASHER

4шт.

13

S109-080956

BOLT-SOCKET

#0049

4шт.

13

S109-080906

BOLT-SOCKET

#0050

4шт.

14

S203-061006

NUT-HEX

#0037

4шт.

14

S205-06100B

NUT-HEX

#0038

1шт.

15

S203-081006

NUT-HEX

#0037

2шт.

15

S205-08100B

NUT-HEX

#0038

1шт.

16

S403-08200B

WASHER-PLAIN

#0005

4шт.

16

S403-08200B

WASHER-PLAIN

#0006 - #0037

8шт.

16

S403-08200B

WASHER-PLAIN

#0038 - #0049

7шт.

16

S403-08200B

WASHER-PLAIN

#0050

5шт.

17

S035-082026

BOLT-W/WASHER

#0037

1шт.

17

S035-063526

BOLT-W/WASHER

#0038

1шт.

18

S543-400002

CLAMP-TUBE

3шт.

19

S015-080306

BOLT-HEX

#0049

1шт.

20

14L3-00741

RESILIENT

4шт.

21

S681-460400

GROMMET

1шт.

22

11EK-92130

HOSE-DRAIN

#0037

1шт.

22

S035-084026

BOLT-W/WASHER

#0038

1шт.

23

11LF-90313

BRACKET WA

#0005

1шт.

23

11LF-90314

BRACKET WA

#0006 - #0049

1шт.

23

11LL-90100

BRACKET WA

#0050

1шт.

24

S151-040126

SCREW-TAPPING

4шт.

25

S403-06200B

WASHER-PLAIN

#0037

4шт.

25

S403-06200B

WASHER-PLAIN

#0038

1шт.

26

S035-081526

BOLT-W/WASHER

3шт.

27

S015-080356

BOLT-HEX

#0049

1шт.

28

S520-015000

CLAMP-HOSE

1шт.

29

S018-100356

BOLT-HEX

#0050

1шт.

30

S441-100006

WASHER-HARDENED

#0050

1шт.

31

S403-10200B

WASHER-PLAIN

#0050

1шт.

Выбрано товаров: 115