Запчасти Hyundai HL757TM7A PAGE 5081 CAB(1/5, INTERIOR, #0016-) СТРУКТУРА

Схема запчастей Hyundai HL757TM7A - PAGE 5081 CAB(1/5, INTERIOR, #0016-) СТРУКТУРА
FIT
1:1
100%

Артикул

Название

Примечание

Количество

*

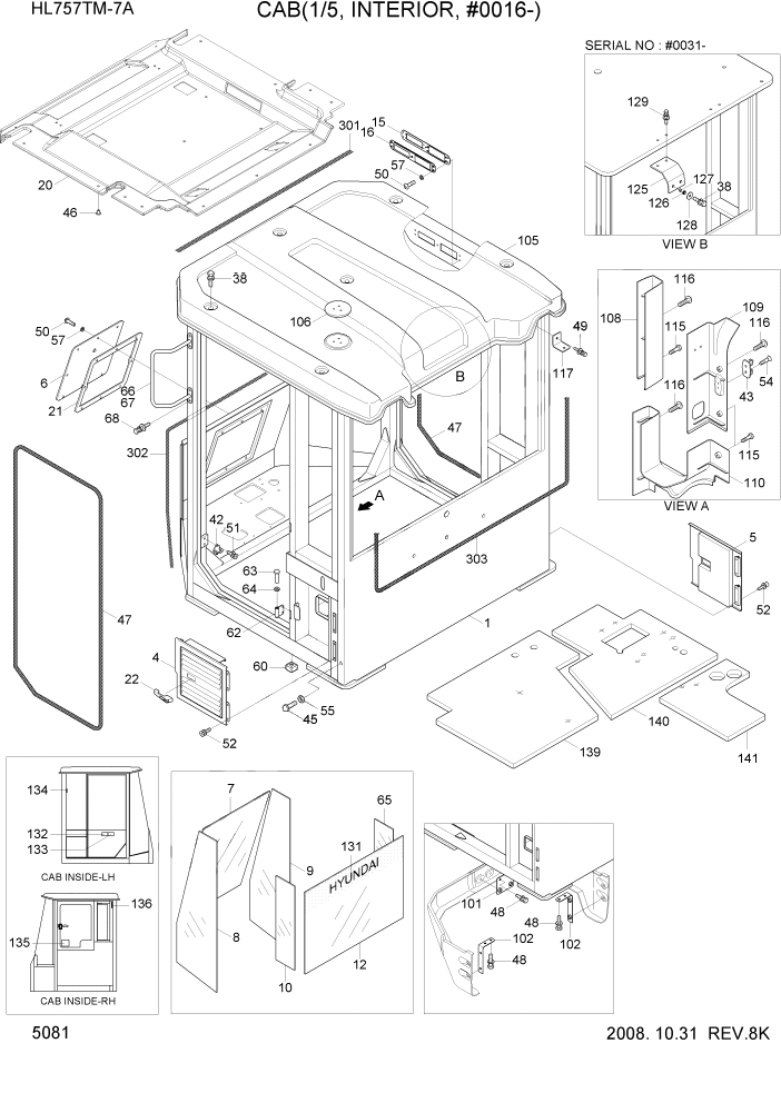
71LB-23010

CAB ASSY-FIXED WINDOW

FIXED WINDOW #0019

1шт.

*

71LB-23011

CAB ASSY-FIXED WINDOW

FIXED WINDOW #0020 - #0030

1шт.

*

71LB-23012

CAB ASSY-FIXED WINDOW

FIXED WINDOW #0031

1шт.

*

71LB-23020

CAB ASSY-SLIDING WIN

SLIDING WINDOW #0019

1шт.

*

71LB-23021

CAB ASSY-SLIDING WIN

SLIDING WINDOW #0020 - #0030

1шт.

*

71LB-23022

CAB ASSY-SLIDING WIN

SLIDING WINDOW #0031

1шт.

*

71LB-23030

CAB ASSY-F/WIN,L/NOISE

FIXED,LOW NOISE #0101

1шт.

*

71LB-23031

CAB ASSY-F/WIN,L/NOISE

FIXED,LOW NOISE #0102 - #0030

1шт.

*

71LB-23032

CAB ASSY-F/WIN,L/NOISE

FIXED,LOW NOSE #0031

1шт.

*

71LB-23040

CAB ASSY-S/WIN,L/NOISE

SLIDE,LOW NOISE #0019

1шт.

*

71LB-23041

CAB ASSY-S/WIN,L/NOISE

SLIDE,LOW NOISE #0020 - #0030

1шт.

*

71LB-23042

CAB ASSY-S/WIN,L/NOISE

SLIDE,LOW NOSE #0031

1шт.

*-1

71LB-23050

CAB SUB ASSY

#0019

1шт.

*-1

71LB-23051

CAB SUB ASSY

#0020 - #0030

1шт.

*-1

71LB-23052

CAB SUB ASSY

#0031

1шт.

1

71LB-23060

CAB WA

#0030

1шт.

1

71LB-23061

CAB WA

#0031

1шт.

4

71LB-01041

COVER ASSY-LH

1шт.

5

71LB-01051

COVER ASSY-RH

1шт.

6

71LB-01061

COVER WA-W/MOTOR

1шт.

7

71LB-01071

GLASS-FRONT,CENTER

1шт.

8

71LB-01081

GLASS-FRONT,SIDE,LH

1шт.

9

71LB-01091

GLASS-FRONT,SIDE,RH

1шт.

10

71LB-01101

GLASS-SIDE,LH

1шт.

12

71LB-01121

GLASS-REAR

1шт.

15

71LB-01151

PLATE WA-CASSETTE

1шт.

16

71LB-01162

COVER-CASSETTE

1шт.

20

71LB-11450

HEADLINING

1шт.

21

71LB-01211

PAD-RUBBER

1шт.

22

71LB-01220

LATCH ASSY

3шт.

38

S017-120256

BOLT-HEX

#0030

5шт.

38

S017-120256

BOLT-HEX

#0031

10шт.

42

71N6-02770

STRIKER

2шт.

43

71N6-02920

HOOK-COAT

1шт.

45

71EH-13150

RUBBER-BUMPER

4шт.

46

E171-1310

PLUG-HEADLINER

14шт.

47

S771-039500

WEATHER STRIP

2шт.

48

S037-122556

BOLT-W/WASHER

6шт.

49

S035-082026

BOLT-W/WASHER

4шт.

50

S151-080206

SCREW-TAPPING

12шт.

51

S141-080166

SCREW-FLAT HD

4шт.

52

S132-061656

SCREW-W/WASHER

8шт.

54

S141-040206

SCREW-FLAT HD

2шт.

55

S205-10100B

NUT-HEX

4шт.

57

S403-08200B

WASHER-PLAIN

20шт.

60

71LB-01560

FOAM-SPONGE

1шт.

62

71LB-01600

HINGE

6шт.

63

74L3-05330

PIN-HINGE

6шт.

64

74L3-04450

WASHER-COPPER

6шт.

65

71LB-01681

GLASS-SIDE,RH

1шт.

66

71LB-01692

HANDRAIL WA-LH

1шт.

67

71LB-01702

HANDRAIL WA-RH

1шт.

68

S037-102026

BOLT-W/WASHER

4шт.

101

71LB-04190

PLATE WA-FRONT

1шт.

102

71LB-04200

PLATE WA-SIDE

2шт.

105

71LB-22010

COVER-ROOF

#0030

1шт.

105

71LB-22011

COVER-ROOF

#0031

1шт.

106

71LB-23090

PLATE-BEACON LAMP

1шт.

108

71LB-22030

PILLAR COVER-LH/B

1шт.

109

71LB-22040

PILLAR COVER-LH/C

1шт.

110

71LB-22050

PILLAR COVER-LH/D

1шт.

115

71LB-22100

CAP-BOLT

8шт.

116

S002-060166

SCREW-TRUSHEAD

8шт.

117

71LB-23080

BRACKET-WORK LAMP

2шт.

125

71LB-09210

BRACKET

#0031

2шт.

126

71LB-09220

DECAL-ROLL OVER

#0031

10шт.

127

71LB-09230

WASHER-WIDE

#0031

10шт.

128

71LB-09240

WASHER-WIDE

#0031

10шт.

129

S037-082026

BOLT-W/WASHER

#0031

4шт.

130

S017-120256

BOLT-HEX

#0031

10шт.

301

71LB-03540

SEAL-FRONT/UP

1шт.

302

71LB-03550

SEAL-FRONT/LOW

1шт.

303

71LB-03560

SEAL-REAR

1шт.

131

91LB-21010

ADHESIVE SUN SCREEN

1шт.

132

91LB-01230

DECAL-MAX H/REACH

1шт.

133

91LB-01240

DECAL-ROLL OVER

1шт.

134

91LB-01340

DECAL-HAMMER

1шт.

135

91N6-07261

ALTERNATE EXIT

1шт.

136

91N6-07290

DECAL-FIRE

1шт.

139

71LB-11261

SPONGE-BOTTOM/LOW(1)

1шт.

140

71LB-11271

SPONGE-BOTTOM/LOW(2)

1шт.

141

71LB-11281

SPONGE-BOTTOM/LOW(3)

1шт.

*-2

@

ELECTRIC CAB ASSY

NOT

1шт.

4

71LB-01041

COVER ASSY-LH

1шт.

5

71LB-01051

COVER ASSY-RH

1шт.

6

71LB-01061

COVER WA-W/MOTOR

1шт.

7

71LB-01071

GLASS-FRONT,CENTER

1шт.

8

71LB-01081

GLASS-FRONT,SIDE,LH

1шт.

9

71LB-01091

GLASS-FRONT,SIDE,RH

1шт.

10

71LB-01101

GLASS-SIDE,LH

1шт.

12

71LB-01121

GLASS-REAR

1шт.

15

71LB-01151

PLATE WA-CASSETTE

1шт.

16

71LB-01162

COVER-CASSETTE

1шт.

20

71LB-11450

HEADLINING

1шт.

21

71LB-01211

PAD-RUBBER

1шт.

22

71LB-01220

LATCH ASSY

3шт.

38

S017-20020D

BOLT-HEX

5шт.

42

71N6-02770

STRIKER

2шт.

43

71N6-02920

HOOK

1шт.

45

71EH-13150

RUBBER-BUMPER

4шт.

46

E171-1310

PLUG-HEADLINER

14шт.

47

S771-039500

WEATHER STRIP

2шт.

48

S037-122556

BOLT-W/WASHER

6шт.

49

S035-082026

BOLT-W/WASHER

4шт.

50

S151-080206

SCREW-TAPPING

12шт.

51

S141-080166

SCREW-FLAT HD

4шт.

52

S132-061656

SCREW-W/WASHER

8шт.

54

S141-040206

SCREW-FLAT HD

2шт.

55

S205-10100B

NUT-HEX

4шт.

57

S403-08200B

WASHER-PLAIN

20шт.

60

71LB-01560

FOAM-SPONGE

1шт.

62

71LB-01600

HINGE

6шт.

63

74L3-05330

PIN-HINGE

6шт.

64

74L3-04450

WASHER-COPPER

6шт.

65

71LB-01681

GLASS-SIDE,RH

1шт.

66

71LB-01692

HANDRAIL WA-LH

1шт.

67

71LB-01702

HANDRAIL WA-RH

1шт.

68

S037-102026

BOLT-W/WASHER

4шт.

101

71LB-04190

PLATE WA-FRONT

1шт.

102

71LB-04200

PLATE WA-SIDE

2шт.

105

71LB-22010

COVER-ROOF

1шт.

106

71LB-23090

PLATE-BEACON LAMP

1шт.

108

71LB-22030

PILLAR COVER-LH/B

1шт.

109

71LB-22040

PILLAR COVER-LH/C

1шт.

110

71LB-22050

PILLAR COVER-LH/D

1шт.

115

71LB-22100

CAP-BOLT

8шт.

116

S002-060166

SCREW-TRUSHEAD

8шт.

117

71LB-23080

BRACKET-WORK LAMP

2шт.

301

71LB-03540

SEAL-FRONT/UP

1шт.

302

71LB-03550

SEAL-FRONT/LOW

1шт.

303

71LB-03560

SEAL-REAR

1шт.

131

91LB-21010

ADHESIVE SUN SCREEN

1шт.

132

91LB-01230

DECAL-MAX H/REACH

1шт.

133

91LB-01240

DECAL-ROLL OVER

1шт.

134

91LB-01340

DECAL-HAMMER

1шт.

135

91N6-07261

ALTERNATE EXIT

1шт.

136

91N6-07290

DECAL-FIRE EXTINGUISHER

1шт.

139

71LB-11261

SPONGE-BOTTOM/LOW(1)

1шт.

140

71LB-11271

SPONGE-BOTTOM/LOW(2)

1шт.

141

71LB-11281

SPONGE-BOTTOM/LOW(3)

1шт.

*-2

@

ELECTRIC CAB ASSY

NOT

1шт.

Выбрано товаров: 141