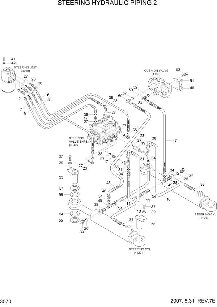
Запчасти Hyundai HL760-7A PAGE 3070 STEERING HYDRAULIC PIPING 2 ГИДРАВЛИЧЕСКАЯ СИСТЕМА

Схема запчастей Hyundai HL760-7A - PAGE 3070 STEERING HYDRAULIC PIPING 2 ГИДРАВЛИЧЕСКАЯ СИСТЕМА
FIT
1:1
100%

Артикул

Название

Примечание

Количество

7

P930-082009

HOSE ASSY-ORFS 0X90

1шт.

8

P930-082010

HOSE ASSY-ORFS 0X90

1шт.

9

P910-083014

HOSE ASSY-ORFS 0X0

2шт.

10

P930-084025

HOSE ASSY-ORFS 0X90

2шт.

11

P920-084016

HOSE ASSY-ORFS 0X45

2шт.

17

X500-110003

CONNECTOR-ORFS

2шт.

19

31N8-40200

CONNECTOR-ORFS.LONG

1шт.

20

31LB-30130

ELBOW-45

2шт.

21

X530-110003

ELBOW-45,ORFS

2шт.

23

X520-110003

ELBOW-90,ORFS

3шт.

26

S631-011004

O-RING

2шт.

27

S631-018004

O-RING

10шт.

31

X830-535353

TEE-B/TYPE,ORFS

2шт.

32

31EK-11130

COUPLING-SCREW

2шт.

33

31LC-30070

PIN WA

#0174

4шт.

33

31LC-30310

PIN W.A

#0175

4шт.

34

S621-011001

O-RING

8шт.

37

S017-16035D

BOLT-HEX

4шт.

38

S621-014001

O-RING

15шт.

39

61L7-10290

WASHER

4шт.

41

S017-100856

BOLT-HEX

4шт.

42

S441-10000B

WASHER-HARDENED

4шт.

46

31LC-30090

PLATE

1шт.

47

P930-044018

HOSE ASSY-ORFS 0X90

1шт.

48

P930-044021

HOSE ASSY-ORFS 0X90

1шт.

49

X840-535153

TEE-R/TYPE,ORFS

2шт.

50

31FG-10020

ELBOW-90

2шт.

51

S037-122556

BOLT-W/WASHER

2шт.

52

S611-009001

O-RING

2шт.

53

S035-082026

BOLT-W/WASHER

2шт.

54

31L9-30150

SHIM(0.5MM)

#0195

2шт.

55

31L9-30160

SHIM(1.0MM)

#0195

2шт.

56

31LB-30600

SHIM(0.5MM)

#0195

2шт.

57

31LB-30610

SHIM(1.0MM)

#0195

2шт.

Выбрано товаров: 34