Запчасти Hyundai HL760-7A PAGE 5091 CAB(2/5, INTERIOR, #0311-) СТРУКТУРА

Схема запчастей Hyundai HL760-7A - PAGE 5091 CAB(2/5, INTERIOR, #0311-) СТРУКТУРА
FIT
1:1
100%

Артикул

Название

Примечание

Количество

*

@

CAB ASSY

NOT

1шт.

*-1

@

CAB SUB ASSY

NOT

1шт.

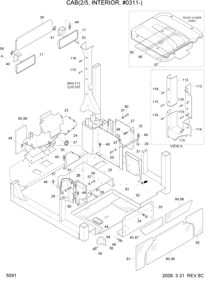
17

71LB-01170

MIRROR-ROOM

2шт.

23

71LB-11251

SUPPORT WA-D/BOARD

1шт.

24

71LB-11421

SUPPORT WA-CONSOLE

1шт.

25

71LB-05034

SEAT BASE WA

1шт.

26

71LB-05041

BRACKET WA

1шт.

27

71LB-05062

COVER-ELEC

1шт.

28

71LB-05072

COVER-WASHER TANK

1шт.

29

71LB-05082

BRACKET WA

1шт.

30

71LB-05091

BRACKET WA

1шт.

31

71LB-11410

SUPPORT WA-ELEC

1шт.

32

71LB-05110

PLATE WA-CONSOLE

1шт.

33

71LB-05121

COVER-WASHER TANK

1шт.

34

S141-120166

SCREW-FLAT HD

3шт.

35

71LB-11370

PLATE WA-STORAGE BOX

1шт.

36

71LB-11380

PLATE WA-STORAGE BOX

2шт.

37

71N6-03300

AIR VENT

2шт.

39

74L3-04642

SUN VISOR ASSY

1шт.

40

71LB-01710

PLATE-R/MIRROR,LH

1шт.

41

71LB-01720

PLATE-R/MIRROR,RH

1шт.

44

71E9-10640

GROMMET

2шт.

48

S037-122556

BOLT-W/WASHER

16шт.

49

S035-082026

BOLT-W/WASHER

17шт.

50

S151-080206

SCREW-TAPPING

38шт.

53

S141-060156

SCREW-FLAT HD

4шт.

56

S275-06000B

NUT-SELF LOCKING

4шт.

57

S403-08200B

WASHER-PLAIN

30шт.

80

71LB-01740

FOAM-REAR,LO,CENTER

1шт.

81

71LB-01750

FOAM-REAR,LO,LH

1шт.

82

71LB-01760

FOAM-REAR,LO,RH

1шт.

83

71LB-01770

FOAM-REAR,UP,LH

1шт.

84

71LB-01780

FOAM-REAR,UP,RH

1шт.

85

71LB-01790

FOAM-FRONT

1шт.

86

71LB-01800

EVA SHEET-RR,LO,CENTER

1шт.

87

71LB-01810

EVA SHEET-RR,UP,LH

1шт.

88

71LB-01820

EVA SHEET-RR,UP,RH

1шт.

89

71LB-01830

EVA SHEET-FRONT

1шт.

92

71LB-04090

FOAM-BOTTOM(1)

1шт.

93

71LB-04100

FOAM-BOTTOM(2)

1шт.

94

71LB-04110

FOAM-BOTTOM(3)

1шт.

95

71LB-04130

FOAM-ROOF(1)

1шт.

96

71LB-04140

FOAM-ROOF(2)

1шт.

97

71LB-04150

FOAM-ROOF(3)

1шт.

107

71LB-22020

PILLAR COVER-LH/A

1шт.

111

71LB-22060

PILLAR COVER-RH/A

1шт.

112

71LB-22070

PILLAR COVER-RH/B

1шт.

113

71LB-22080

PILLAR COVER-RH/C

2шт.

114

71LB-22090

PILLAR COVER-RH/D

1шт.

115

71LB-22100

CAP-BOLT

10шт.

116

S002-060166

SCREW-TRUSHEAD

10шт.

Выбрано товаров: 51