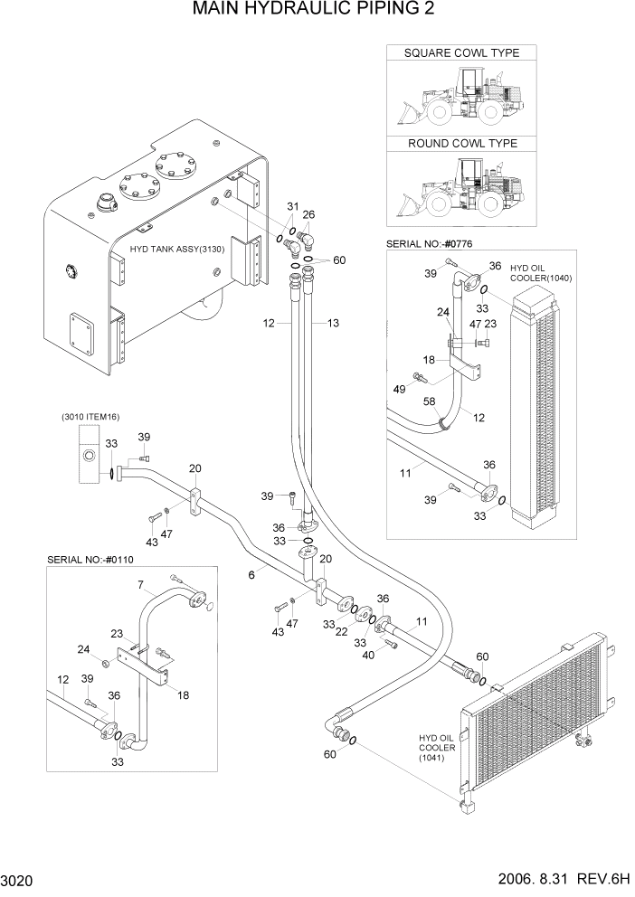
Запчасти Hyundai HL770-7 PAGE 3020 MAIN HYDRAULIC PIPING 2 ГИДРАВЛИЧЕСКАЯ СИСТЕМА

Схема запчастей Hyundai HL770-7 - PAGE 3020 MAIN HYDRAULIC PIPING 2 ГИДРАВЛИЧЕСКАЯ СИСТЕМА
FIT
1:1
100%

Артикул

Название

Примечание

Количество

6

31LB-00044

PIPE WA

1шт.

7

31LB-00053

PIPE WA

#0035

1шт.

7

31LB-00054

PIPE WA

#0036 - #0110

1шт.

11

P680-201321

HOSE ASSY-FLG

#0776

1шт.

11

P940-202320

HOSE ASSY-FLG

#0777

1шт.

12

P630-201341

HOSE ASSY-THD FLG

#0110

1шт.

12

31LB-00180

HOSE ASSY

#0111 - #0776

1шт.

12

P930-202057

HOSE ASSY-ORFS 0X90

#0777

1шт.

12

P630-201342

HOSE ASSY-THD FLG

ROUND COWL #0152

1шт.

13

P630-201322

HOSE ASSY-THD FLG

SQUARE COWL #0776

1шт.

13

P940-201322

HOSE ASSY-FLG

SQUARE COWL #0777

1шт.

13

31LB-00190

HOSE ASSY

ROUND COWL #0152 - #0776

1шт.

13

31LB-00330

HOSE ASSY

ROUND COWL #0777

1шт.

18

31LB-00090

PLATE

#0110

1шт.

18

31LB-00091

PLATE

#0111 - #0776

1шт.

20

31L7-00240

CLAMP

2шт.

22

31LB-00140

BLOCK-ORIFICE

#0776

1шт.

22

31LB-00210

BLOCK-ORIFICE

#0777

1шт.

23

S071-034330

U-BOLT

#0110

1шт.

23

S017-120202

BOLT-HEX

#0111 - #0776

1шт.

24

S275-100002

NUT-SELF LOCKING

#0110

2шт.

24

31E7-0310

CLAMP-HOSE

#0111 - #0776

1шт.

26

P020-110006

ELBOW-90

#0776

2шт.

26

X520-110006

ELBOW-90,ORFS

#0777

2шт.

31

S631-038004

O-RING

2шт.

33

Y171-027004

O-RING

#0110

6шт.

33

Y171-027004

O-RING

#0111 - #0776

5шт.

33

Y171-027004

O-RING

#0777

3шт.

36

P173-200106

FLANGE-SPLIT

#0776

8шт.

36

P173-200106

FLANGE-SPLIT

#0777

4шт.

39

S109-100306

BOLT-SOCKET

#0110

20шт.

39

S109-100306

BOLT-SOCKET

#0111 - #0776

16шт.

39

S109-100306

BOLT-SOCKET

#0777

8шт.

40

S109-100556

BOLT-SOCKET

4шт.

43

S107-120452

BOLT-SOCKET

4шт.

47

S441-120002

WASHER-HARDENED

#0110

4шт.

47

S441-120002

WASHER-HARDENED

#0111 - #0776

5шт.

47

S441-120002

WASHER-HARDENED

#0777

4шт.

49

S037-102552

BOLT-W/WASHER

#0776

2шт.

58

S760-021206

GROMMET

#0180 - #0776

1шт.

60

S621-025001

O-RING,ORFS

#0777

4шт.

Выбрано товаров: 41