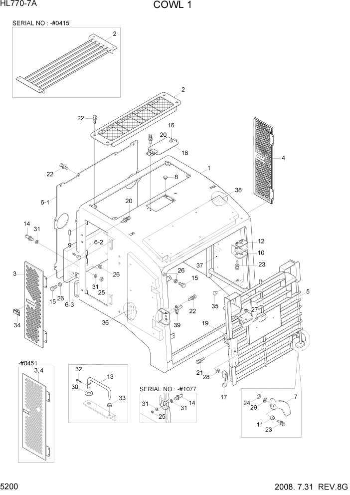
Запчасти Hyundai HL770-7A PAGE 5200 COWL 1 СТРУКТУРА

Схема запчастей Hyundai HL770-7A - PAGE 5200 COWL 1 СТРУКТУРА
FIT
1:1
100%

Артикул

Название

Примечание

Количество

*

71LB-43010

SUPPORT ASSY

#0415

1шт.

*

71LB-43011

SUPPORT ASSY

#0416

1шт.

1

71LB-43102

SUPPORT WA

#1077

1шт.

1

71LB-43103

SUPPORT WA

#1078

1шт.

2

71LB-43110

GRILL WA

#0415

1шт.

2

71LB-43220

COVER WA

#0416

1шт.

3

71LB-40330

COVER WA-LH

#0415

1шт.

3

71LB-43230

COVER WA-LH

#0416

1шт.

4

71LB-40340

COVER WA-RH

#0415

1шт.

4

71LB-43240

COVER WA-RH

#0416

1шт.

5

71LB-43122

GRILL WA

1шт.

6

71LB-43650

SCREEN ASSY

#0030

1шт.

6

71LB-43651

SCREEN ASSY

#0031

1шт.

6-1

71LB-43660

SCREEN WA

#0030

1шт.

6-1

71LB-43661

SCREEN WA

#0031

1шт.

6-2

71EM-51580

CAP-STUD BOLT

10шт.

6-3

71LB-43670

SPONGE-SCREEN

#0030

1шт.

6-3

71LB-43671

SPONGE-SCREEN

#0031

1шт.

7

71LG-40200

PLATE-HOLDING

1шт.

8

74L3-11290

BUMPER-RUBBER

2шт.

9

S791-030005

GROMMET-PLATE

6шт.

10

71LB-42370

PLATE

1шт.

11

71LB-40290

COLLAR

1шт.

12

71LB-42380

PLATE

1шт.

13

71LD-41060

STAY WA

1шт.

14

71LD-80180

STRIKER

#1077

3шт.

14

71LD-80180

STRIKER

#1078

2шт.

15

71EH-13150

RUBBER-BUMPER

6шт.

16

71LB-41220

LOCK ASSY

1шт.

17

74L3-11380

HANDLE ASSY

1шт.

18

74L3-10891

DOOR-RADIATOR CAP

1шт.

19

74L3-10900

LATCH ASSY

1шт.

20

S033-061526

BOLT-W/WASHER

10шт.

21

S033-062516

BOLT-W/WASHER

4шт.

22

S037-122556

BOLT-W/WASHER

#1077

12шт.

22

S037-122556

BOLT-W/WASHER

#1078

14шт.

23

S037-124556

BOLT-W/WASHER

3шт.

24

S205-12100B

NUT-HEX

1шт.

25

S205-16100B

NUT-HEX

#1077

3шт.

25

S205-16100B

NUT-HEX

#1078

2шт.

26

S285-10100B

NUT-FLANGED

12шт.

27

S392-020030

SHIM-ROUND(2.0T)

1шт.

28

S403-06200B

WASHER-PLAIN

4шт.

29

S403-12200B

WASHER-PLAIN

1шт.

30

S403-142006

WASHER-PLAIN

1шт.

31

S441-160006

WASHER-HARDENED

#1077

6шт.

31

S441-160006

WASHER-HARDENED

#1078

4шт.

32

S461-250202

PIN-SPLIT

1шт.

33

S681-130800

GROMMET

1шт.

34

71LB-01220

LATCH ASSY

2шт.

35

71EM-51580

CAP-STUD BOLT

23шт.

36

71LB-42411

SPONGE-LH

1шт.

37

71LB-42421

SPONGE-RH

1шт.

38

71LB-43430

SPONGE-RH,DOOR

1шт.

39

71LD-80190

STRIKER

#1078

1шт.

Выбрано товаров: 55